SS-EN 1991 - Laster på bärverk

Här publiceras frågor och svar som ska vara till hjälp för dig som arbetar med tillämpningen av standarden för laster.

SS-EN 1991-1-3 Snöficka vid mellanrum mellan byggnader-tillägg

Fråga publicerad 2023-01-09.

Fråga: Kompletterande fråga till fråga publicerad 2021-12-02 Snöficka vid avstånd mellan byggnader. Ni skriver att snöras µs kan förekomma men ej snödrift µw vid avstånd mellan byggnader. Detta stämmer ej med anvisningar i BSV97 figur 1:3h. Snöras. Kan man använda figuren i BSV97 för snöras vad gäller utbredning eller finns det någon anvisning om hur man ska räkna på detta? Snödriftformeln för detta i eurokoden är en kombination av övre och undre takets längd - borde inte i alla fall elen som kan komma från det övre taket tänkas belasta det undre taket, med utbredning enligt figuren i BSV?

Svar: Då detta fall inte täcks av regler i eurokoden så står det konstruktören fritt att söka vägledning där sådan kan finnas. Det krävs då att denne inför granskning kan motivera att de valda koefficienterna är relevanta för den aktuella konstruktionen och anpassade för beräkning enligt eurokoden. Vägledning kan fås i till exempel BSV 97 eller ISO 4355 Bases for design of structures- Determination of snow loads on roofs.

Vad gäller den sista frågan så kan det i tillägg till resonemanget i den tidigare frågan vara rimligt att på det nedre taket även beakta den snödrift som kommer av snödrift från det övre taket, det vill säga µw beräknas då b2 sätts till 0 i ekvation 5.8.

I detta fall ger en användning av reglerna i BSV ett resultat på säker sida, eftersom även snödrift på det lägre taket beaktas.

 

SS-EN 1991-1-7 Robusthetskrav på trästomme

Fråga publicerad 2023-01-04.

Fråga: I SS-EN 1991-1-7 A.4 och i EKS står det ofta om bärverk i stål och armerad betong. Nu när träbyggandet har tagit fart, är det samma regel för träbyggnader för att uppnå robusthet? Tittar man på A.6 om vertikala förband så skriver både eurokoden och EKS om "bärverk i stål eller armerad betong" samt "vertikala dragband i lastbärande väggar av betong". Samtidigt är texten i A.5.1(3) i EKS skriven väldigt materialneutralt. Gäller A.4, A.5 och A.6 för byggnader med trästomme?

Svar: Ja, A.4, A.5 och A.6 gäller oberoende av stommaterial, alltså även trä eller murverk. Bärverk av stål eller armerad betong ges ju bara som exempel i A.6.

 

SS-EN 1991-1-4 Acceleration i tvärriktningen

Fråga publicerad 2023-01-04.

Fråga: Metoden för att beräkna accelerationen i första moden för ett konsolbärverk enligt EKS gäller, bara för accelerationen i vindens riktning. I den kanadensiska byggkoden NBCC finns beräkningsmetoder både för accelerationer i vindens riktning och för accelerationer tvärs vindens riktning av turbulenseffekter, samt för superpositionering av dessa accelerationer.

Hur ska man resonera kring accelerationer tvärs vindriktningen i höga hus i Sverige? Vilket regelverk ska man följa? Får man ens använda sig av t.ex. NBCC vid sina verifieringar eller måste man strikt följa EKS och eurokoden? Finns det några riktlinjer i eurokoden eller EKS för accelerationer av rotationsmoder i bärverket eller några tankar kring hur man ska verifiera komforten i byggnaden?

Svar: Avsnitt 6.3.4 i eruokoden handlar mycket riktigt om beteendet i vindens riktning. Belastning vinkelrätt vindriktningen på grund av virvelavlösning behandlas i Bilaga E. Denna bilaga får dock, enligt EKS, inte användas i Sverige. I stället hänvisas till Boverkets handbok om snö- och vindlast.

Eurokoden anger regler för de vanligaste fallen och dess syfte är i första hand att uppnå tillräcklig säkerhet. Utan erfarenhet av den kanadensiska koden är de svårt att uttala sig specifika regler i den. Den anses dock vara bra, och alternativa bruksgränskriterier får tillämpas om detta överenskommits mellan parterna.

 

SS-EN 1991-1-3 Formfaktorer på sadeltak

Fråga publicerad 2023-01-04.

Fråga:

Det är oklart hur 12 a § i Kap. 1.1.3 i EKS 11 ska tolkas.

Fråga 1): Ska 12 a § i EKS 11 användas endast för fall (ii) och (iii) (snödrift)? Och att för fall (i) används fortfarande μ11) och μ12). Anmärkningen längst ned i kapitel 5.3.3 i SS-EN 1991-1-3 antyder detta men andra personer och även handböcker menar att det som står i EKS 11 alltid ska användas, även för fall (i).

Fråga 2): Figur 5.3 i kapitel 5.3.3 i SS-EN 1991-1-3 visar ett sadeltak som principiellt har olika vinklar (α1 och α2) medan i figur C-3b i EKS 11 visar ett sadeltak med endast en vinkel utplacerad (α) och taket ser symmetriskt ut. Ska μ2 och μ5 i EKS 11 bero på sina respektive taks lutningar likt det som står i SS-EN 1991-1-3 (alltså μ2 beror av α1 och μ5 beror av α2)? I så fall måste man göra flera fall där μ5 i ena fallet är på "vänster sida" och i andra fallet är på "höger sida"? Alternativt att man tar μ5 på båda sidor för att vara på säker sida?

Svar:

Fråga 1):För fall (i) gäller det som står i  eurokoden. Enligt EKS 11 gäller den figur och de värden som anges i § 12a i Kap 1.1.3 för 5.3.3(4) vid snödrift i stället för fall (ii) och fall (iii) och de värden som anges i tabell 5.2 och figur 5.2 i eurokoden.

Fråga 2): Figuren i EKS är något svårtolkad, då taklutning bara anges för en sida av taket. Figuren och värdena i EKS är hämtad från Boverkets handbok för snö- och vindlast BSV 97. I figurtexten i BSV 97 står det att ”för icke-symmetriskt sadeltak bör varje takhalva behandlas som ena halvan av ett symmetriskt tak”. Hur detta ska tolkas är inte heller helt tydligt. En möjlighet är att dimensionera den ena halvan för ett symmetriskt tak med den takvinkeln (och husbredd) och den andra halvan för ett symmetriskt tak med den takvinkeln (och husbredd). I taknock får man väl välja den av dessa som ger störst belastning. I vardera fallen ska man då anta att vinden kan driva snön i två riktningar, vilket ger totalt fyra lastfall att beräkna.

Denna fråga behandlas även i Boverkets kunskapsbank:  Snölast på sadeltak - PBL kunskapsbanken - Boverket. Om sadeltaket är osymmetriskt utformat, det vill säga om lutningen skiljer sig åt mellan respektive takhalva, ska formfaktorerna för de två takhalvorna beräknas utifrån respektive vinkel, α.

 

SS-EN 1991-1-1 Säkerhetsklass på stabiliserande bjälklag

Fråga publicerad 2023-01-04.

Fråga: Vilken säkerhetsklass hamnar bjälklagen på i ett bostadshus med betongväggar och plattbärlag? Bjälklaget bidrar till att lokalt stabiliseraralla väggar samt totalstabiliteten. Särskild risk är det för ytterväggar utan vertikala dragband som blir en mekanism om bjälklaget är borta. Det innebär säkerhetsklass 3. I EKS 11 står det samtidigt "Byggnadens bärande huvudsystem inklusive de byggnadsdelar som är oundgängligt nödvändig för systemets stabilitet". Det skulle man kunna tolka som att bjälklagen hamnar i säkerhetsklass 2

Svar: De bjälklag som är nödvändiga för byggnadens totalstabilitet skall dimensioneras i säkerhetsklass 3. För övriga bjälklag, där ett eventuellt brott endast leder till en lokal skada, är det tillåtet att välja en lägre säkerhetsklass.

 

SS-EN 1991-1-3 Snölast på motfallstak som inte är multipeltak

Fråga publicerad 2022-11-23.

Fråga: Är det rimligt att vid motfallstak som ej är ett multipeltak, tillämpa figur 1:3a i den gamla handboken BSV97, Boverkets handbok för snö- och vindlast, utgåva 2 i och med att detta fall inte hanteras explicit i SS-EN 1991-1-3. Resultatet verkar dock bli samma som för multipeltak enligt SS-EN 1991-1-3 figur 5.4 fall (ii) för snölast påverkad av snödrift om man bortser från texten i BSV97 att µ3 kan sättas lika med 0,8 om taklutningen är 5 ° eller mindre.

Svar: Mot bakgrund av att användning av BSV för motfallstak och de faktorer som ges för mittsektionen av multipeltaket med snödrift i EN 1991-1-3 ger i princip samma resultat så bör det senare fallet (utvidgad tolkning av SS-EN 1991-1-3) i första hand åberopas vid dimensioneringen. Ingen reduktion görs om lutningen är 5 ° eller mindre. Detta ger bara en marginellt högre snölast när man dimensionerar enligt eurokoden i förhållande till enligt BSV.

 

SS-EN 1991-1 Olika säkerhetsklass på samma element?

Fråga publicerad 2022-11-23.

Fråga: Är det tillåtet att använda olika säkerhetsklasser på ett och samma element? Exempelvis vid dimensionering av ett stabiliserande bjälklag. Skulle man kunna använda SK2 när den nyttiga last är huvudlast och SK3 när vind är huvudlast? Stabiliserande enheter ska ju vara SK3.

Svar: Om bjälklaget är en del för att klara byggnads totalstabilitet skall bjälklaget dimensioneras i säkerhetsklass 3. Om det finns två variabla laster, tex nyttig last och vind, som ger lasteffekter i bjälklaget skall bjälklaget kontrolleras för två lastfall, ett då nyttig last är huvudlast och ett då vind är huvudlast. I båda kontrollerna väljs säkerhetsklass 3.

 

SS-EN 1991-1-7 Infästning av pelare som är väsentliga bärverksdelar

Fråga publicerad 2022-06-28.

Fråga: När en prefabricerad betongpelare eller stålpelare dimensioneras som väsentlig bärverksdel ska den, enligt EKS 11, ha en bärförmåga som är minst 1,3 gånger de dimensionerande lasteffekterna i brottlastfallet. Men vilket krav gäller för dess infästningar? För väggar och bjälklag är det mer tydligt att de ska kunna uppta en dimensionerande olyckslast på 34 kN/m2 som angriper i horisontal eller vertikal riktning och samma gäller för deras ansluta komponenter eller infästningar. För vilka laster samt riktningar ska man dimensionerna infästningar av dessa typer av pelare när de dimensioneras som väsentliga bärverksdelar?

Svar: Användning av A.8 i SS-EN 1991-1-7 gäller under förutsättning att det inte finns risk för påkörning på pelare, som om så är fallet ska dimensioneras (inklusive dess infästningar) för påkörningslast. Här är det fråga om andra ospecifika olyckslaster. Om detta inte hade behandlats i EKS skulle svaret ha varit enkelt och lasten 34 kN/m2 ha ansatts på pelarens sidoytor (en i taget) för dimensionering av infästningarna.

Infästning av pelare är ju en väsentlig del av pelarens bärförmåga och skrivningen i EKS tolkas så att även infästningarna ska, enligt de regler som anges i EKS 11 Avd C, kap 1.1.7 § 20, alltså dimensioneras för minst 1,3 gånger de dimensionerande lasteffekterna.

 

SS-EN 1991-1-3 Inverkan av snööverhäng

Fråga publicerad 2022-06-28.

Fråga: Enligt EKS 11 stycke 6.3(1) och 6.3(2) bör en byggnad vars höjd är mellan 400 och 800 meter över havet dimensioneras för ett snööverhäng på 0 till 5 kN/m längs med takfoten, förutsatt att taket saknar snörasskydd. I SS-EN 1991-1-3 6.3 Rekommenderas beräkningar för snööverhäng för platser över 800 meter över havet. Om taket är uppbyggt med nockbalk och takåsar med ett längre takfotsöverhäng kan lasten för snööverhäng längs med takfoten resultera i en lägre last mot nocken än vad som räknas fram utan snööverhäng. Om man har till exempel en takås vars lutning är 21 grader, längden mellan nock och fasad är 4,5 m, taköverhänget är 1,2 m och egentyngden är 0,62  kN samt c/c=1,2 m och snözon 5,5. Utan snööverhänget längs med takfoten fås då att reaktionskraften vid fasadlivet är 39,2 kN och reaktionskraften vid nock är 22,8 kN

Om man beaktar snööverhänget längs med takfoten (=5 kN/m) fås att reaktionskraften vid fasadlivet blir 49,6 kN och att reaktionskraften vid nock blir 20,5 kN. Lasten mot nocken blir alltså lägre. Skillnaden må vara liten i exemplet, men det ger utslag på pelare och balkar i nock vid längre spännvidder och kan dessutom bli större undra andra förutsättningar.

Är det rimligt att maximalt snööverhäng uppstår samtidigt som snölasten på taket är maximal? Eller ska byggnaden räknas med två olika situationer av snölast. En med snööverhäng vid takfot och en utan?

Svar: Enligt EN 1991-1-3 6.3 (2) bör snööverhäng beaktas vid dimensionering av utkragande takdel och naturligtvis stöd och infästningar för den delen. Den behöver alltså inte beaktas när man bestämmer lasten på en nockbalk i t.ex. ett sadeltak, såvida inte avstånd från nocken till den utkragande takdelen är mycket kort. 

 

SS-EN 1991-1-7 Kantpelare - väsentliga bärverksdelar - fel i svenska versionen av SS-EN 1991-1-7

Fråga publicerad 2022-03-14.

Fråga: När en kantpelare dimensioneras som väsentlig bärverksdel, kan anslutande bjälklag anses stagande i olyckslastfallet? Ska bjälklag ses som väsentliga bärverksdelar, eller anses bjälklag inte lika väsentliga som vertikalt bärande väggar och pelare?

Svar: Tack vare denna fråga har det upptäckts att det finns en felöversättning i den svenska versionen av SS-EN 1991-1-3.

I den engelska versionen står det:

"- the building should be checked to ensure that upon removal of each supporting column and each beam supporting a column, or any nominal section of load-bearing walls as defined in A.7 (one at a time in each storey of the building) the building remains stable and that any local damage does not exceed a certain limit. "

I den svenska versionen står det:

"- det kontrolleras att byggnaden förblir stabil och att ett lokaltlokalt brott inte överskrider en viss nivå för det hypotetiska fallet att någon bärande pelare , balk eller sektion av en bärande vägg i enlighet med definitionen i A.7 (en åt gången på varje våning i byggnaden) tas bort"

Som synes har beam supporting a column enbart översatts med balk, vilket gör att enligt den svenska versionen ska alla balkar kunna tas bort, medan enbart balkar som bär vertikala bärverksdelar ska kunna tas bort enligt den engelska versionen.

Denna miss har meddelats till SIS projektledare med ansvar för denna eurokod.

Till själva frågan, som bygger på texten i det engelska originalet.

Detta är i huvudsak en fråga som berör SS-EN 1991-1-7, bilaga A. Huvudalternativet för det andra alternativet för byggnader i konsekvensklass 2b är att strukturen ska dimensioneras så att den klarar att varje pelare kan tas bort i varje våningsplan åt gången vid belastning enligt olyckslastfallet. Klaras inte detta så kan man dimensionera pelaren och dess infästningar som en väsentlig bärverksdel som klarar olyckslasten enligt A.8, i vertikal och horisontell led. I vertikalled innebär det att den angivna olyckslasten ska antas verka på den yta som bärs av pelaren i ett plan vid dimensionering av hela pelaren. En kantpelare ska alltså för olyckslastfallet vara fullständigt infäst i varje anslutande bjälklag för att klara olyckslasten på pelaren från det planet. Byggnadens bärande och stagande system i övrigt ska också klara av denna belastning på pelaren. Inget bjälklag som ansluter till pelaren kan enbart ses som stagande för pelaren.

SS-EN 1991-1-3 Snölast mot snörasskydd

Fråga publicerad 2022-03-14.

Fråga: I SS-EN 1991-1-3 finns en formel för glidande snö (6.5). Det står "Under vissa förhållanden kan snö glida utför ett lutande tak". Frågan är vilka förhållanden detta avser? Och ska då linjelasten Fs hanteras som övriga horisontella laster och bäras av stommens stabiliserande system? Generellt ger väl snö som ligger på taket "i vila" ingen last i takfallets riktning, utan för att lasten ska uppstå krävs det en rörelse med stopp mot t.ex. ett snörasskydd. Men vid ett snörasskydd kommer snön satt packas mot snörasskyddet så att ingen rörelse mot det kan uppstå? Det är svårt att förstå hur lasten uppstår i verkligheten.

Svar: Stycket handlar om snölast vid snörasskydd och andra hinder. Enligt texten ska friktionskoefficienten mellan tak och snö antas vara noll, så snön ger ingen friktionskraft på taket när den glider. Den last som ges av ekvation 6.5 uppstår när den glidande snön träffar snöhindret. Snöhindret ska naturligtvis dimensioneras för denna last. I avsaknad av närmare anvisningar bör denna last beaktas när byggandens stabiliserande system dimensioneras. Den kan ju då ses som ett eget vanligt lastfall (nte olyckslastfal) med en alternativ fördelning av snölasten. I den ingår lasten mot snörasskyddet och den utbredda snölast på taket som inte har gett upphov till lasten på snörasskyddet. Den del av den utbredda lasten som har rasat ner mot snörasskyddet behöver inte räknas en gång till i det alternativa lastfallet.

 

SS-EN 1991-1-4 Olika terrängtyper för samma byggnad (2)

Fråga publicerad 2022-02-21.

Fråga: Om en byggnad ligger med en sydlig fasadyta 90 grader mot havet och den norra fasadytan ligger 90 grader mot hög skog. Om man bestämmer terrängtyp för vind uppströms mot fasaden bestäms de till olika terrängtyper då råhetslängden skiljer. Är det korrekt enligt SS-EN-1991-1-4 att räkna med olika terrängtyper för fasadytor mot olika väderstreck på samma byggnad? Eller ska man se det som att terrängtyp bestäms för hela området och inte för respektive sida uppströms mot vinden?

Svar: SS-EN 1991-1-4, A.2 beskriver hur man kan hantera övergången mellan olika terrängtyper.

 

SS-EN 1991-1-4 Olika terrängtyper för samma byggnad (1)

Fråga publicerad 2022-02-21.

Fråga: I avsnitt 4.3.2 (1) behandlas råhetsfaktorn. Råhetsfaktorn, cr(z), beaktar att variationen i medelvindhastigheten på byggnadsplatsen beror på dels höjden över markytan, och dels markens råhet på lovartsidan om byggnadsverket. En byggnad vid havet hänförs ofta till Terrängtyp 0. En sida på byggnaden är mot havet. Motsatt sida är att hänföra till terräng typ III. Är det korrekt att hänföra en byggnad till enbart en terrängtyp eller kan en byggnad hänföras till olika terrängtyper?

Svar: SS-EN 1991-1-4, A.2 beskriver hur man kan hantera övergången mellan olika terrängtyper.

 

SS-EN 1991-1-4 Bestämning av korrelationslängd

Fråga publicerad 2022-02-21.

Fråga: Bilaga E avsnitt E.1.5.2.3 behandlar korrelationslängd L, där (1) hänvisar till Figur E.3 för några exempel. Däremot anges inte hur korrelationslängden Lj bestäms. Det finns en tabell E.4 direkt under figur E.3, men det saknas hänvisning till tabell E.4, vilket gör det oklart hur den ska tillämpas. Är det så att korrelationslängden ska bestämmas direkt enligt tabell E.4?

Svar: Tabell E.4 beskriver den effektiva korrelationslängden som funktion av vibrationsamplitud och den får bestämmas ur ett iterativt förfarande. Anta största förskjutning y, beräkna Lj, clat och Kw (som också beror på Lj) och K för att sedan uppskatta yF enligt (E.7) och upprepa tills y = yF.

 

SS-EN 1991-1-4 Vindlast på suicidskydd på bro

Fråga publicerad 2022-02-21.

Fråga: Hur ska man beräkna vindlaster på ett suicidskydd, som ska fästas på en bro. Det är utformat som en stålgrind som fästs på bron och består av 20 mm spjälor med mellanrummet 80 mm samt lite övrigt, alltså en fyllningsgrad på ca 0,23. Enligt formel 7.28 beräknas en täthet φ som i detta fall blir 0,23. Denna täthet ska sedan användas för att ta fram formfaktorn cf,0 ur figur 7.33. Enligt denna figur har en gles konstruktion med fyllnadsgrad nära 0 en faktor nära 2, sedan minskar faktorn för att runt en fyllnadsgrad på 0,22 - 0,23 plana ut på faktorn 1. Den effektiva slankheten bestäms enligt tabell 7.16. I detta fall är skärmen ca 2 m hög och 350 m lång, den monteras i höjd med brons kantbalk som befinner sig ca 30 m över underliggande mark och vatten. Det finns då inget fall i tabell 7.16 som passar helt, men Nr 1 behandlar i alla fall en liggande konstruktion mer än 4 m över marken. Med denna fås en effektiv slankhet på 70. Denna slankhet används sedan för att ur figur 7.36 ta fram en reduktionsfaktor. Med den effektiva slankheten längs x-axeln ska man få fram en reduktionsfaktor som beror av den tidigare fyllnadsgraden. Ju lägre fyllnadsgrad desto högre blir reduktionsfaktorn. I detta fall ca 0.98. Då det i detta fall främst handlar om plattstål används sedan formel 7.25 för att ta fram en formfaktor. Denna formfaktor blir i samtliga fall över 1 men under 2. Syftet med den här formeln bör ju vara att ta ner lasterna på en icke tät konstruktion jämfört med en helt tät konstruktion. Då blir det underligt med en faktor som är större än 1. Är denna tolkning rätt? Ska en gles konstruktion belastas med en faktor större än ett? Är det rätt tolkning av figur 7.36 rätt att en tät skärm får en mer gynnsam reduktionsfaktor? Är det rätt tolkning av figur 7.33 ratt en riktigt gles konstruktion får samma faktor som en helt tät?

Svar: Koefficienten cf,0 för ett fackverk bestäms enligt figur 7.33 där φ är den så kallade fyllnadsgraden. Figuren bygger på provning av ett fackverk med platta profiler. Koefficienten cf är inte konstant utan varierar bland annat med Reynolds tal. Olika tvärsnittsformer ger olika koefficienter som kan vara större än 1.För att korrigera för flöde runt ändar/kanter behöver man titta på konstruktionens slankhet, lambda (tabell 7.16). Vindlasten kan sedan beräknas enligt (5.3), Fw = cscd*cf*qp*Aref, där cf beräknas enligt (7.25). I det fall du beskriver, med antagande on att cscd = 1 och en fyllnadsgrad på 0.23, skulle Fw kunna skattas till cirka 227 qp (cf = 1.62), men för en tät skärm till ca 1274q qp (cf = 1.82). Den totala vindlasten mot den spjälade konstruktionen blir då ca 1/6 av vad den blir mot en tät skärm.

 

SS-EN 1991-1-4 Vindlast på tak med lutning större än 75 °

Fråga publicerad 2022-02-21.

Fråga: Formfaktorer för vindlast på tak ges upp till 75 ° lutning på taket. Vindlaster för väggar ges för vertikala väggar vilket rimligen bör tolkas som väggar med 90 ° lutning. Om ett tak har en lutning större än 75 ° men mindre än 90 ° vilka formfaktorer skulle användas då? Till exempel för ett sadeltak med taklutningen 80 ° och vindriktningen 90 °.

Svar: SS-EN 1991-1-4 är endast giltig för de lutningar som anges. Vill man gå utanför eurokoden krävs särskilda utredningar.

 

SS-EN 1991-1-4 Övergång mellan terrängtyp 0 och terrängtyp II.

Fråga publicerad 2022-02-21.

Fråga: Vad gäller en för en byggnad som är belägen i terrängtyp II men i närheten finns terrängtyp 0, när man använder metod 1 i A.2 för att bestämma terrängtyp vid övergång mellan olika terrängtyper? Vilket avstånd krävs minst från byggnaden till terrängtyp 0 för att byggnaden ska hänföras till terrängtyp II. Är det 2 km, eller 2+1=3 km?

Svar: SS-EN 1991-1-4, A.2 beskriver hur man kan hantera övergången mellan olika terrängtyper. För metod 2 gäller:

"Om ett bärverk är beläget nära gränsen mellan två terrängtyper bör vindlasten bestämmas med utgångspunkt från terrängtypen med lägre råhet om denna ligger uppströms mot vindriktningen och avståndet till gränsen är

                          - mindre än 2 km för terrängtyp 0

                         - mindre än 1 km för terrängtyp I, II eller III."

Det innebär att för en byggnad belägen i terrängtyp II bör vindlast enligt terrängtyp 0 om övergången till terrängtyp 0 ligger på ett avstånd som är mindre än 2 km från byggnaden.

 

SS-EN 1991-1-3 Snöfickor runt hinder med utbredning i två riktningar

Fråga publicerad 2022-02-18.

Fråga: Kapitlet 6.2 som behandlar snödrift kring hinder, förklarar väl hur man ska beräkna snöficka vid en skärm som i figur 6.1, med snöficka på vardera sida om skärmen. Hur blir snöfickornas utbredning vid till exempel en stor ventilationshuv, som har en utbredning i plan i båda riktningar. Ska utbredningen beräknas på samma sätt fast i båda riktningar, det vill säga med fyra snöfickor? Eller ska de ansättas radiellt runt det lokala hindret?

Svar: När man hamnar utanför det som det finns specifika regler för blir det fråga om en ingenjörsmässig bedömning. Om det blåser från det ena hållet så bildas det snöfickor framför och bakom ventilationshuven, men vinden blåser troligtvis bort eventuell ansamlad snö utmed sidorna. Blåser det vinkelrätt mot denna riktning så bildas snöfickor i andra riktningen och det blåser rent längs med vindriktningen. Ett förenklat angreppssätt, som bör vara tillräckligt så länge det inte är fråga om särskilt känsliga konstruktioner, kan vara att anta snöfickor framför och bakom huven först i en riktning och sedan i den andra riktningen som två olika lastfall.

 

SS-EN 1991-1-3 Snöficka mellan tak i vinkel

Fråga publicerad 2021-12-02.

Fråga: Ska man räkna med snöficka på de bifogade tillbyggnaderna som visas i figurerna nedan?

Om det blir snöficka, hur räknar man då fram den?

Om man ska räkna enligt 5.3.6 i 1991-1-3; vilket värde på h ska man då använda?

Om man inte ska räkna med någon snöficka, bör man i så fall räkna med exponeringsfaktorn Ce=1,2 i stället för 1,0?

Ska formfaktorn för pulpettaket i tillbyggnad 1 vara u µ1 enligt 5.3.2 eller µ5 enligt nationellt val till 5.3.3?  

Bild 57.PNG

Svar:  Snöficka bildas vanligtvis bara där man har ett vertikala hinder i form av en vägg, en skärm eller lutande solpaneler, och den tillkommande lasten är bland annat beroende av höjden hos hindret. Detta är inte fallet i någon av tillbyggnaderna 1 och 2.

Att betrakta tillbyggnad 1 som ett fristående pulpettak, vilket skulle ge att µ1 enligt Tabell 5.2, d.v.s. 0,8, kan man ifrågasätta. Med den tillbyggnaden bör man betrakta tillbyggnaden som en del av ett sadeltak, brutet i gränsen mellan tillbyggnaden och huvudbyggnaden. I det fallet ska reglerna i EKS tillämpas, d.v.s. µ5. Frågan blir då vilken taklutning man ska använda, taklutningen hos det lägre taket, hos huvudbyggnadens sadeltak eller en lutning som motsvarar en rät linje från huvudbyggnadens nock till tillbyggnadens takfot. Ett val på säker sida är att använda den vinkel som ger det högsta värdet på µ5 för att dimensionera tillbyggnadens tak, i detta fall kan µ5 bli högst 1,15. 

För tillbyggnad 2 ska taket på tillbyggnaden dimensioneras på samma sätt som ett fristående sadeltak, utan snöfickor i gränsen mellan tillbyggnaden och huvudbyggnadens tak.

Topografifaktorn är till för att ta hänsyn till topografin i vilken byggnaden befinner sig, inte hos byggnaden själv.

 

SS-EN 1991-1-3 Snöficka vid avstånd mellan byggnader

Fråga publicerad 2021-12-02.

Fråga: Vid vilket avstånd mellan två byggnader behöver man börja räkna med snöficka, om en byggnad är högre än den andra? 1,5 meter anges som approximativt värde vid exceptionell snölast.

Svar:

Bild 56.PNG

 

SS-EN 1991-1-3 Snöfickor på indragna takterrasser i två plan

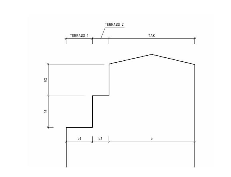
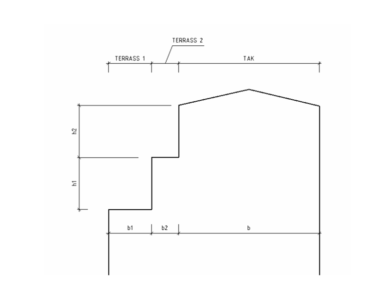
Fråga publicerad 2021-11-03.

Fråga: Finns det angivet i SS-EN 1991-1-3 hur snöfickor ska beräknas om en byggnad har tak i två stycken lägre nivåer, det vill säga att byggnadens två översta plan är indragna, se figur?

Bild 54.PNG

Svar: Det finns inga anvisningar i SS-EN 1991-1-3 för hur detta fall ska hanteras. Snön som faller från det översta taket bildar ju en ficka på den översta terrassen som är längre (ls) än den terrassens längd (b2), det vill säga den ger även ger upphov till snöras på den lägre terrassen. Snöras kan också ske från den övre terrassen till den lägre terrassen.  Men om det bara funnits den lägre terrassen, så hade snöfickans längd varit ännu längre. Dessutom är det ju fråga om terrasser, inte renodlade yttertak som i 5.3.6

För detta fall krävs en ingenjörsmässig bedömning som ger en uppskattning på säker sida över hur snöfickorna kommer att se ut, och den bör motiveras.

 

SS-EN 1991-1-3 Snödrift- och ras från L-formad byggnad

Fråga publicerad 2021-11-03.

Fråga: Hur ska man hantera snödrift- och ras från en L-formad byggnad, på ett tak som ligger på en lägre höjd och som ansluter sig till den L-formade byggnadens väggar? Ska man superponera snölasterna från L-byggnadens två sidor på samma sätt som i Figur 1:3d fall III i BSV97? Hur gör man med hörnet som L-formen bildar?

Svar: När det gäller dimensionering för snölaster, inbegripet fenomen såsom exempelvis snödrift, nedfallande snö från högre beläget tak och snöficka, ska SS-EN 1991-1-3 användas, där bland annat figur 5.7 är intressant, tillsammans med nationella val i EKS 11. Varken SS-EN 1991-1-3 eller EKS 11 är emellertid uttömmande när det gäller tillvägagångssätt för alla de sorters lastsituationer som kan uppstå, utan tillämparen behöver ofta göra egna fackmässiga bedömningar.

I de fall specifika regler, t.ex. formfaktorer, inte existerar i eurokoderna för något speciellt fall, kan den som ska dimensionera bärverket använda sig av andra anvisningar, t.ex.  i form av handböcker, andra regler, andra standarder eller dylikt. Men det är då användarens ansvar att säkerställa att eller göra de anpassningar som krävs för att giltighet och förutsättningar för de alternativa anvisningarna överensstämmer med vad som gäller i det aktuella fallet. Motivering och eventuella anpassningar bör då också dokumenteras.

Hur man ska hantera snölast i hörn är ett exempel på detta. Man kan få viss hjälp genom att studera bakgrundsdokumentationen till Eurokod.

Ett skäl att utgå från andra dokument än eurokoderna, som BSV 97, kan vara att det gäller ändring av en befintlig byggnad där BSV 97 tillämpades ursprungligen. BSV 97 anger ju till exempel andra formfaktorer och längd för snöficka än SS-EN 1991-1-3.

 

SS-EN 1991-1-4 Reduktion av laster vid infästning av fasadskikt

Fråga publicerad 2021-05-18.

Fråga: Hur skall art 7.2.10 tolkas när det gäller laster på infästning av det yttersta skiktet fasadskikt och laster på en eventuell sekundärstomme som bär upp exempelvis en skivfasad? Här avses det yttersta skiktet (skivor eller liknande) och dess sekundära bärsystem (t.ex. fasadläkt ) utanför en vindskyddsskiva (lufttät stomme). Skulle då fasadskivan, dess infästning till sekundärsystem och dimensioneringen av själva sekundärsystemets profiler kunna utföras med en reducering av vindlasterna såsom artikel 7.2.10 medger. Det förutsätts då att det finns hinder som gör att vinden att inte kan dra runt hörnet, men att det i övrigt på ett fasadavsnitt (exempelvis en gavel) utgörs av en och samma luftvolym utan hinder? Detta skulle då medge en avsevärd reduktion av lasterna på det yttersta fasadskiktet, dess infästningar och dess sekundärsystem jämfört med tidigare normer i Sverige. Även om det finns en hel del olikheter mellan normerna, görs här en jämförelse av de formfaktorer som erhålls på det yttersta skiktet i fasaden och dess infästning.
EN 1991-1-4 :  Cpnet = 1/3∙1,4 = 0,47
BKR: µ = 1,7
SBN:  µ = 2,0 
I Danmark (EN 1991-1-4 DK NA:2007) anser man att 7.2.10 är felaktig.

Finns det någonstans redovisat hur fasaden ska utformad för att 7.2.10 ska gälla? Om kravet för att en fasad ska vara tät är att den har en permeabilitet på högst 0,1 %, så finns det rimligen få fasader som kan anses vara täta. Laster i hörzoner av ventilerade fasader blir väldigt låga.

När det gäller kravet att det inte får finnas öppna kanter avses då ett enskilt fasadskivselement eller en hel fasadsida?

Finns någon litteratur/bakgrundsfakta kring hur reduktionen har tagits fram?

Svar: Eurokod helpdesk kan inte ge detaljerade råd för en specifik konstruktion.

Inget nationellt val är gjort i anslutning till kap. 7.2.10.

Kap. 7.2.10 beskriver hur vindlast kan appliceras för att utvärdera varje enskilt lager och dess infästning i bärande delar, men principiellt brukar det aerodynamiska trycket vara större nära kanter och takfot. En förutsättning är att det inte finns några öppna kanter, se kap. 7.2.10, figur 7.17 (b).

Danmark (DS/EN 1991-1-4 DK NA:2015) har gjort det nationella valet att använda - 0,9 och att det skulle innebära att trycket inte underskattas. Ett annat exempel är Hong Kong (Code of Practice on Wind Effects in Hong Kong, 2004) där rekommendationen är -0,9 - +1,0 för hörnzon och i det fall en panel kan ramla ner krävs mer detaljerade utredningar.

Med hjälp av Bernoullis ekvation kan man för en permeabel flerskiktspanel beskriva flödet mellan parallella paneler och plattor i en modul för att uppskatta krafterna mellan panel och platta. Om man vill förenkla resultatet behöver man också ha en förståelse för flödet ovan panelerna. Relationen mellan en öppning mellan panelerna och avståndet mellan panel och platta samt panelens storlek (yta) bestämmer en eventuell reduktionsfaktor man skulle kunna använda på det yttre trycket. Små paneler med lika avstånd mellan panel och platta ger högre faktor än om man har en större yta.

 

SS-EN 1991-1-3 Två frågor - ett svar angående snörasskydd på sadeltak

Fråga publicerad 2021-05-18.

Fråga 1:

Fråga 2:  I EKS 11 5.3.3 (4) står att formfaktorn ej ska väljas lägre än 0,2 för tak med snörasskydd. Detta innebär att för tak med till exempel en lutning på 45° blir formfaktorn 0,4 och med snörasskydd blir formfaktorn 0,44. I svensk standard SS 831335:2017 som handlar om taksäkerhet, kap. 3.3 - Snörasskydd står det att för sadeltakskonstruktioner som dimensioneras för snölaster enligt EKS 10 och senare ska formfaktorn för respektive takfall följa kurvan µ4 upp till 22,5 ° och därefter värdet 1,1. Varför skiljer det så mycket från EKS och vilken formfaktor ska användas? Ska ett sadeltak med en lutning på 45 °, ha en formfaktor på 0,44 eller 1,1? Ännu större skillnad blir det för tak med lutningen 60 °, men det är nog rätt ovanligt med så stora lutningar. 

Svar: Ändringen finns motiverad i konsekvensutredningen som gjordes till EKS 11: Konsekvensutredning BFS 2019:1

Nedan citeras från denna utredning:

"Tidigare allmänt råd angav att ingen reduktion görs av snölasten för taklutningar över 22,5 ° på tak med snörasskydd. Att inte tillåta en reduktion i fallet med snörasskydd leder till onödigt dyra konstruktioner. Snön inte bara glider av utan blåser också av. Mindre mängd snö kommer därför att lägga sig på taket vid större taklutningar även på ett tak med snörasskydd. Det är därför rimligt att tillåta en reduktion av snölasten även då snörasskydd finns. Dock bör man inte utgå från att all snö försvinner från taket vid stora taklutningar. Därför bör reduktionen begränsas för tak med snörasskydd så att formfaktorn aldrig sätts lägre än 0,2."

Det innebär att det enligt EKS 11 för ett tak med 45 graders lutning blir 0,44 som formfaktor

SS-EN 1991-1-3 Formfaktor för snödrift vid hinder

Fråga publicerad 2021-05-18.

Fråga: En fråga angående kapitel 6.2 Snödrift kring hinder. Om man har en skärm som inte är helt stängd utan har jämnt fördelade öppningar, finns det då någon möjlighet att reducera formfaktorn så att detta beaktas?

Svar: Rent formellt finns det i EN 1991-1-3 inte något sätt att reducera formfaktorn. I ett specifikt fall kan man tänka sig att det är möjligt att det inte lägger sig lika mycket snö som tänkt i modellen i avsnitt 6.2 om hindret har öppningar där snön kan blåsa igenom. Hur avsteg kan göras är svårt att säga generellt utan får avgöras från fall till fall, då det beror på hur stora öppningar det är och hur mycket snö som då kan tänkas blåsa bort istället för att lägga sig vid skärmen. Det som erfordras är en ingenjörsmässig bedömning av rimligheten i de formfaktorer som ges i avsnitt 6.2 i förhållande till de verkliga förhållanden som rimligen kan uppstå på det specifika taket. 

SS-EN 1991-1-7 Klassificering av byggnader som rymmer farligt gods eller riskfyllda processer

Fråga publicerad 2021-04-09.

Fråga: I SS-EN 1991-1-7 bilaga A (Tabell A.1) redovisas exempel på indelning av byggnadstyper/användning i konsekvensklasser. När det gäller vilka byggnader som hamnar i konsekvensklass 3 så är det för de flesta byggnadstyper tydligt utifrån storlek, antal våningsplan, med mera. Men när det kommer till "byggnader som rymmer farligt gods eller riskfyllda processer" så är det en tolknings- och bedömningsfråga. Vilka typer av byggnader faller inom detta? Är det volymen brandfarlig vara, potentiell storlek på olyckslaster, eller någonting annat som avgör om det faller inom detta? Min fråga är alltså, finns det några bedömningsgrunder att luta sig mot för att ta ett sådant avgörande?

Svar: Detta kommer alltid att vara en bedömningsfråga, utifrån vad som blir konsekvenserna av om det farliga godset exploderar eller fattar eld, eller de riskfyllda processerna går på tok. Detta påverkas av bland annat olyckskällans typ (det farliga godset eller den riskfyllda processen), vilka de direkta konsekvenserna i byggnaden blir (exempelvis lokal skada eller kollaps, stabilitetsbrott, total kollaps, risk för fortskridande ras, typ av byggnad, hur mycket folk som normalt befinner sig i byggnaden och dess omgivning, risk för spridning till andra byggnader). Innebär godset/processen bara risk för en lokal skada där konsekvenserna relativt lätt kan begränsas genom att man vidtar de åtgärder som anges för riskgrupp 2a eller 2b och som inte innebär andra typer av risker som inte har att göra med byggnadens stabilitet och bärförmåga (som spridning av farliga ämnen till omgivningen) bör byggnaden kunna anses tillhöra dessa konsekvensklasser. I alla andra fall bör byggnaden klassas som konsekvensklass 3 och en riskanalys enligt Bilaga B i EN 1991-1-7 genomföras för att bestämma behov av skyddande åtgärder.

 

SS-EN 1991-1-7 Dimensionering för både olyckslast och robusthet

Fråga publicerad 2021-04-09.

Fråga: Behöver en bärverksdel dimensioneras för att motstå last från påkörning alternativt hinder sättas upp som kan motstå påkörningslasten (identifierbar händelse), samtidigt som stommen dimensioneras enl. Bilaga A SS-EN 1991-1-7 för tillräcklig robusthet? Det som är oklart är om byggnaden samtidigt behöver dimensioneras för identifierbara olyckslaster och ospecificerade olyckslaster? Eller anses byggnaden tillräckligt robust om man dimensionerar enligt Bilaga A SS-EN 1991-1-7 och att dimensionering för påkörning då inte krävs?

Svar: Enligt EN 1990 3.5.3(P) ska verifiering utföras för alla relevanta dimensioneringssituationer och lastfall. För exceptionella dimensioneringssituationer anges också att lastkombinationer i det fallet antingen bör innehålla en uttrycklig olyckslast eller hänföra sig till en situation efter en olyckshändelse. Är det relevant med påkörningslast så är det ett lastfall, medan olyckshändelse på grund av oidentifierbar händelse är ett annat lastfall. Dimensionering ska ske för båda, där de är relevanta.

I EN 1997-1-1 4.1(2)P står att påkörningslast ska i byggnader beaktas för byggnader som innefattar utrymmen för parkering av bilar, byggnader i vilka gaffeltruckar är tillåtna eller byggnader som är belägna intill väg- eller järnväg. Har man något av dessa fall räcker det inte med att hänvisa till att man dimensionerar för oidentifierbar händelse enligt bilaga A, utan då måste man göra en specifik dimensionering för påkörningslasten.

Att man dimensionerat en viss del av ett bärverk för påkörningslast innebär säkert att just den delen även klarar robusthetskravet, men inte att byggnaden i sin helhet klarar en oidentifierbar händelse som ju kan inträffa var som helst i byggnaden. Byggnaden som helhet ska därför dimensioneras för oidentifierbar händelse i enlighet med den säkerhetsklass den hänförs till enligt bilaga A i EN 1991-1-7, oberoende om påkörningslast också måste beaktas eller inte.

 

SS-EN 1991-1-4 Vindlast på byggnader som står tätt

Fråga publicerad 2021-04-09.

Fråga: Ger eurokoden någon möjlighet att reducera vindlast för byggnader som står mycket tätt ihop? Tänker främst på till exempel kedjehus där husens långsidor är placerade mot varandra med bara några meter mellanrum, det känns inte rätt att dimensionerna med full vindlast i dessa fall.

Svar: EKS 11 anger att nationellt val är gjort för SS-EN1991-1-4, 4.3.5(1). Metoden i A.5 får inte tillämpas.

Det allmänna rådet är "Bestämning av inverkan av tätt placerade byggnader och hinder bör baseras på vindtunnelförsök. Som alternativ till vindtunnelförsök kan även numeriska metoder, såsom finita volymer och finita element, användas. (BFS 2019:1)."

 

SS-EN 1991-1-4 Övergång mellan olika terrängtyper

Fråga publicerad 2021-04-09.

 

Fråga: Ska terrängtypen för byggnader i Göteborg (vid sidan av Göta Älv) beaktas som terrängtyp I? Det är lite svårt att tolka de olika metoderna som anges i bilaga A (metod 1 och 2). Enligt metod 1: Om avståndet mellan byggnaden och terräng med lägre råhet ärr mindre än 1 km, så hamnar man i terrängtyp I. Kan det vara aktuellt? Kan vinden öka hastigheten så mycket inom en kort tid? När det gäller metod 2, är det så att om x (avståndet från byggnaden till terräng med lägre råhet) är mindre än de värden som anges i tabell A.1 så får man inte tillämpa terrängtypen med högre råhet? Vad är definitionen av lägre råhet? Kan man beakta Göta Älv som en terräng med lägre råhet eller menas det till havet? Stämmer det att terrängtyp 0 har den lägsta råheten och terrängtyp IV har den högsta? Man kan bli lite förvirrad med definitionen mellan råhet och råhetsfaktorn.

Svar: Eurokod helpdesk kan inte svara specifikt vad som gäller vid en speciell plats.

Allmänt gäller vindlasten för horisontell homogen strömning och att råhetslängden är jämnt fördelad över ett oändligt plan. För två närliggande områden med z01 < z0 gäller att med samma (geostrophic) vindhastighet över båda områdena får man en lägre medelvindhastighet över det område som har störst råhetslängd. Sand kan ha råhetslängden på 0,01-0,1 cm medan en 5 m hög granskog kan ha 90 – 100 cm. Studier av övergången mellan områden med olika råhet finns i litteraturen. I fallet mjuk till rå och för medvind kan man identifiera tre områden med linjär övergång och det resultatet återspeglas i SS-EN1991-1-4.

SS-EN1991-1-4 ger två metoder. I den ena utgår man från området med den lägre råhetslängden om den ligger uppströms vindriktningen och sedan beaktar man avståndsgränser beroende på terrängtyp. I den andra metoden bestämmer man råhetslängden för sektorer på avstånd från det aktuella objektet, sedan jämför man avståndet med tabell A1. Om avståndet mellan objektet och området med lägre råhetslängd är kortare än i tabell A1, väljs den lägre råhetslängden, För det motsatta fallet väljs den högre råhetslängden.

Notera även SS-EN1991-1-4 4.3.2 (4): "Om valet står mellan två eller flera terrängtyper inom ett visst område bör den terrängtyp väljas som ger den minsta råhetslängden."

  

SS-EN 1991-1-7 Punktlast på räcke på terrass

Fråga publicerad 2021-03-01.

Fråga: Är punktlasten på ett räcke i terrass/gårdsbjälklag i en skola 3 kN eller 1k N? Hittar inget direkt svar i EN 1991-1-1.

Svar: Terras tillhör kategori C5 enligt SS-EN 1991-1-1 tabell 6.1. Avsnitt 6.4 i SS-EN 1991-1-1 behandlar laster på räcken. Det finns ett nationellt val till detta avsnitt. Enligt detta skall räcket dimensioneras för en punktlast på 3 kN.

 

SS-EN 1991-1-1 Klassning av utrymme för restaurang på tak

Fråga publicerad 2021-03-01.

Fråga: Klassas ett utrymme på ett tak i vilket det skall bedrivas restaurangverksamhet, och där det kommer det finnas bord, stolar och bar som terrass eller restaurang? Restaurang klassas nämligen som C1 medan terrass hamnar i C5. Det som skiljer dessa åt är möjligheten för stora folksamlingar. Hur definieras stora folksamlingar? Går det att förhindra stora folksamlingar och klassa utrymmet till C1 genom att begränsa antalet människor eller kanske förbjuda dans, scener eller minska ner öppna utrymmen?

Svar: Det finns ingen exakt definition, utryckt i personer per kvadratmeter, för att det skall tolkas som en stor folksamling. De nyttiga lasterna i SS-EN 1991-1-1 är extrema laster, dvs de uppträder endast ett fåtal gången under konstruktionen livslängd. Lasterna är bestämda utifrån mätningar och värderingar baserat på forskning. Man har kommit fram till att belastningen från nyttig last på en terras är dubbelt så stor som motsvarande last i en restauranglokal. Är det en lokal som permanent används som restaurang gäller belastning C1. Är det så att lokalen vanligen fungerar som restaurang men ibland flyttas borden åt sidan för att kunna få plats med mer människor bör lokalen dimensioneras för belastningen C5, särskilt med tanke på att utrymmet är placerat på taket.

 

SS-EN 1991-1-7 Avstånd (s) mellan förband

Fråga publicerad 2021-02-01.

Fråga: Enligt EKS 11 kap 1.1.7 17§ begränsas termen s till minst 3,6 m. Enligt SS-EN 1991-1-7 avser detta avståndet mellan förbanden. Borde inte begränsningen ligga i förbandets längd (benämns som L) istället? Förbandets längd kan i många fall bli över 30 m vilket ger orimliga värden för förbanden när dessa inte kan sättas tätare än 3,6m.

Svar: I texten anges att man ska använda minst 3,6 m på s för beräkning av den kraft som förbanden ska klara (T), och det gäller bara om upplaget är väggar. Vilket avstånd s som man sedan anger att förbanden ska läggas på är en annan fråga och då gäller inte begränsningen på 3,6 m.

Observera att aktuell §17 är ett allmänt råd och inte en bindande föreskrift.

 

 

SS-EN 1991-1-3 Snödrift vid hinder på tak

Fråga publicerad 2021-01-02.

Fråga: I kapitel 6.2 "Snödrift vid hinder" presenteras en formfaktor och en längd på en snöficka kring ett hinder på etnit tak. Det är dock inte definierat när ett hinder övergår till att vara ett "högre byggnadsverk" enligt kap 5.3.6. Snöfickans maxvärde kring ett hinder är hälften så stor som vid ett högre byggnadsverk så den kan vara dimensionerande. Ett exempel är ett relativt litet fläktrum på ett stort tak. I EKS11 får man ingen vägledning gällande kapitel 6.2. I §3 anges dock att B.1, B.2 och B.3 i bilaga A inte behöver beaktas. Dock kan B.2 beaktas. B.4 där just hinder på tak behandlas nämns inte och det är svårtolkat huruvida det kapitlet gäller i Sverige eller inte? Om inte, hur ska man skilja på ett hinder och ett högre byggnadsverk? Det borde finnas givna geometriska gränsvärden. Om B.4 gäller i Sverige så kan man anta att man ska följa de gränsvärden som anges där. Men då borde detta även förtydligas i EKS.

Svar: I bilaga A anges ett antal lastfall benämnda A, B.1, B.2 och B.3. B.1-B.3 innefattar exceptionell snödrift och/eller exceptionella snöfall. Dessa lastfall behöver man enligt EKS inte beakta i Sverige. Det är alltså fall A som gäller. Lastfall B.1 – B.3 refererar inte till styckena i Bilaga B. Bilaga B tar upp vad som gäller vid exceptionella snöfall eller exceptionell snödrift, vilket gör att den normalt inte är relevant för svenska förhållanden.

I det allmänna rådet ges det dock möjlighet att i mycket speciella fall använda sig av de exceptionella lastfallen:
"I de fall byggherren önskar en högre tillförlitlighet än normalt för ett bärverk i öppen terräng där höga vindstyrkor kan förekomma i samband med snöfall kan dock bärverket även verifieras för lastfall B.2 med hänsyn till exceptionell snödrift. I de fall verifiering sker för exceptionell snödrift kan snölasten betraktas som olyckslast."

Att avgöra om man ska tillämpa regler om snödrift vid hinder (6.2) eller regler om "högre byggnadsverk" (5.3.6) blir en bedömningsfråga baserat på hindrets dimensioner i förhållande till taket, och i tveksamma fall kan det vara lämpligt att genomföra en beräkning enligt båda principerna.


SS-EN 1991-4 Frågor angående beräkning av silotratt m.m.

Fråga publicerad 2020-12-15.

Fråga:  Några frågor angående SS-EN 1991-4   

  1. Borde Pwf(z) i ekv. 5.3 vara Pvf(z)
  2.  Ska undre karakteristiska väggfriktionskoefficienten (µh) från figur 6.1 användas när Pvf beräknas för tratten?

  3. Enligt figur 6.2 och 6.4 är det väldigt olika kurvor för en brant tratt, dock är skillnaden mellan ekvation 6.19 och 6.24 en konstant (Ff och Fe).

  4. Ska tan-1(µh) i ekvation 6.23 tolkas som arctan eller 1/tan?

  5. I ekvation 6.22 står det sinφ1 i nämnaren, ska detta vara sin ϕ i?

  6. Ska ekvation 6.23, 6.22 och 6.21 beräknas med radianer eller grader?

  7. Vid beräkning av tömningslast erhålls inte samma värden på Fe enligt ekvation 6.21 som enligt bilaga G.10. Fe enligt ekvation 6.21 blir 1.02 och Fe enligt bilaga G.10 blir -4.8. Är det något fel med dessa ekvationer? ϕ i=30°, µh =0.43, β=13°.

  8. Är det möjligt att få tag i ett beräkningsexempel på en brant tratt med numeriska värden samt resultat?

  9. Är det möjligt att få direktkontakt med någon som är insatt i denna standard?

  10. Räknas alltid Pvf för tratten i ekvation 6.2 ut med värden markerade med grönt?

11.   Vid beräkning av maximalt trattryck vid påfyllning används inte K eller ϕi trots att dessa står i tabellen ovan. Hur kommer detta sig?

12.  Vid beräkning av maximalt trattryck vid tömning används inte K trots att detta står i tabellen ovan. Hur kommer detta sig?

13.  I tabellnot 1 i tabell 3.1 står det att ϕ whϕ i. Innebär detta att undre karakteristiska friktionskoefficienten i Figur 6.1 inte ska användas om ϕ whϕ i utan räknas fram genom att ta tan(ϕi) = µh? Ekvation 6.23 verkar inte gå ihop med Figur 6.1.

14.  Ska beräknat karakteristiskt värde enligt ekvationerna 4.3 och 4.4 för väggfriktionskoefficient från Tabell E.1 användas vid beräkning av mantel?

15.  Ska beräknat karakteristiskt värde enligt ekvationerna 4.3 och 4.4 för väggfriktionskoefficient från Tabell E.1 användas vid beräkning av tratt?

16.  Om svaret är nej på fråga 15 eller 16 ovan, hur får man fram den karakteristiska undre/övre friktionskoefficienten?

Svar:

  1. Ja, ekv 5.3 ger Pvf(z).
  2. Vid dimensionering av själva tratten används undre värden från figur 6.1.
  3. Spänningen i godset pv är en funktion av dessa konstanter som ersätter F i faktorn n, se ekv 6.7 och 6.8.
  4. ϕ är en vinkel, tan-1 ska därför tolkas som arctan. Detsamma gäller sin-1 i ekvation 6.22.
  5. Ja, det ska vara index i.
  6. Vad som väljs av radianer eller grader är upp till konstruktören, dock ska valet vara konsekvent.
  7. Resultaten på Fe verkar stämma med ekvationer i standarden. EN 1991-4 genomgår dock en uppdatering och den alternativa metoden enligt Bilaga G10 har strukits från det aktuella utkastet.
  8. Det finns inga publicerade exempel om sådana beräkningar som Helpdeskens expert känner till.
  9. EN 1991-4 uppdateras av CEN/TC250/SC1/WG5. Det finns ingen svensk representant i arbetsgruppen. Sammankallande är professor Jørgen Nielsen från Aalborg Universitet i Danmark.
  10. Pvf har olika karakteristiska värden beroende av dimensioneringssituationen enligt tabell 3.1. Vid dimensionering av tratten används de grönt markerade värdena för att ta fram Pvf, Pvft (ekv.6.2) och Pv (ekv. 6.7).
  11. Trattens karakteristiska tryckförhållande F ska ersätta horisontallastförhållandet K i tabell 3.1 enligt nedan. Antagligen förutsätts en låg friktionsvinkel vid bestämning av påfyllningslaster utan att ϕ i används explicit.
  12. Se 2.
  13. Vid en brant tratt utnyttjas väggfriktionen fullt ut, vilket påpekas i tabellnot 1. Om en tratt betraktas som brant enligt Figur 6.1 kan man utgå ifrån att ϕwhϕi och ekvation 6.23 tillämpas. Annars betraktas tratten som flack.

14- 16
Väggfriktionskoefficienten kan bestämmas med den förenklade metoden i 4.2.3 med
ingångsvärde för relevant material från Tabell E.1. Detta gäller för mantel (μ) och tratt (μh) med antagande om respektive väggyta.

 

SS-EN 1991-1-1 Användning av α-faktorer vid nedräkning av last till grundsula eller pålar

Fråga publicerad 2020-12-11.

Fråga: Enligt 6.2.2 (2) får man reducera nyttig last med αn för pelare och väggar.

  1. Får man även använda reduktion för lasten ner till grundsulan under pelaren/väggen?

Om svaret är ja på fråga 1 gäller det då även:

    2. om man använder αa (reduktion för area)?

    3. lasterna till pålar?

Svar:

    1.  Ja, eftersom pelaren eller väggen kommer att dimensioneras för den lasten är det också den lasten som grundsulan dimensioneras för. Konsekvensen av ett brott blir det samma oavsett vilken konstruktionsdel som går till brott.

    2. Ja, reduktionen vad gäller belastad area (αa) får användas.

    3. Ja, lasten får reduceras med α-faktorerna vid beräkning av last på pålar

 

SS-EN 1991-1-1 Lastkombinering vid last av olika kategorier på olika bjälklag

Fråga publicerad 2020-12-11.

Fråga: I 3.3.3 (2)P "För dimensioneringssituationer där nyttig last verkar samtidigt med andra laster (t ex laster orsakade av vind, snö, kranar eller maskiner), ska den totala nyttiga lasten i ett lastfall betraktas som en enda last."

Ska detta tolkas som om att det finns flera kategorier av nyttig last så ska samtliga utgöra huvudlast vid lastkombineringen, dvs 1,5 på samtliga kategorier av nyttig last vid dimensionering av en pelare i bottenvåning i ett hus med olika lastkategorier? Med andra ord så ska man inte välja nyttig last från kat A som huvudlast och nyttig last från kat B som samverkande last?

Svar: Det är som det beskrivs i sista meningen. Om vi tänker oss en pelare på nedre våningen av en byggnad där pelaren bär upp fyra våningar, för två av våningarna klassificeras den nyttiga lasten som A och på de övriga två som B. Den nyttiga lasten är i detta fall summan av nyttig last på de fyra våningarna, summan skall betraktas som en karakteristisk variabel last och användas vid dimensioneringen av pelaren.

 

SS-EN 1991-1-7 Horisontala förband i takbalkar

Fråga publicerad 2020-12-08.

Fråga: Där det enligt konsekvensklass 2a och högre ska anordnas horisontala förband, så gäller väl detta även takbalkar? Det tolkas inte alltid på det sättet. Enligt Torstens Höglunds bok "skivverkan" ska infästningarna i takplåten dimensioneras för horisontalt dragband.

Svar: Tack vare denna fråga upptäcktes att det finns en viss diskrepans mellan den svenska översättningen av punkt A.5.1 (1) för rambärverk, i SS-EN1991-1-7 och den engelska versionen.

I den första meningen i den engelska versionen står det:

"Horizontal ties should be provided around the perimeter of each floor and roof level and internally in two right angle directions to tie column and wall elements securely to the structure of the building."

I den svenska versionen står det:

"Horisontala förband bör anordnas runt byggnadens omkrets i varje våningsplan och inom planet i två vinkelräta riktningar för att förbinda pelare och väggar med resten av bärverket".

Någon motsvarighet till "and roof level" finns alltså inte i den svenska versionen.

I A.5.2 (1) som gäller för byggnader med bärande väggar att nämns inte taknivån, men det står att "Tillräcklig robusthet bör anordnas genom utformning av en nätverkstruktur (cellstruktur) i syfta att främja interaktion mellan alla bärverksdelar, inklusive tillräcklig förankring av bjälklagen till väggarna." Utrymmena i byggnaden ska alltså omgärdas av en "cell", dvs. såväl mellanbjälklag som takbjälklag ska sammanbindas med väggarna.

Hur takbalkar ska behandlas beror på vilken typ av takbalkar som avses. Takbalkar som bara bär ett yttertak, till exempel ett uppstolpat tak på ett betongbjälklag, behöver knappast ha förband för att klara olyckslast. Men i konstruktioner där takbalkarna bär nyttig last eller är nödvändiga för byggnadens stabilitet bör de förankras med förband. Detsamma gäller då även takplåt, dvs. utnyttjas takplåten för att stabilisera en stomme så bör den bindas samman med stommen med förband. Infästningar av takplåt som inte utnyttjas för stabilisering eller för att ta nyttig last behöver bara dimensioneras för att klara starka vindlaster enligt EN 1991-1-4.

 

 

SS-EN 1991-1-7 Längd på horisontala förband

Fråga publicerad 2020-12-08.

Fråga: I EKS11 står att förbandets längd (horisontala förband) ska väljas till minst 3,6 m om man har bärande betongväggar. Får denna längd alltid sättas till 3,6 m eller gäller fortfarande 2,25H och 3,6 m som minsta värde? Om man har en väggsektion med en höjd på till exempel 3 m, måste man då sätta L till 3 x 2,25 = 6,75 m eller får man gå ner och sätta L till 3,6 m?

Svar: Tyvärr är den svenska översättningen av definitionen på L i A.5.1 (3) felaktig. "L is the span of the tie" står det i den engelska versionen vilket inte är riktigt detsamma som förbandets längd som det står i den svenska. Spannlängden (L) innebär avståndet mellan upplagen (på pelare eller väggsektioner) som förbandet spänner över. Och längden på den sammanbindande armeringen måste ju då vara minst spannlängden + erforderlig förankringslängd.

I EKS 11 anges alternativa förfaranden för att bestämma det T som anges i EN 1991-1-7. Övriga regler som ges för förbindare i EN 1991-1-7, förutom bestämning av T, gäller även då beräkning av T görs enligt EKS. I EKS anges att det är avståndet mellan förbindare (s) som ska sättas till 3,6 m, inte förbindarens spannlängd (L). Samma värden på T får tillämpas för byggnader med bärande väggar som för rambärverk när man gör enligt EKS.

I EKS anges att den nominella längden på en bärande vägg som ska antas vara borta bör sättas till minst 3,6 m när man kontrollerar stabilitet efter lokalt brott. I EN 1991-1-7 A.7 (1) anges att längden på en sådan borttagen väggsektion ska antas vara högst 2,25H. Båda kriterierna ska uppfyllas, dvs. längden på borttagen väggsektions bör vara minst 3,6 meter och högst 2,25H.

Tyvärr är den svenska översättningen i A.7 (1) första strecksatsen också något förvillande. I den engelska versionen står det lite tydligare:

"The nominal length of load-bearing wall construction referred to in A.4(1) C should be taken as follows:
- for a reinforced concrete wall, a length not exceeding 2,25H."

I den svenska standarden har strecksatsen översatst till "för en vägg med längden högst 2,25H."

Det är alltså inte L som ska uppfylla de båda kriterierna utan det är längden på en borttagen väggsektion som bör sättas till minst 3,6 m och högst 2,25H. Med en vägghöjd på 3 m kan man alltså välja valfri borttagen vägglängd när man kontrollerar stabiliteten efter lokalt brott till mellan 3,6 m och 6,75 m.

______________________________________________________

 

SS-EN 1991-1-4 Beräkning av zoner på tak

Fråga publicerad 2020-11-26.

Fråga: När man beräknar zonernas storlek/utbredning på taket erhålls en bredd och en längd. Det framgår inte i standarden om dessa mått är i relation på den projicerade ytan på marken eller den faktiska längden som den hade mätts på taket. Om taket är helt platt skulle de markprojicerade måtten vara lika stora som de på marken men hur blir det när taket har en lutning på till exempel 25 grader? Detta blir relevant i praktiken då man till exempel ska mäta upp zoner på ett tak.

Svar: För att bestämma zonernas storlek används initialt takets planmått. Eftersom vindlasten är en vinkelrät last mot taket måste man i det fall taket har en lutning ta hänsyn till denna lutning för att bestämma kraften. Den belastade ytan är i ett sådant fall större än den i planet projicerade ytan.

 

SS-EN 1991-1-3 Höjdskillnad mellan tak

Fråga publicerad 2020-11-26.

Fråga: Två sadeltak med låg lutning ligger parallellt med 1,5m mellanrum och på olika nivåer. Det lägre taket är inte utsatt för snöras från det högre taket men däremot drift av vind. Enligt ekvation 5.8 skall man räkna med en höjdskillnad. Ska man räkna höjdskillnaden från takfoten på
det låga taket till takfoten på det högre taket eller ska man räkna från nocken på det låga till takfoten på det höga? Det låga taket ger ju till stor
del lä fört den högre byggnadens vägg.

Svar:  Det rimligaste alternativet bör vara att räkna med höjden från takfoten på det låga taket till takfoten på det högre taket. Så som uttrycket 5.8 i SS-EN 1991-1-3 är utformat, innebär detta dock en ganska liten skillnad i formfaktor. Detta beror på att formfaktorn relateras omvänt till höjdskillnaden gånger 2. Skillnaden blir längden på snöfickan, vilken i detta fall kan interpoleras för att ta hänsyn till det lägre takets lutning.

 

SS-EN 1991-2 Index 1k och lk

Fråga publicerad 2020-07-01.

Fråga: Jag skriver examensarbete om broar med integrerade landfästen och behöver då använda er standard SS-EN-1991-2 och då stycke 4.4.1. Här råder viss förvirring kring vilka tecken som använts då l och 1 i teckensnitt med seriffer blir samma tecken.

Ska dessa nedsänkta tecken tolkas som ettor eller "lilla l"?

 

Sedan blir det dessutom lite matematiskt tveksamt att beräkna Qlk om man samtidigt anger Qlk som 300 - eller tolkar jag standarden rätt?

Svar: Det är mycket riktigt en del förvirring runt index 1k och lk i SS-EN 1991–2 på grund av dålig typografi. För vertikala trafiklaster används 1k där 1 står för LM1. För horisontella laster trasslar det till sig. Där står l för longitudinal/längdled och t för transversal/tvärled.

I den övre formeln ovan är det alltså lk till vänster om likhetstecknet och 1k till höger om likhetstecknet.

I Times New Roman blir det ingen synlig skillnad på tecknen. Tittar man mycket noga kan man se att mellanrummet mellan 1 och k är lite större än mellan l och k. Det syns i formeln ovan. Den skillnaden avslöjar också att man skrivit fel i anmärkningen till 4.4.1(5) i den engelska utgåvan.

SS-EN 1991-3 Kombinationsfaktorer och kranlast

Fråga publicerad 2020-06-25.

Fråga: I kapitel A.2.3 (1) anges kombinationsfaktorer för enstaka kranlaster eller grupper av laster av kranar. I EKS 11 i tabell C-13 anges bara val för kombinationsfaktorer för kranar som arbetar oberoende av varandra. Ska det tolkas så att EKS 11 kombinationsfaktorer även gäller för enstaka kranlaster eller är det bara vid kombination av fler kranar?

Svar: Faktorerna i Tabell C-13 används för att kombinera kranlaster med andra variabla laster enligt SS-EN 1990. Dessa laster kan vara kranlaster från oberoende kranar eller andra laster så som vind eller nyttig last.

Vid dimensionering beaktas olika situationer där kranlaster kan vara antingen huvudlast eller samverkande last. Här visas exempel i brottgränstillstånd (ULS) med en kran   och vind:

  Kran som huvudlast:                         1,35 x kran + 1,5 x 0,3 x vind

  Vind som huvudlast:                         1,5 x vind + 1,35 x 0,8 x Kran

två oberoende kranar och vind:

  Kran 1 som huvudlast:                      1,35 x (kran 1 + 0,8 kran 2) + 1,5 x 0,3 x vind

  Kran 2 som huvudlast:                      1,35 x (kran 2 + 0,8 kran 1) + 1,5 x 0,3 x vind

  Vind som huvudlast:                          1,5 x vind + 1,35 x 0,8 x (kran 1 + kran 2)

När två kranar används för att lyfta samma last beaktas dem som en enda variabel last.

 

SS-EN 1991-1-7 Avsnitt 4.7(1) och landningsplatta för helikopter

Fråga publicerad 2020-06-22.

Fråga: I 4.1(4)P står det att stöt från häftiga helikopterlandningar ska beaktas. I 4.7(1) står det att för byggnader med tak avsedda för helikopterlandning bör hänsyn tas till belastningar orsakade av häftiga landningar eller nödlandningar, Fd bör bestämmas enligt (4.3). Vad baseras paragraf 4.7(1) på? Det finns några olika standarder som har med landningsplattor för helikoptrar att göra, där säkerhetszonens storlek ofta påverkas av hur ofta landningsplattan ska användas samt om plattan är godkänd för instrumentlandning eller inte. Kan 4.7(1) kopplas till någon av dem? Det verkar konstigt om samma (bör-) krav ställs på alla landningsplattor oavsett hur ofta och under vilka förhållanden de avses användas, hur ska man se på det?

Svar: Det finns bara dokumentation till bakgrunden för vissa delar av SS-EN 1991-1-7, inget om just denna fråga så jag kan tyvärr inte ge någon upplysning om bakgrunden. Det angivna avsnittet är ju råd, inte princip, så det finns ju vissa möjligheter, om byggherren godtar detta, att göra avsteg från det som anges. Man måste då väl kunna motivera en ändring, till exempel genom hänvisning till alternativa etablerade beräkningssätt som är anpassade till förutsättningarna i det aktuella fallet.

 

SS-EN 1991-1-3 Fördelning av snölast och kupoltak

Fråga publicerad 2020-06-22.

Fråga: Hur ska snölastens fördelning antas se ut för ett kupoltak, i det osymmetriska lastfallet. Lastfördelning för bågtak enligt figur 5.6 är det som ligger närmast till hands, men den gäller ju för avlånga tak. När vi tidigare projekterade i slutet på 80-talet utgick vi ifrån en formel enligt nedan som fanns i dåtidens Cisternnormer. Qsnö = (1,5/4) x Sk x (3-cos FI) x x/r Där FI är en vinkel som varierar mellan 0-180 grader i två motstående halvcirklar, i den cirkeln som motsvarar den projicerade takytan. x är avstånd från cirkelcentrum till aktuell punkt på ytan och r är cirkelradien.

Sk är karakteristiska värdet på snölast. Gäller den formeln fortfarande eller finns det en annan formel som bättre överensstämmer med SS-EN 1991-1-3?

Svar: Då Eurokoden inte anger något om snöfördelning på denna typ av konstruktion är det möjligt för konstruktören att söka vägledning i andra standarder eller riktlinjer som kan vara relevanta för det aktuella fallet. Vilka de är och varför de anses relevanta bör då anges i beräkningarna. Man kan också göra en egen bedömning baserad på det som står i Eurokoden, men vara tydlig med att det är en egen bedömning.

Ett exempel på den sista varianten är att det kan vara rimligt att utnyttja Figur 5.6 åt två håll för att få fram lastvärdet. Dvs. kombinera ekvationen för snödrift för bågtak två gånger för att kunna få fram ett lastvärde. Det innebär att den kvarliggande snön vid snödrift bör kunna ses som en spetsig kon på vardera sidan av taket i vindriktningen

SS-EN 1991-1-1 Reduktion av nyttig last med αn och αA

Fråga publicerad 2020-06-22.

Fråga: Min fråga rör reduktioner av nyttig last med αn och αA för lastkombination 6.10b. Enligt Stycke 6.3.1.2 (10) i EKS 11 kan jag kombinera αn och αA när lasteffekten bedöms enligt Ekv 6.10b. Vidare så står det i 1991-1-1 3.3.2 (2)P att jag endast får lov att använda xsi eller αn när den nyttiga lasten betraktas som samverkande last. Som jag tolkar texten så är det ok att reducera nyttig last enligt αn x αA x 1.5 x qnyttig för samverkande variabel last, men även när nyttig last är variabel huvudlast? Mina värden ger då αn x αA x 1.5=0.73 x 0.51 x 1.5 = 0.56. Detta känns som en ganska stor reduktion men är alltså ok? Om man ställer det i relation till ψ0 = 0.7 så innebär det en ganska dramatisk skillnad även när nyttig last agerar samverkande variabel last. Tacksam för klargörande kring detta! Jag har tillsammans med många andra tidigare varit restriktiv i användningen av dessa reduktionsfaktorer eftersom jag tycker att normen är otydlig, men skulle vilja tillämpa dem.

Svar: Reduktionsfaktorerna i exemplet förefaller väl små. De skulle innebära att en bärverksdel bär upp 1000 m2 per våningsplan i 20 våningar. Så möjligen har ni missuppfattat tillämpningen av reduktionsfaktorn för area. Den area, A, som avses vid reduktion av arean är arean per våningsplan och inte total area i alla våningsplan som belastar en konstruktionsdel i ett lägre liggande plan.

Om i ert fall en pelare i ett våningsplan bär upp 50 m2 får den nyttiga lasten i det våningsplanet reduceras med hänsyn till belastad area enligt ekvation (6.1) i SS-EN 1991-1-1. Om det sedan finns 20 sådana våningsplan blir reduktionen totalt på pelaren 0,70 ⋅ 0,73 ⋅ 1,5 = 0,77.

För samverkande nyttig last blir reduktionen 0,73 ⋅ 1,5 ⋅ (ψ0 = 0,7), det vill säga i detta fall lika stor. För en byggnad med 20 våningar bör dock 6.10a bli dimensionerande i den lägre våningsplanen, eftersom permanenta laster kommer att utgöra 90 % eller mer av lasten på en enskild bärverksdel i exempelvis bottenvåningen.

Det är hur som helst mycket osannolikt att den nyttiga lasten i samtliga våningsplan ska uppgå till i genomsnitt 1,54 kN/m2 för bostäder. Enligt äldre regler (BKR) var den nyttiga lasten för en 20 våningar hög byggnad i genomsnitt 0,62 kN/m2. Det olyckliga i dagens eurokod är att nyttig last består av en enda variabel del. Den borde innehålla en bunden del (möbler och inventarier) och en variabel del (personer).

SS-EN 1991-1-3 Snölast och avstånd mellan byggnader

Fråga publicerad 2020-06-22.

Fråga: Vi funderar över hur stort avstånd det behöver vara mellan intilliggande byggnader för att man inte ska behöva beakta extra snölast med hänsyn till snödrift på det lägre taket i normala förhållanden. Vi ser att det finns en tidigare fråga & svar i ämnet här i tolkningsforumet, men vi har svårt att helt tyda vad som gäller. Bör lastfigurerna i figur 5.7 alltid användas även då det är mellanrum mellan byggnaderna, och upp till en snöficka på maximalt 15 m? I den tidigare BSV 97 Boverkets handbok om snö- och vindlast finns en bild som beskriver detta fallet tydligare.

Svar: Ja lastfigurerna i 5.7 bör alltid användas, då de i princip inte tar hänsyn till hur nära byggnaderna står varandra. Och det innebär mycket riktigt att en snöficka på maximalt 15 m används.

 

SS-EN 1991 Påkörningslast i parkeringsgarage

Fråga publicerad 2020-06-22.

Fråga:Önskar ett förtydligande gällande vilken horisontell last som skall användas vid dimensionering för påkörningslast i parkeringshus (t.ex. en vägg vinkelrätt mot parkeringsytaeller ovan/nedan ramp). Enligt SS-EN 1991-1 1.1(6) beräknas denna enligt Bilaga B. Här särskiljs även om det gäller vid ramp eller ej. Samtidigt finns ett kapitel i SS-EN 1991-1-7 4.3.1 som ger andra direktiv och betydligt lägre värden - denna hänvisar man även fr.om. EKS 11 till. Denna skrivelse gör däremot ingen skillnad på om påkörning sker vid ramper eller ej. Är det korrekt att använda SS-EN 1991-1-7? När är i så fall Bilaga B tillämplig? Eller är det så att lasterna från -7 skall användas tillsammans med Bilaga B? En definition av "barriär" vore även bra.

Svar: För påkörning används SS-EN 1991-1-7. Påkörning får också ses som en olyckslast och bärverksdelar dimensioneras för de särskilda regler som gäller för denna dimensioneringssituation.

Bilaga B i SS-EN 1991-1-1 är endast informativ. Möjligen kan man läsa föreskriften i 12 § i kapitel 1.1.1 i EKS som att bilaga B ska tillämpas för påkörning på barriärer, men föreskriften avser att rekommenderade, det vill säga understrukna värden, i tabell 6.12 i SS-EN 1991-1-1 ska tillämpas på balkongfronter, räcken och barriärer för olika kategorier av användningsområden.

 

SS-EN 1991-1-4 Formfaktorer

Fråga: I bland andra nämns i tabell 7.5 Formfaktorer för vindlast på valmade tak ANM 1 att "...bör två fall beaktas: ett fall med alla värden positiva och ett fall med alla värden negativa. Blandning mellan positiva och negativa värden är inte tillåten". Gäller detta för de zoner där både positiva och negativa värden har angetts eller gäller det även att man ska göra ett fall där alla zoners värden görs positiva/negativa? Alltså att man även behandlar t.ex. zon I:s värden som positiva så att som stycket lyder "alla värden" blir positiva/negativa. Eller att man endast gör det inom de zoner där både positiva och negativa värden är angivna och låter de zoner som endast har ett värde angivet kvarstå enligt det angivna värdet?

Svar:

  1. Figure 7.9 is the key figure showing the loaded region on hipped roofs. The data in table 7.5 are for conventional
    hipped roofs (valmade tak) on rectangular plan buildings.
  2. Calculation of wind pressure should be based on two types of variation in the wind loads. One is based on the negative pressure on all the walls. Second alternative is based on the positive wind pressure on the front side and negative pressure on the back side of the building. This is because separation of wind flow on the front of the building can vary between positive and negative pressure.

  3. Appendix A presents an example for the application of Table 5 and Figure 7.9.

 

 

 

 

 

 

 

 

SS-EN 1991-1-4 Figur 7.33 Formfaktorn för kraft, Cf,0, och fackverk

Fråga publicerad 2019-10-11.

Fråga: Angående 7.11 fackverk och byggnadsställningar och figur 7.33, hur kan det komma sig att formfaktorn är densamma för ett fackverk med 0 och 1 i fyllnadsgrad? Om jag har ett fackverk som i princip är helt tomt på element, så blir det i figur 7.33 jämförbart med ett fackverk som är helt full med element. Det känns lite orimligt.

Svar: Figure 7.33 defines force coefficients Cf0 for lattice structures with different solidity ratios. In order to explain the background to figure 7.33, three different cases are shown below in appendix A.

För fall 1 är den area som kraften ska anbringas på bara nettoarean av elementen och för fall 2 och 3 är det bruttoarean (d*längden).

 

 

SS-EN 1991-4 Bilaga A och lastkombinationer

Fråga publicerad 2019-08-26.

Fråga: I SS-EN 1991-4 bilaga A finns en tabell (A.2) med lastkombinationer. I den saknar jag ett lastfall som är sannolikt och som ofta blir dimensionerande. Det ät vind som huvudlast (utan reduktion), kombinerat med inre undertryck och snölast. (I både lastfall WF och WE reduceras vindlasten med faktor 0.6) Jag saknar även ett lastfall med snölasten oreducerad.

Svar: Tabell A.2 anger kombinationsfaktorer som används i lastkombinationer enligt SS-EN 1990. I brottgränstillstånd används två kombinationer: Ekvation 6.10a med oreducerad permanent last och reducerad huvudlast och Ekvation. 6.10b med reducerad permanent last och oreducerad huvudlast.

I lastfall WF och WE är vind huvudlasten vilket ger följande kombinationer:

  • WF/WE, 6.10a: 1,35·egenvikt + 1,5·ψ0·Vind + 1,5· ψ0·Övriga laster
  • WF/WE, 6.10b: 1,2·egenvikt + 1,5·Vind + 1,5· ψ0·Övriga laster

Samma sak gäller snölasten i lastfall S. Yttre och inre tryck bör betraktas som en och samma last (samma kombinationsfaktor). Enligt tabellerna behöver snö- och vindlast inte kombineras.

Notera att kombinationsfaktorer för snö- och vindlast modifieras av den nationella bilagan, se Kapitel 1.4 och Tabell B-1 i EKS 11.

 

SS-EN 1991-2 Dynamisk last på plattrambro

Fråga publicerad 2019-08-26.

Fråga: Ska plattgrundlagda plattrambroar alltid kontrolleras dynamiskt? I tidigare publicerade frågor med svar anges att plattrambroar påverkas av omgivande mark på ett sådant sätt att det inte kan anses försvarbart att använda flödesshcemat i fig 6.9. Är det så då att alla plattgrundlagda plattrambroar (öppna och slutna) skall kontrolleras med en dynamisk analys?

Svar: SS-EN 1990, kap 2.1 reglerar de grundläggande kraven ett bärverk skall vara dimensionerat för. Kap 5.1.3 ger vägledning för hur dynamiska laster kan hanteras, tex bärverksmodeller och randvillkor. I de fall man kan påvisa att dynamiska laster kan hanteras som kvasistatiska finns inga hinder att göra så.

 

SS-EN 1991-2 Snedvinklig plattrambro

Fråga publicerad 2019-08-26.

Fråga: Snedvinklig plattrambro och dynamiskt analysfall; en snedvinklig plattrambro (korsningsvinkel järnväg 80 gon) med spännvidd 5,0 m. Får flödesschema enligt Figur 6.9 användas för en öppen snedvinklig plattrambro? Skall alla sneda broar dynamiskt analyseras för att bestämma huruvida snedheten har en försumbar inverkan, se 6.4.4 (1) ANM 1, eller får man använda det förenklade flödesschemat enligt Figur 6.1? Om inte, vilken typ av kontroll skall göras för att bedöma snedhetens inverkan?

Svar: Figur 6.9 kan alltid tillämpas. 6.10 åberopas endast från ANM. 6 och ANM. 7 och gäller därmed bara när man i Figur 6.9 hamnar i en på en plats där det står (6) eller (7). SIS helpdesk för eurokoder kan inte svara på de två sista frågorna i stycket eftersom Eurokodhelpdesk då tar över konstruktörens ansvar. Uttrycket "med försumbar inverkan av" brukar dock betyda att en person med rätt kompetens enkelt kan avgöra om inverkan är försumbar eller inte. Om det inte går så gör man en analys och resultatet av den kan vara avgörande för om det är enkelt att avgöra nästa gång man ställs inför samma problem.

 

SS-EN 1991-1-1 Pelarstansning i parkeringshus

Fråga publicerad 2019-08-26.

Fråga: Frågan avser belastning i ett parkeringshus för kontroll av stansning i ett befintligt P-hus som ska beläggas med ex-vis en gjutasfalt. Enligt tabell 6.8 och belastning för fordonstrafik SKALL det rekommenderade värdet 2,5 kN/m2 användas för kategori F. I ett P-hus är ofta pelare placerade med c/c 7 – 8 m i körytan mellan parkeringsplatserna. Är det rimligt att fylla hela denna yta med en last på 2,5 kN/m2? Ett rimligt lastfall för kontroll av stansning runt pelare tänker jag borde vara att belasta parkeringsplatserna fullt med 2,5kN/m2 och sedan ha 2 st bilar på 30 kN/st körande längs körytan, nära pelaren.

Svar: Enligt EKS ska de rekommenderade värdena på qk och Qk användas, alltså qk = 2,5 kN/m2. I detta sammanhang anges inte heller några begränsningar när det gäller lastens utbredning. Enligt reglerna för stansning är de framtagna för jämnt utbredd last, se SS-EN 1992-1-1, avsnitt 6.4.1.5, alltså i detta fall qk.

Att baserat på en planerad indelning i parkeringsplatser använda en annan last och lastfördelning än det som reglerna förutsätter avråds starkt ifrån. Man vet ju heller inte om indelningen i parkeringsplatser kommer att stå sig under hela parkeringshusets livslängd.

Eurokodens lastmodeller är förenklingar av verkliga förhållanden, men det finns inget som säger att en egen modell skulle bättre ta hänsyn till de osäkerheter som en modell ska täcka in. Om faktiska förhållanden väsentligt avviker från en modell i eurokoden kan det kanske finnas skäl att tillåta en annan modell. Det är dock i slutänden kommunen som i så fall förkastar eller accepterar modellen.

Sedan bör naturligtvis konstruktör informera byggherren om denne vill använda andra laster än de i regelverket föreskrivna.

 

SS-EN 1991-1-4:2005 - Vindens hastighetsförändringar

Fråga publicerad 2019-03-21.

Fråga:I Bilaga A.3 ges en metod för att beakta vindens hastighetsförändringar pga (lokala) slänter och krön genom faktorn C0(z). Hur skall man tolka "z" i fig A.2? Tycker z=0 borde betyda byggnadsplats PÅ krönet, vilket också ger max ökning av medelvindhastigheten. Texten i A.3 (3) d) anger dock att "z" skall vara vertikala avståndet från släntfot till byggnadsplats, vilket ger lägre hastighetsökningar ju högre upp i slänten man placerar sin byggnadsplats, jmf ekv (A.4) - (A.6). Är textdefinitionen av "z" fel?

Svar: 1. The orography factors C0 (z) and S(z) are defined as:

Vmf (z) = Cr (z) x Vb

Vm (z) = Cr (z) x Vb x C0 (z)

C0 (z) = Vm(z) / Vmf (z)      C0 (z) = 1 + 0,6 x S (z) for [ Ф > 0,3 ]

Where Ф = H/Lu , H = height of the hill and Lu = length of the slope

Vmf (z) is the mean velocity profile for different surface roughness. Vm (z) is the mean velocity profile for hills and escarpments surface roughness.

S(z) is a factor that governs the level of change in the velocity depending on the slope of the hills. X is the horizontal distance of the site from the crest. Lu is the length of the upwind shape in wind direction.

2. Attached appendix A shows the application of section A3 of the Eurocode.

3. If you need further information, consult expert in generation of velocity profiles for hills and ridges.

 

 

SS-EN 1991-7 – Avstånd till väg och påkörningslast

Fråga publicerad 2019-03-11.

Fråga: När ligger en byggnad så långt ifrån en väg att man inte behöver dimensionera den för påkörningslast? Är det korrekt att enligt tabell C.2 i bilaga tolka den tabellen som att när d i ekvation C.7 är större än db i tabellen (20 meter för motorväg) så anser man att vi inte längre har någon påkörningslast? Eller ska man räkna ut kraften som gäller mer än 20 meter från en motorväg på något sätt? Enligt vilken ekvation i så fall?

Svar: Det matematiken i bilaga C försöker säga är att db är mindre än d når bilen inte fram till pelaren. Då behöver man inte räkna påkörningslast. Det finns en doktorsavhandling av Ivar Björnsson, Lunds Tekniska Högskola, som bland annat studerar den här beräkningsmodellen.

 

 

SS EN 1991-1-4 – Fördelninga hastighetstrycket med strimlor

Fråga publicerad 2019-03-11.

Fråga: Enligt figur 7.4 bör hastighetstrycket fördelas med strimlor beroende på förhållandet h/b,dvs. höjdnivå lägre än bredden blir en strimla. På motsvarande sätt blir det en strimla i toppen om byggnaden är högre än 2xb. Är det tillåtet att dela upp fördelningen i flera strimlor istället även om höjden är mindre än bredden? Vill
minnas att det var så i föregående norm.

Svar:

1. According to BFS 2015:6 (EKS 10) section 7.2.2. (1) and figure (7.4 ) is replaced by figure (C5) and

Table (C10a) in the EKS (10).

2. It is recommended to use model given in (EKS 10) document as it is based on actual wind velocity profile. Eurocode uses a simplified model, but it results in higher values. Appendix A shows an example based on the Eurocode and (EKS 10)

3. If you need further information, contact an expert in this field.

 

 

SS-EN 1991-1-7- Förankring med vertikala dragband

Fråga publicerad 2019-03-11.

Fråga: Vad menas det med att en bottenplatta skall förankras till pelare och väggar med vertikala dragband?

Svar: Om byggnaden tillhör konsekvensklass 2b och olycksfallssäkring med dragband används, d.v.s. om rekommenderad strategi c, första strecksatsen enligt A.4 i SS-EN 1991-1-7 tillämpas, så ska de vertikala dragbanden gå från bottenplattan/grunden till takbjälklaget i samtliga pelare och bärande väggar.

I fallet med plattgrundläggning innebär det att pelare och väggar förbinds med bottenplattan om det ställs krav på vertikala förbindningar.

 

SS-EN 1991-1-4 - Fristående väggar

Fråga publicerad 2019-03-11.

Fråga: Vid beräkning av formfaktor för rätlinjig vägg i tabell 7.9 kan man välja mellan l/h<=3, l/h=5 och l/h>=10. Men vad händer för intervallen 3<l/h<5 och 5<l/h<10? Längst ner i tabellen står det att man kan interpolera för längd på mötande vägg för vinklade väggar men ingenting i hela kapitlen om de rätlinjiga väggarna.


Svar: (1)According to the table 7.9, the pressure coefficients are governed by the ratio of length and height (l/h).The pressure coefficients can be interpolated for (l/h) between 3 and 5 and (l/h)between 5 and 10. For ratio (l/h) < 3, the values given in table 7.19 for zones A,B,C and D will be used. Similarly, for (l/h) > 10, values in the table will be used.

For corner length greater than h, the values in the table will be used. For corner length less than h, values in the table for walls with and without corners can be interpolated.

It is recommended that advice should be obtained from experts in this field. Eurocode SS-EN 1991-1-4 does not provide detailed information on the calculations of net pressures on walls.

(2) Pressure coefficients for walls with and without corners are given BSV 97 in figure (A 2.2 a). The values are on the safe side and easy to use in calculating wind loads on walls.

 

SS-EN 1991-1-2 - Beräkning av flamlängden

Fråga publcerad 2019-03-07.

Fråga: I bilaga B avsnitt B.4 finns två ekvationer för beräkning av flamlängden längs centrumlinjen. Den ena, B.12, ska användas om det finns en vägg ovanför fönstret eller om heq=<1,25 × wt. Den andra, B.13, ska användas om det inte finns någon vägg ovanför fönstret eller om heq>1,25 × wt. Men vad händer om det inte finns en vägg och heq>1,25 × wt eller vice versa? Då uppfylls argumenten för båda ekvationerna. Är det meningen att största flamlängden tas då eller hur är det tänkt? Det framgår inte vad jag kan se. Ett förtydligande hade uppskattats.

Svar: Tyvärr känner jag inte till bakgrunden till aktuella formler. Att som frågeställaren föreslår använda det värde som ger den största flamlängden kan ses som en god regel som inte bör kunna ifrågasättas.

 

SS-EN 1991-4 - Driftslaster från vätskor i behållare

Fråga publicerad 2019-03-07.

Fråga: Jag har märkt att man i EKS valt att använda partialfaktorn 1,4 på driftslaster från vätskor i behållare. I bilaga B till SS-EN 1991-4 kap B.3, står det att partialfaktorn 1,2 ska användas. Varför har vi valt att skruva upp denna till 1,2? Om man har driftslaster som är nära den maximala teoretiska vätskenivån i behållaren så kan det bli väldigt dyrt för t.ex. pålningen till en cistern.

Svar: Boverket rekommenderar en större partialkoefficient eftersom vi använder säkerhetsklasser i Sverige.

I säkerhetsklass 1 blir lastkombinationen osäker med en partialkoefficient på 1,2. Med ett värde på 1,4 blir säkerhetsnivån tillfredställande i säkerhetsklass 1 och i säkerhetsklass 3 är den jämförbar med den enligt tidigare standard.

 

SS-EN 1991-1-1 - Fritt fallande laster

Fråga publicerad 2019-03-07.

Fråga: Hur ska eurokoden tillämpas för fritt fallande laster? Har ett dimensioneringsfall i gruvindustrin där vi har en fallande last med massan (m) som tippas från en viss höjd (h) ner på ett bjälklag (detta är inte en olyckslast). Frågan är hur vi ska påvisa att bjälklaget har en kapacitet som klarar denna fallande last enligt reglerna? Frågan är också om man kan ange denna last som statiskt ekvivalent/kvasistatisk eller om detta måste ses som en dynamisk/impulslast? Är principen vara densamma som för påkörningslaster enligt SS-EN 1991-1-7, kap 4.3, dvs att den kan ses som en statiskt ekvivalent kraft? Har försökt att teoretiskt bestämma lasten med hjälp av ekvationen för lägesenergi (E=m × v2/2) och ekvationen för arbete, W=F × s, där s är den elastiska nedböjningen från bjälklaget när lasten landar), men det ser ut att bli en orimligt hög last. Har försökt att hitta något lämpligt kapitel i Eurokoderna att applicera för denna typ av last utan resultat och önskar därför lite vägledning.

Den fallande lasten är i detta fall en form av pasta som blandas av den till ett mjöl nermalda gråstenen som blir kvar efter att man skiljt ur mineralen man bryter. Gråstenen blandas med vatten och cement till en pasta som sedan pumpas tillbaka in i berget för att fylla tomrummet efter brytningen. Den fallande lasten uppkommer i det så kallade pastaverket, dvs där denna pasta blandas, och anläggningen är en processanläggning där man kan kontrollera flödet på pastan när den faller från en nivå till en annan. Man känner till vikten på den pasta som släpps och den släpps i ett flöde under en given period i sekunder. Anledningen till att frågan uppkommit från kund är att de upplever att bjälklaget sviktar väldigt när pastan släpps mellan nivåerna och därför har vi kopplats in för att göra en dimensioneringskontroll och komma med eventuella åtgärder om så behövs.

Svar:Detta är ju egentligen ingen fråga om tillämpningen eurokoderna eftersom eurokoderna inte behandlar denna typ av laster eller denna typ av konstruktion. Det är också oklart om det bara är fråga om att bara verifiera att bärförmågan är tillräcklig eller om man önskar en bredare analys av effekterna av att lasten faller; t.ex. om nedböjningarna, svängningar, eventuell sprickbildning är acceptabla.

Under förutsättning att det bara är fråga om att verifiera bärförmågan så kan man få en viss fingervisning av hur liknande situationer behandlas i eurokoderna.

Eftersom det inte är fråga om en hård stöt utan en påfyllning under en viss tidsperiod bör denna dynamiska last kunna representeras av en ekvivalent statisk last. Grundvärdet för lasten bör vara lasten på det fyllda bjälklaget. Utan en mer ingående utredning borde man kunna använda samma värde på dynamikfaktorn som används i SS-EN 1991-1-6 kap 4.1.2; SS-EN 1991-1-7 kap C.2.1(3) och SS-EN 1991–2 kap 6.6.1.(5), d.v.s. faktorn 2. En kontroll av att detta inte ger orimligt låga värden, kan vara att beräkna kraften av att en mindre mängd av materialet faller den aktuella höjden på ett i övrigt fyllt bjälklag.

Detta är ju ingen olyckslast utan lasten betraktas som en variabel last i brottgränstillstånd och bruksgränstillstånd. Ψ-faktorerna bör sättas till 1 som för bygglaster.

Det faktum att bjälklaget faktiskt har klarat de uppkomna lasterna kan ju också räknas in i utvärderingen.

Om man önskar en bredare analys (fler kriterier) eller en mer exakt dimensionering för bärförmågan bör frågeställaren vända sig till en konsult som har erfarenhet av att göra fullständiga dynamiska analyser. I en sådan analys blir ju även bl.a. bjälklagets styvhet en viktig parameter.

 

SS-EN 1991 – Allmänna frågor – α vid utmattning

Fråga: Vi har nu konstruerat vår första stålbro enligt eurokod och TK bro. Bron i fråga är en järnvägsbro i Göteborg bestående av fritt upplagda stålbrodelar och kontinuerliga betongbrodelar. Frågan gäller utmattningslast och lite förvirring med parenteser i olika delar och utgåvor av normen: I SS-EN 1991-2:2003 står som förklaring till formel D.6

Δσ71 är den spänningsvidd som uppkommer av lastmodell LM71 (och där så krävs SW/0 men utan α) när modellen placerats på mest ofördelaktiga sätt för den bärverksdel som betraktas.

Problemet är placeringen av parentesen. Korrekt svenska borde ge att för SW/0 ska inte α tas med men det ska den göra för LM 71.

I den engelska versionen av samma norm står det:

Δσ71 is the stress range due to the Load Model 71 (and where required SW/0) but excluding α) being placed in the most unfavourable position for the element under consideration.

Här finns alltså två parentesavslut vilket blir lite förvirrande. Vilken ska bort?

I SS-EN 1992-2: 2005 Bilaga NN3.1 har man, för utmattningsberäkning av armering förtydligat formeln och då tagit bort den sista av parentestecknen och fått följande del av mening:

....lastmodell LM71 (och där så krävs SW/0) men exklusive α enligt SS-EN 1991-2....

I Utmattningsdelen för stål SS-EN 1993-1-9:2005 hänvisar man bara till last enligt SS-EN 1991-2.

Detta ger att man ska ha med α när man dimensionerar stål, men inte när man dimensionerar betong. Med α = 1.33, som det är för de flesta broar, blir det väldigt höga utmattningsspänningar. Uttalandet från Trafikverket om att det inte borde bli några dimensionsökningar på grund av eurokodernas införande stämmer inte om detta gäller.

Vi har därför på aktuell bro antagit att α inte ska beaktas vid utmattningsberäkningar för ståldelen. Trafikverket har fastställt handlingarna.

Svar: Detta är uppenbart ett skrivfel. När det gäller utmattning och beräkning med lambda-metoden så ska varken LM71-lasten eller SW/0 multipliceras med α. Detta gäller både för en stålbro och för en betongbro. Alltså borde parentesen i SS-EN 1991-2 stå direkt efter SW/0, och inte efter α. Utmattning av SW/0 behöver enligt SS-EN 1991-2, 6.8.1(8)P bara kontrolleras vid kontinuerliga (balkbärverk) broar.

 

SS-EN 1991 – Flyttbara mellanväggar 

Fråga: Vi har en diskussion som gäller lasten p.g.a. vad som kallas ”flyttbara mellanväggar”, som skall hanteras som en variabel last. Alla överens om att t.ex. blockväggar i konferenssalar, skärmväggar och liknande i kontorslandskap ska hanteras som en variabel last. Men vanliga väggar av regelstomme och gips? De är visserligen flyttbara i någon mening, men det är ju även betongväggar som ej är bärande.

Frågan är om det lika gärna går att hantera mellanväggar som en egentyngd med en något lägre partialkoefficient (<1,5) i brottgrängstillstånd? Eurokoden säger (har jag blivit informerad om, men kan ej hitta informationen i eurokoden själv) att det visserligen ska vara 1,5 i brottgränstillstånd, men att man för bruksgränstillstånd ändå hanterar det som en egenvikt. Det känns tvetydigt.

Någonstans går väl gränsen för när det skall anses vara permanent last? Längre tid än fem år? Vi har gipsväggar som stått i säkert 20 år, och det borde rimligen vara mer åt det permanenta hållet än variabla. Båda sätten att hantera lasten innebär ju en parialkoefficient. Men det ska givetvis inte vara högre än nödvändigt och normalt sett (i tidigare svensk norm) har vi hanterat det som en egentyngd, och en generellt utbredd last som varit någorlunda väl tilltagen.

Vad inbegriper formuleringen ”flyttbara mellanväggar”? Om de ska hanteras som variabel last, får man areareducera och våningsreducera den då? Det kanske står något undantag om detta någonstans, men var i så fall?

Svar: Ordet ”flyttbar” i eurokod bör tolkas i bokstavlig mening, d.v.s en vägg som i princip kan flyttas som en möbel och det kan inte en gipsvägg. Det står ingenstans att last av flyttbara väggar får reduceras med hänsyn till belastad area eller antal belastade våningar och då är det – med vanlig tolkning av relger – inte tillåtet. Man får inte hantera en last som t.ex. egentyngd i brottgränstillståndet och som nyttig last i något annat gränstillstånd. Att vanliga gipsväggar eller andra mellanväggar inte ingår i den nyttiga lasten utan ska hanteras som en permanent last framgår av bl.a. 3.2(2) och 5.1(2) & (3) i SS-EN 1991-1-1.

 

SS-EN 1991 –Snöfickor

Fråga: SS-EN 1991-1-3. Information om hur man räknar snölast vid motstående snöfickor saknas i 1991-1-3. Hur ska detta behandlas?

Svar: Gissar att FF med motstående snöfickor avser fickor av den typ som visas i figurerna d (fall II och III), f och g under 1:4 i BSV. Använd sunda förnuftet och då illustrerar just dessa figurer hyfsat bra tänkbara lösningar.

 

SS-EN 1991 – Nyttig last

Fråga: Undrar om eurokodsnormer menar att nyttig last i en lastnedräkning kan anses som huvudlast på samtliga våningsplan, då man ser på t ex pelarlaster? Eller om eurokod liksom BKR bara anser att ett plan ska ses som huvudlast och samtliga resterande som bilaster (om man ser till att nyttig lasten är huvudlast)?

Svar: 
Avsnitt 3.3.1(2)P i SS-EN 1991-1-1 innehåller följande formulering:

“In design situations when imposed loads act simultaneously with other variable actions (e.g actions induced by wind, snow, cranes or machinery), the total imposed loads considered in the load case shall be considered as a single action.”

 

SS-EN 1991 – Snödrift vid vinkelbyggnader

Fråga: Hur ska man se på snödriften gällande vinkelbyggnader i eurokoden?

Svar: Det enda som står om vinkelbyggnader i SS-EN 1991-1-3, är bilaga B3, se figur B2, som enligt rubriken gäller för flernivåtak, vilket bör tolkas så att det nedre takets nock inte bör ligga högre än det övre takets takfot. Läs dock även vad som står i BFS 2010:28 EKS 7 Kapitel 1.1.3 – Tillämpning av SS-EN 1991-1-3.

Jag har även tillgång till dokumenten ISO 4355 Bases for design of structures – Determination of snow loads on roofs, samt de kanadensiska reglerna om snölast från 1995, NBC 95, som är blygsamt uppdaterade i NBC 05, men inte heller i dessa dokument finns det något om snölast på vinkelbyggnader.

En annan variant är t.ex. utgå från att vinkeln ligger i lä, vilket är ogynnsamt, och att varje lutande takhalva får den last som föreskrivs i SS-EN 1993-1-3 5.3.3 och superponera snölasterna i vinkeln, vilket inte är helt lätt.

 

SS-EN 1991 – Snölast på korta och låga tak

Fråga: När jag jämför rubricerad eurokod, kapitel 5.3.6, med Boverkets handbok om snö- och vindlast BSV97, kapitel 1:3 (sida 16), hittar jag ingen motsvarande reduktion av BSV:s μ'1 till μ'1 vid korta lägre tak  ι< α1 i eurokod.
Har jag missat den texten eller har möjligheten utgått?
Ifall möjligheten till reduktion utgått tycker jag att det är märkligt, då formeln i många fall gett upphov till relativt stora reduktioner.

Svar: Vill minnas att den grupp som tog fram Eurokoden Snölast ansåg att denna reduktion var dåligt underbyggd.

 

SS-EN 1991 – A1-ändring till trafiklaster

Fråga: En fråga angående Tabell 4.4a i SS-EN 1991-2 (Laster på bärverk - Del 2: Trafiklast på broar). Det finns ett amendment till SS-EN 1991-2 som säger att denna
tabell ska bytas ut. Den nya tabellen förstår jag inte riktigt. Fotnoten a har hamnat i rubriken för horisontalkrafterna, vad innebär detta? För vilka lastgrupper ska de hori-sontella lasterna medräknas?

Tidigare var denna fotnot på de horisontella lasterna för gr1a och innebar att det frekventa värdet ska användas för dessa laster vid beräkning av gruppen. Det var tydligare.

Svar: Så länge Boverket/Trafikverket inte har infört A1-ändringen så gäller den inte i Sverige

 

SS-EN 1991 – Aerodynamiska laster

Fråga: En fråga angående kapitel 6.6 i SS-EN 1991-2 där aerodynamiska laster av passerande tåg behandlas. I kapitlet finns möjlighet att ta fram laster på ytor parallella med spåret, men var får jag fram laster på ytor som är vinkelräta mot spårriktningen (t.ex. en skylt)?

Svar: Man kan nog bara konstatera att detta inte behandlas i SS-EN 1991-2, som primärt är till för trafiklaster på broar, och inte i någon annan eurokod heller. Det enda jag känner till i detta sammanhang är Trafikverkets krav när det gäller lufttryck av passerande tåg på inredningar och installationer i tunnlar, som anges i verkets interna standard för järnvägstunnlar.

 

SS-EN 1991 – Belastad längd

Fråga: SS-EN 1991-2
Frågan gäller belastad längd, L, vid tillämpningen av ekvation 5.1 för beräkningen av qfk vid flerspann gångbroar. Ska L vara brolängd, kortaste spann, längsta spann eller medelspann? Eller de belastade delarna av influensytan för aktuell snitt? Det sistnämnda alternativet ger olika värden på för olika snitt längs brobanan.

Svar: Det är ”belastad längd” eftersom det är så det står i standarden. Detta ger vid noggrann beräkning olika lastintensitet beroende på vilket snitt man räknar på eftersom den belastade längden varierar med influenslinjens utseende. Å andra sidan kan man vid en enklare beräkning räkna med samma last oavsett betraktat snitt om man väljer L försiktigt, d.v.s. ett litet värde på L. Man använder alltså den största last, som är dimensionerande i ett snitt av betydelse i alla snitt. Vi hade samma system i 1950, 1955 och 1960 års trafiklastbestämmelser.

 

SS-EN 1991 – Snölast och nyttig last på ramverkstakstol

Fråga: Om jag har en ramverkstakstol så har jag en nyttig last inne i rummet, en annan på utsidorna av rummet och en tredje nyttig last på hanbjälken. Den här punkten betyder, som jag förstår det, att all nyttig last ska räknas som en last, då jag har med snö/vind i lastkombinationen. D.v.s. om nyttig last är huvudlast och snö/vind är övriga variabla laster så måste jag räkna med 1,5 gånger alla tre nyttiga laster samtidigt vilket verkar konstigt.
Jag har svårt att förstå varför alla dessa tre olika nyttiga laster skulle ha sitt värsta värde samtidigt bara för att jag har med snö?

Jag hoppas att man menar att all nyttig last ska räknas som en last, om man har någon annan variabel last som huvudlast? Men jag kan inte förstå det så om jag bara läser normen. Vad gäller?

Svar: Den nyttiga lasten ska betraktas som en enda last och det är precis vad som står i 3.3.1, oberoende av om den nyttiga lasten är huvudlast eller inte.

Det är dock alltid tillåtet att tänka själv, och det betyder t.ex. att vissa tänkbara lastkombinationer ibland kan uteslutas utan noggrannare genomgång, eftersom andra lastkombinationer kan bedömas som mer ogynnsamma. Har lasterna “inget samröre med varandra” måste det rimligen vara meningslöst att kombinera dem.

 

SS-EN 1991 – Last av cyklar

Fråga: Vilken last bör man använda för last från cyklar på t.ex. ett pelardäck ? I BKR finns ju 4 kN/m2 för gårdsbjälklag utan fordonstrafik. Vad säger eurokoden? Tabell 6.8 i SS-EN 1991-1-1:2002 verkar säga 1,5-2,5, där det väl rekommenderas 2,5 kN/m2 ? Hittar inget i EKS 7.

Svar: Det finns åtgärder att begränsa vikten på de fordon som kan ta sig in på torget, t.ex. med skyltar, löstagbara hinder och med utformning av infartsvägar. Förefaller dock rimligt att försöka hitta en klass som ungefär svarar mot BKR:s gårdbjälklag, men med ett tillägg för enstaka fordon för leverans av varor, sophämtning och snöröjning.

Du föreslår själv tabell 6.8 och kan torget utformas så att endast lätta fordon ≤ 30 kN kan ta sig in gäller kategori F, alternativt kategori G. Valet mellan dessa eller eventuellt annan kategori bör konstruktör och arkitekt enas om.

 

SS-EN 1991 – Last på balkonger

Fråga: Enligt 3.3.2 i SS-EN 1991-1-1 bör man inte anta att nyttig last och snö- eller vindlast verkar samtidigt på yttertak. Hur är det med balkonger, kan de tolkas som yttertak? Enligt BKR 2:21 behöver man inte kombinera nyttig last med snölast på balkonger. Ett snabbt överslag visar att lasten på balkonger blir dubbel så stor med eurokod jämfört med BKR. Stämmer detta? Personligen tycker jag att nyttig last och snölast inte ska behöva kombineras. Nyttig last har man höjt från 2,0 kN/m2 (BKR) till 3,5 kN/m2 (eurokod).

Svar: Det förefaller som ett förbiseende att den text som står i BKR 2:21 inte finns med SS-EN 1991-1-1 3.3.2. Och som en påminnelse vid framtida revidering av eurokoden. I senaste EKS anges lasterna qk = 3,5 kN/m2 och Qk = 2,0 kN, d.v.s. en ordentlig höjning av den utbredda lasten.

SS-EN 1991 – Last på trappor

Fråga: Vilken nyttig last ska man räkna med på trappor i lokaler kategori E1 och E2?

Svar: Kategorierna E1 och E2 anges i 6.3.2 i SS-EN 1991-1-3, men där finns inga trapplaster. Det är då rimligt att söka sig till de avsnitt i dokumenten där dessa laster anges och det är i avsnitt 6.3.1, tabell 6.2 med tillhörande tabell 6.1. Det måste vara en uppgift för konstruktör, arkitekt och/eller byggherre att avgöra vad som kan vara lämplig trapplast i de aktuella industrieller lagerlokalerna med hänsyn till trappornas utformning, hissar och den verksamhet som ska bedrivas.

SS-EN 1991 – Påkörningslast

Fråga: Ska dimensionera en pelare för ett flerbostadshus som inte är utsatt för vind (alltså ingen vindlast). Har hittat följande, ”pelare, väggar och liknande konstruktioner, som kan bli utsatt för påkörning, ska minst dimensioneras för en koncentrerad horisontell last Qk= 5 kN”. Då denna pelare som jag dimensionerar inte kommer vara utsatt för påkörning, vad ska den koncentrerade horisontella lasten vara då? BKR säger 1 kN i en godtycklig höjd.

Svar: Om pelaren inte kan drabbas av påkörning krävs självfallet ingen dimensionering för påkörningslasten Qk = 5 kN. Däremot gäller verifieringskrav avseende olyckslast och fortskridande ras även om påkörning inte är aktuell.

SS-EN 1991 – Last i bibliotek

Fråga: En fråga om nyttig last i bibliotek. BKR klassade fria utrymmen i bibliotek som samlingslast. Läser man eurokod kan man få uppfattningen att bibliotek ska
innefattas i kategori E1, men E1 borde väl rimligen motsvara utrymmen för arkiv och dylikt? Har ni något bra tips/lästips för hur man klassar ett modernt biblioteks utrymmen med avseende på nyttiga laster?

Svar: Det är inter alltid lätt att identifiera kategorierna i eurokoden och det verkar rimligt att E1 motsvara arkiv och liknande. En jämförelse mellan BKR visar att kategori C1, som inkluderar läsrum, stämmer väl så bra in på fria utrymmen i bibliotek. I senaste EKS, d.v.s. 2011:10, sid 18, anges för kategorin C1; qk = 2,5 kNm2 och  Qk = 3,0 kN, vilket stämmer bra med BKR:s samlingslast. 

SS-EN 1991 – Linjelast på balkonger

Fråga: En fråga gällande den nyttiga utbredda lasten på balkonger. När man räknade med BKR lade man till en linjelast i balkongens framkant, men vad jag kan se och har förstått har den linjelasten tagits bort inom övergången till eurokod (och den utbredda lasten har ökats från 2.0kN/m2 till 3.5kN/m2 enligt de nationella valen). Har
jag tolkat saker och ting rätt då jag med eurokod enbart räknar med utbredd last och inte med någon linjelast?

Svar: Ja, det är riktigt, i eurokoden finns ingen linjelast. Däremot finns både utbredd last, qk, och koncentrerad last Qk. Anmärkningen under 6.3.1.2(1) talar om vad som gäller för qk och Qk.

SS-EN 1991 – Linjelast på räcke och GC-bro

Fråga: En fråga angående linjelast på räcke (gång- och cykelbro). Enligt TK Bro G.9.2.4 och SS-EN 1991-2, 4.8 och 5.8 dimensioneras för linjelasten 1,0 kN/m. Lasten har, vad jag kan se, inte fått några kombinationsfaktorer (ψ-faktorer). Ska det tolkas som att laster, som inte har några kombinationsfaktorer (ψ-faktorer), inte behöver kombineras med andra laster?

Svar: Det är riktigt att det inte finns någon kombinationsfaktor angiven för denna last, vilket givetvis är en miss i standarden. Observera att lasten även ska föras in i bron. Om det är ett högt räcke med nät eller dylikt är det orimligt att inte också ta hänsyn till vindlast.

SS-EN 1991 – Last på gårdsbjälklag

Fråga: Vilken nyttig last ska man ha på ett gårdsbjälklag enligt eurokod samt var hittar jag informationen?

Svar: Begreppet ”gårdsbjälklag” finns inte i SS-EN 1991-1-1. Däremot finns gruppen C5 med ”terrasser samt kommunikationsutrymmen” under 6.3.1, tabell 6.1 och 6.2 samt ”Garage och andra utrymmen med fordonstrafik” under 6.3.3. Valet bestäms av förväntad fordonstrafik.

SS-EN 1991 – Nyttig last och snö- och vindlast på tak

Fråga: Vi är ett företag i stålbyggnadsbranschen som nu anpassat oss till beräkningar enligt eurokoden. Dock ser vi en otydlighet i följande mening på sidan 13 i SS-EN 1991-1-1:2002

”3.3.2 Särskilda regler för byggnader

(1) Nyttig last och snö- eller vindlast bör inte antas verka samtidigt på yttertak.”

Hur ska detta tolkas?

För oss finns speciellt intresse för hur vi ska räkna då vi inte har nyttig last på yttertak. Ska man då kombinera snö- och vindlaster på tak? Se bifogad skiss.

Det absolut volymmässigt största området för oss är oisolerade plåthallar, där det endast förekommer en egenvikt på tak av plåt och takåsar. Därför är det oerhört viktigt att lastfallen, som ska användas för en stålhallsram, tydligt framgår av koderna och inte kan misstolkas.

Svar: Nyttig last är last som vi människor åstadkommer genom att utnyttja en lokal som lager, bostad eller för industriell verksamhet etc. På ett tak finns sällan nyttig last. De enda tillfällen (efter att bygget är klart) jag kan tänka mig är i samband med reparation av tak, omläggning av papp/plåt eller likande då man kan ha byggmaterial, verktyg och maskiner på taket. Och den typen av verksamhet brukar förläggas till sommarhalvåret då det sällan är riktigt hårda vindar och ingen snölast. Därför är det ett rimligt antagande att inte kombinera nyttig last på yttertak med snö- och vindlast.

Förtydligande: Om inte nyttig last finns ska snö- och vindlast kombineras vid dimensionering.

SS-EN 1991 – Övergång mellan terrängtyper

Fråga: Jag ska bedöma terrängtyp för en byggnad, och byggnaden ligger i terrängtyp 3 (stadsmiljö, Malmö). Tre km längre bort ligger kusten d.v.s. terrängtyp 0. Enlig bilaga A.2 i SS-EN 1991-1-4 saknas terrängtyp 0. Hur kommer det sig?

Det blir svårt att applicera metod 2 på mitt beräkningsfall. Betyder det då att man ska eller kan gå på metod 1?

Svar: Procedure 1 given in Annex A2 should be used in calculating appropriate wind velocity profiles. It can be shown that the procedure 2 is too complicated for practical use and is not applicable to terrain category 0.

SS-EN 1991 – Tabeller för vindtryck

Fråga: Vid min tidigare anställning hade vi köpt eurokoder med implementerat svensk NA i slutet av upplagan. Där kunde man bland annat hitta tabeller avseende karakteristiskt hastighetstryck för vind, för olika terrängtyper och referensvindhastigheter. Liknande den tabellen man hittar i slutet av BSV97.

På mitt nya jobb har vi i stort sett hela Eurokodupplagan, men tillämpar EKS8 och där finns inte denna tabell med. Var kan man hitta denna? Det är en bra tabell i tidiga skeden eller för enkla konstruktioner och mycket användbar.

Svar: Då tabellerna i BSV 97 baserar sig på samma grund-läggande formler som de som anges i EKS kan BSV 97 tabeller, användas t.ex. för överslagmässiga beräkningar. I VVFS 2004:43 (Vägverkets EKS) har inte motsvarande ändring gjorts när det gäller de nationella valen till SS-EN 1991-1-4 och där finns tabellerna fortfarande kvar.

SS-EN 1991 – Formfaktorer för carportar

Fråga: Hur skall formfaktorerna i eurokod tolkas gällande en eller flera öppna sidor t.ex. carportar? 

– BSV97 figur A3a ges inv. formfaktorer med öppna sidor.

– SS EN 1991-1-4:2005 kap 7.2.9 (2) ges hänvisning till fristående tak och väggar om det rör sig om minst två sidor som överstiger 30% av sidan area.

Svar: Enligt Eurokod SS-EN 1991-1-4, beräknas vindlaster på byggnader med två eller flera öppna sidor med hjälp av tryckkoefficienter som anges för tak och fristående väggar. Det bör noteras att storleken på byggnaden skall beaktas vid val av trycketkoefficienter på fristående väggarna.

SS-EN 1991 – Bromssträcka 

Fråga: Jag vill bedöma en bromssträcka för olyckslaster orsakade av vägfordon. Hänvisning ges till bilaga C i SS-EN 1991-1-7, och då bland annat Tabell C.2. Problemet för mig är hur de kommer fram till en bromssträcka på 10 m för tättbebyggda områden? Sätter jag in de redovisade värdena för hastighet och inbromsning (i formeln för bromssträcka enl. C.3) från tabell C.2 får jag db=32.2 m.
Jag funderar också på vinkeln mellan körfält och det påkörande fordonets kurs. Bör den inte räknas med cos istället för sin?

SS-EN 1991-1-3 Snölast

Svar: db som benämns bromssträcka i den svenska översättningen (”braking distance” i den engelska) är nog egentligen inte bromssträcka i vanlig mening utan dess komposant tvärs farbanans riktning, alltså i samma riktning som d. Själva bromssträckan är  ν20/2α  . Därav sin för vinkeln mellan farbanan och fordonets kurs. Det är alltså fråga om hur långt från farbanan i tvärsriktningen fordonet befinner sig när det bromsats upp helt.  

Sätter man in värdena för hastighet och deceleration från tabell C.2 och vinkel från tabell C.1 så får man db = ca 10. Observera att hastigheten i tabell C.2 är angiven som km/h som måste göras om till m/s när den sätts in i formel C.6.

SS-EN 1991 – Vindlast på inglasade balkonger

FrågaEn fundering kring hur man beräknar inre vindlast för inglasade balkonger. I SS-EN 1991-1-4:2005, 7.2.9 Invändig vindlast anges tre olika alternativ som kan användas för att bestämma denna.

1) En sida dominant: 0,75 cpe ≤ cpi ≤ 0,9 cpe
2) Ingen dominant sida, cpi beräknas enl EC: -0,5 ≤ cpi ≤ 0,35    
3) Ej möjligt/motiverat att uppskatta öppningsarean: cpi  
väljs som det mest ogynnsamma värdet av 0,2 och= -0,3
Beroende på vilket alternativ man väljer kan lasten på inglasningen skilja markant. Bifogar ett par exempel på detta.

Att använda alternativ 1 eller 2 kräver bedömning av arean av otätheter på inglasningen, vilket kan ge upphov till godtycklighet och dessutom lätt kan ändras under brukartiden om t.ex. tätlister etc. monteras eller tas bort. Vid ogynnsamma geometrier kommer lasten öka betydligt jämförelse med idag (se exempel), vilket i vår mening är obefogat.

Att använda +0,2 eller -0,3 ger en ökning jämfört med de laster som är dimensionerande idag, vilket i vår mening är obefogade.

Kan vi använda samma värden på inre vindlast som används i Sverige idag? D.v.s. 0,3 eller 0,0 (www.bf.nu tekniska anvisningar Sverige) alternativt helt försumma den inre vindlasten vilket görs i Norge (www.bf.nu tekniska anvisningar Norge.) Detta skulle i så fall medföra att största sammanlagda formfaktor på inglasningen får samma värde som idag d.v.s. 1,2.

Svar: Loads on individual balconies should be estimated by treating them as boundary walls given in section 7.4 of SS-EN 1991-1-4.

The location of balconies on the building face is important and should be considered in the design. If the balcony is located near the corner of a building or near the roof, it can experience very high suction or pressure loads.

Higher values of aerodynamic coefficients should be used in the design of fixings for the balconies. It is recommended that the balconies should be designed for wind loading by treating them as parapets or external ribs on the walls of the building. This is due to the fact the separation of flow from hanging balconies results in higher suction or pressure depending on the location.

SS-EN 1991 – Lastkombinationer enligt eurokod och BKR

Fråga: I BKR finns LK8 och LK9. Vilken kombination i Eurokod motsvarar LK8 resp. LK9? (Jag tolkar det som LK8 motsvarar den karakteristiska kombinationen och LK9 den frekventa kombinationen. Men jag tycker då att ψ-faktorerna är för låga i eurokoden i jämförelse med BKR). Kan ni förklara?

Svar: Det stämmer att LK8 i princip motsvarar den karakteristiska kombinationen enligt eurokod och LK9 den frekventa. I eurokoderna är ju beräkningarna i bruksgränstillståndet mer nyanserade då det finns fler ψ-faktorer att använda än i BKR.

I eurokod finns det en lastkombinationsfaktor ψo som övriga laster än huvudlasten i en lastkombination multipliceras med. Detta görs därför att sannolikheten för att två eller flera laster samtidigt ska uppträda med sitt karakteristiska värde minskar med antalet samverkande laster. Sedan finns  som ger det frekventa värdet på varje enskild last. Det kvasi-permanenta värdet fås genom ψ2 och ger ett långtidsvärde. I BKR motsvaras både eurokodens ψo och ψ1 av lastreduktionsfaktorn ψ och eurokodens ψ2 av ψ1. Den karakteristiska kombinationen är i princip identisk med LK8, så där behövs knappast någon motivering.

I den frekventa kombinationen används det frekventa värdet på huvudlasten men det kvasi-permanenta värdet på övriga variabla laster, medan BKR använder samma lastreduktionsfaktor ψ för samtliga laster. I analogi med vad som sagts ovan om att en kombination av två lasters karakteristiska värde inte har samma sannolikhet att inträffa samtidigt som var för sig bör samma gälla även för det frekventa lastvärdet. Det frekventa lastvärdet för två laster som verkar samtidigt bör vara lägre än summan av de båda lasternas frekventa värden när de verkar enskilt. Därför används det kvasi-permanenta lastvärdet som samverkande värde i stället.

I BKR tog man inte hänsyn till detta utan där användes ψ för alla variabla laster i LK9, vilket då är på säker sida. Om man är orolig för att en lastkombination ger för låga laster bör man som ingenjör naturligtvis välja de laster som man själv anser att byggnadsverket bör dimensioneras för.

SS-EN 1991 – Exceptionell snödrift

Fråga: Har ni några kommentarer till när det är lämpligt att använda bilaga B till SS-EN 1991-1-3? Den handlar om exceptionell snödrift, och kan användas ”i de fall byggherren önskar en högre tillförlitlighet än normalt”(citat EKS 8). I en beräkning jag nyligen gjort jämförde jag värdet på 

 om jag räknade enligt bilaga B eller avsnitt 5.3.6, ”Flernivåtak och tak nära högre byggnadsverk”, och fick lägre faktor när jag räknade enl. bilaga B. Jag reagerade på detta då denna beräkning är tänkt att ge en större last.

Ingående parametrar i beräkning:

Lägre byggnads bredd: 2,5m; Högre byggnads bredd: 37,5 m; Höjdskillnad mellan tak: 2,5m; 

 = 1,5; Taklutning ca 3 grader på båda taken.

Beräkning enl. avsnitt 5.3.6

μ = (b1+b2)/2h ≤ ρh/Sk

μ = (2,5+37,5)/(2*2.5) ≤ 2*2,5/1,5

SS-EN 1991-1-3 Snölast

 

μ = 8 ≤ 3,3

μ = 3,3

Is=2h=2*2,5=5m

Alltså blir 

 närmast det högre taket 3.3 och 
 längst ut = (3,3–0.8)/5*2,5+0,8=2,1

Beräkning enl. bilaga B: exceptionell snödrift

μ =2h/Sk=2*2,5/1,5=3,3

Is = b1=2,5m 

Alltså blir μ närmast det högre taket 3,3 och μ längst ut 0,8

Svar: Ja, det är ett överraskande resultat. Man hade väntat sig att det exceptionella fallet skulle ha gett en högre snölast.
Det finns en principiell skillnad mellan 5.3.6 och B3.

I 5.3.6, precis som i BSV, kan man säga att μw inkluderar ”grundvärdet” μ1 medan B3 saknar ”grundvärde”.

Slutresultatet är att 5.3.6 är dimensionerande för μw. 

SS-EN 1991 – Nationella val till SS-EN 1991-1-1 man

Fråga: Var hittar jag nationella val till t.ex. "Nyttiga laster" i SS-EN 1991-1-1? Det verkar inte finnas något sådant dokument på Boverkets hemsida.

Svar: Rubriken till kap. 6 i SS-EN 1991-1-1 är ”Nyttig last för byggnader”. De nationella valen finns i Boverkets föreskrifter och allmänna råd om tillämpningen av europeiska konstruktionsstandarder (eurokoder), BFS 2011:10 med efterföljande ändringar. De nationella valen finns i avdelning C, kap. 1.1.1, 8 § i.

SS-EN 1991 – Karakteristiskt hastighetstryck

Fråga: 
SS-EN 1991-1-4:2005: 


För att räkna ut qp(z) behöver man först räkna ut ce(z). I uttrycket 4.9 beskrivs hur man räknar ut ce(z). I detta uttryck finns qp(z) med i täljaren.

Kan detta stämma?

Svar: Ja det stämmer. I uttrycket i 4.9 har man endast flyttat över qb till sidan med qp(z) för att få ce(z) för sig själv. Observara dock att i EKS 8 har under 7 § ett nationellt val gjorts till 4.5(1) om att ersätta uttryck 4.8 i SS-EN 1991-1-4 med den ekvation som ges nedan.

(z)  = [1 + 6 ν (z)] [1/2 . ρνm2(z)] = ce(z) . q (4.8)

c e (z) = [1 + 6 I ν (z)] [e n (zo)]2  (4.9)

Figur C-5 under 7 § ger i diagramform exponeringsfaktorn 

 för olika terrängtyper och ersätter figur 4.2 i SS-EN 1991-1-4.

Observera att Boverkets EKS och Trafikverkets eurokodföreskrift är i dagsläget inte identiska på denna punkt. Trafikverkets nationella val till SS-EN 1991-1-4 är under översyn.

SS-EN 1991 – Nationell val till SS-EN 1991-3

Fråga: När kommer nationella val för SS-EN 1991-3?

I SS-EN 1991-3, Bilaga A, Kap A.2.3, finns en tabell för ψ-värden. I den tabellen får man ψ0 = 1, ψ1 = 0,9 och ψ2 = permanent last/total last. Gäller dessa ψ-värden för endast vertikala laster eller för både vertikala och för horisontella laster?

I det fallet att de endast gäller för vertikala laster, vilka är ψ-värdena för horisontella laster? I gamla BKR var ju lastreduktionsfaktorn betydligt mindre för horisontallast än för vertikallast. Samtidigt fanns det även olika lastreduktionsfaktorer för olika driftklasser. Finns det något liknande i Eurocode?

ψ0 = 1 ger ju att traverslasten alltid kommer att vara 1,5 gånger traverslasten oberoende av vilken last som är huvudlast.

ψ1 = 0,9 ger att det kommer att ställas oerhörda krav på konstruktionen i bruksgräns.

Svar: I EKS 9 har nationella val gjorts. Dessa skiljer sig åt från ovan nämnda faktorer.

SS-EN 1991 – Snödrift vid avstånd mellan byggnader

Fråga: Jag har en liten fundering över hur nära en byggnad kan ligga utan att man behöver ta hänsyn till snödrift?

Enligt SS-EN 1991-1-3 (bilaga B.3) anger man i anmärkningen ett approximativt mått på 1,5 m.

Är det rätt att anta att även detta gäller för normala förhållande eller endast för exceptionella förhållanden?

Svar: I kap 1.1.3 i EKS står det under 3 § som gäller nationellt val till 1.1(3) i EN 1991-1-3 att de exceptionell lastfallen B1, B2 och B3 (i Bilaga A) inte behöver beaktas. Tillhörande allmänna råd ger dock möjlighet för byggherren att även använda lastfall B2 som gäller vid exceptionell snödrift, om denne önskar en högre tillförlitlighet än normalt för ett bärverk i öppen terräng. I de fall verifiering av bärförmågan sker för exceptionell snölast kan den betraktas som olyckslast. Snölast till följd av normal snödrift ska alltid beaktas, även om byggherren väljer att även verifiera bärförmågan i fallet exceptionell snödrift.

Snölast till följd av normal snödrift har enligt 5.3.6(1) ANM 2 i SS-EN 1991-1-3 en utsträckning ls mellan 5 och 15 m. Den övre gränsen gäller även vid exceptionell snödrift enligt B3(3) ANM 1 i tabell B1 i SS-EN 1991-1-3. Om byggnaderna är separerade från varandra eller inte spelar i princip ingen roll för snöfickans form och utbredning. Snöfickans formfaktorer och utbredning för normal snödrift bör bestäm bestämmas utifrån ekvation (5.6) alternativt (5.7).

I fallet exceptionell snödrift används de modeller och villkor som anges i bilaga B. Om byggnaderna är separerade med mer än 1,50 meter behöver inte exceptionell snödrift beaktas. Eftersom det ändå är frivilligt att beakta exceptionell snödrift är användandet av de 1,5 meterna irrelevant i Sverige.

SS-EN 1991 – Nyttig last i fläktrum

Fråga: Jag håller på att projektera ett nytt fläktrum i en befintlig skolbyggnad. Skollokalerna är i en våning i markplanet. I det nya fläktrummet kommer det att vara en trappa upp över skollokalen.

Den nya trappan är omgiven av nya väggar. Man når trappan genom en dörr i markplanet.

När jag läser SS-EN 1991-1-1 inser jag att fläktrummets golvbjälklag skall dimensioneras för egentyngden av de fasta fläktinstallationerna. Denna last betraktas som en egentyngd.

Frågan är vilken nyttig last av personer som man ska dimensionera fläktrumsbjälklaget och trappan för? Finns det något krav i Eurokoden?

Svar: Varken i BKR eller i SS-EN 1991-1-1 står det något speciellt om last i fläktrum och inte heller om last på trappa till fläktrum. Nyttig last i fläktrum bör kunna väljas enligt kategori A i Tabell 6.1.

Om trappan inte är tillgänglig för elever och personal i skolan bör man kunna välja kategori A.

För det enskilda objektet kan byggnadsnämnden som myndighetsrepresentant ha en åsikt.

SS-EN 1991 – Globala och lokala effekter

Fråga: Eurokod skiljer på lokala och globala effekter bl a när det gäller användande av olika trafiklaster på broar. Hur görs denna uppdelning i globala och lokala effekter och vad tillhör vad? Det är inte helt solklart.

Svar: Enligt Cambridge Dictionary så står global för ”considering or relating to all parts of a situation or subject”. En global analys (för att bestämma globala effekter) i det här sammanhanget är alltså analys av det bärande och stabiliserande systemet i ett byggnadsverk sett som en helhet.

Tyvärr ges en definition av global analys i SS-EN 1990, Kap. 1.5.6.2 som inte är helt entydig i den engelska versionen, och i den svenska översättningen är den ännu otydligare på grund av en dålig översättning av consistent set (samhörande uppsättning). Detta är ett alltför vagt ord och täcker inte alls in hela betydelsen av consistent. (Konsekvent, sammanhängande, utan motsägelser, som hänger ihop som en helhet.)

Dessutom är terminologin på engelska vacklande, på vissa ställen används general analysis med samma betydelse som global analysis, ibland t.o.m. i samma eurokoddel. I de svenska versionerna har man dock genomgående använt global anays.

I SS-EN 1991-1-2 ger man en definition för global analys (för brand) som är betydligt enklare och tydligare, och där man särskilt trycker på att det är fråga om en analys av bärverket som en helhet.

I en anmärkning till SS-EN 1990, Kap. 1.5.6.1 där bärverksanalys definieras står att: ”En bärverksanalys kan behöva utföras på tre olika nivåer med olika modeller. Global analys, analys av bärverksdelar, lokal analys.”

I de flesta eurokoddelarna skiljer man dock bara på global eller lokal analys. En lokal analys (för lokala effekter) blir då alla analyser som inte faller under begreppet global analys. D.v.s allt från mycket lokala verifieringar (typ kontakttryck) till analyser av enskilda bärverksdelar, t.ex pelare och brobaneplattor. Stöd för denna tolkning får man bl.a. i SS-EN 1991-2, Kap. 4.6.1(4) och (5).

Ett annat sätt att se det är att en lokal analys är en analys som om den misslyckas bara leder till en lokal skada medan en global analys är en analys som om den misslyckas kan ge en global skada, dvs ett totalhaveri.

SS-EN 1991 – Vindlast på gångbro

Fråga: Jag vill räkna ut vindlasten för en gångbro som är täckt av plåt, hängandes ett par meter upp i luften. Den kan uppfattas som en ”låda” med cirkamåtten, b = 19 m, h = 2 m och d = 1 m. Största vindlasten uppträder mot sidan med b = 19 m och h = 2 m. Hur rekommenderar ni att jag räknar ut vindlasten på den? Qhar jag redan etablerat.

Svar: Formfaktorer för täckta gångbroar kan erhållas ur avsnitt 7.6 i SS-EN 1991-1-4 (Eurocode on wind loads).

Det är viktigt att notera att gångbroar bör kontrolleras för egensvängningar på grund av vind. Komfortkriterier ges i ISO 10137.

SS-EN 1991 – Nyttig last gårdsbjälklag

Fråga: I BKR fanns en lastgrupp 5:4 nyttig last på gårdsbjälklag utan fordonstrafik.

Jag har letat i SS-EN 1991-1-1 efter motsvarande kategori för nyttig last men jag hittade ingen kategori som passar. Vilken nyttig last ska man räkna med?

Gårdsbjälklag är underlag för exempelvis en innergård i anslutning till flerbostadshus som de boende använder som trädgård med gräsytor, gångytor, planteringar och liknande. Under gårdsbjälklaget kan det vara ett parkeringsgarage.

Svar: Begreppet ”gårdsbjälklag” finns inte i SS-EN 1991-1-1. Eftersom bjälklaget inte ska trafikeras av fordon kan det rimligen inte vara så svårt att hitta en kategori i tabell 6.2 som hyfsat överensstämmer med värdena enlig lastgrupp 5:4 i BKR. Allmänt gäller att den eller de som projekterar bygget och vet vilken verksamhet det är avsett för har de bästa förutsättningarna att göra en bra bedömning.

SS-EN 1991 – Vindlast och formfaktorer

Fråga: I avsnitt 7.4.1 i SS-EN 1991-1-4 anges formfaktorer för nettovindlast för fristående väggar och skärmar. Om man exempelvis ska dimensionera en bullerskärm med träpanel inklusive dess infästningar behövs kännedom om formfaktor för lokalt vindsug.

Hur bestäms dessa formfaktorer för exempelvis en lång bullerskärm intill järnväg? Hur kombineras lokal formfaktor för vindsug enligt ovan med aerodynamiskt sug från tåg?

Svar: Då kollaps av bullerskärmar intill järnvägar kan påverka järnvägstrafiken ges kompletterande regler för dessa i TRVK Bro 11 avsnitt L.8.

En bullerskärm är ju normalt uppbyggd med ett skyddande skikt (träpanel) som är utsatt för både drag och sug samtidigt, därför anges nettovindtrycket i Kap. 7.4.1 på skärmens olika zoner. De värden som anges i tabell 7.9 kan användas även för dimensionering av infästningar, alltså även lokalt, i de olika zonerna av skärmen.

Vindtryck kombineras med lufttryck från passerande tåg, med de Ψ-faktorer för lufttrycket som anges för järnvägsbroar (SS-EN 1990, Tabell A2.3). För vindlast gäller Ψ-faktorer enligt BFS 2011:10-EKS.

Lufttrycket av passerande tåg (enligt SS-EN 1991-2 avsnitt 6.6) beror på var tågets ändar befinner sig och kan alltså ha sitt maxvärde var som helst utmed skärmens längd.

Vid dimensioneringen ska det beaktas att både vindtryck och lufttryck är dynamiska laster, och för att göra enbart en statisk analys gäller vissa förutsättningar (se Trafikverket Bro). Det är också viktigt att infästningarna dimensioneras med avseende på utmattning av både vind och lufttryck.

SS-EN 1991 – Nyttig last

Fråga: Undrar hur man utläser skillnaderna i nyttig last för D1 rep D2?

Vari ligger skillnaden på ”Utrymmen i lokaler avsedda för detaljhandel” resp. ”Lokaler i varuhus”. Som lite rolig notis beskriver wikipedia: Detaljhandel kan bedrivas från en fast placerad butik eller varuhus.

Svar: Inte helt lätt att särskilja grupperna D1 och D2. BKR 2010 ger heller ingen ledning då både butiker, som rimligen kan tolkas som detaljhandel, och varuhus finns i samma grupp, trängsellast, med q= 4,0 kN/m2 och Qk = 3,0 kN. Samma värden som i BKR 94.

Tabell 6.2 i SS EN 1991-1-1 har samma lastnivåer för D1 och D2 men de rekommenderade värdena är olika. Det är dock alltid byggherren som ansvarar för att krav på bärförmåga uppfylls. Och det är också denne som bör ha bäst kännedom om byggnadens användning. Det är därför upp till byggherren att bedöma vilken belastning, D1 eller D2, som byggnadsverket ska dimensioneras för.

Det gäller alltså att göra en bedömning i det enskilda fallet. Beroende på byggnadens utformning (t.ex. högt i tak) och användning kan lasten variera inom ett relativt stort spann. Det är också viktigt att byggnadsägaren/brukaren är informerad om vilken nyttig last som byggnadens bjälklag och platta på mark eller motsvarande är dimensionerade för i byggnader där belastningen kan förväntas variera beroende på verksamhet.

SS-EN 1991 – Vindlast och formfaktorer

Fråga: SS-EN 1991-1-4, Kap. 8.3.1 ANM. 2:

Ska värdet 1.3 på formfaktorn vara ett alternativ till värdet ur figur 8.3 även för lastfallet vind på (bro + trafik)? Detta innebär att broar med b/dtot mindre än 4, d.v.s. smala broar, kan dimensioneras på osäkra sidan.

Svar: Formfaktorn beskriver strömningsmotståndet för ett föremål i en fluid, t.ex. luft, och är inte en konstant utan varierar med bl.a. strömningshastighet och riktning samt föremålets storlek och position i fluiden.

SS-EN 1991-1-4, Figur 8.3 beskriver hur formfaktorn för kraft, Cfx,0, för broar kan approximeras.

För broar:
– med massiva räcken/barriär och/eller trafik sätts Cfx,0, till min(2.4 ; max(2.5-0.3×b/dtot; 1))
– i byggfasen och/eller broar med öppna räcken kan Cfx,0, sättas till min(2.4 ; max(2.5-0.3×b/dtot;1.3))

där dtot; sätts som den höjd som används för att beräkna referensarean Aref och b brons totala bredd.

SS-EN 1991-1-4, Kap 8.3.1 anm. 2 föreslår en förenklad väg att bestämma, Cfx,0, där Cfx,0, sättas till 1.3 för ”normala broar”. Att läsa kap 8.3.1, ANM 2. strikt ger en last på osäker sida för b/dtot < 4. Anm. 2 skall istället ses som det faktum att det finns horisontella linjer i figur 8.3 från b/dtot = 4 resp. 5. För en bro med öppna räcken på båda sidor med trafik som uppfyller kravet b/dtot > 4 är det på säker sida att välja Cfx,0 = 1.3 för fallen med respektive utan trafiklast.

SS-EN 1991 – Virvelavlösning

Fråga: I EKS 8 står att Bilaga E.1 till SS-EN 1991-1-4:2005 som behandlar virvelavlösning inte får användas. Vilken standard/norm kan/skall användas för att beräkna last av virvelavlösning på ex skorstenar? Kan BSV användas istället för SS-EN 1991-1-4:2005?

Svar: Boverket har tagit bort möjligheten att använda eurokodens modell för virvelavlösning eftersom den inte är lämplig i alla delar. Innan någon modell tas in i EKS är det lämpligt att använda modell enligt Boverkets handbok om snö- och vindlast, BSV 97, utgåva 2.

SS-EN 1991 – Vertikal förskjutning av brobana

Fråga: SS-EN 1991-2 Kap. 6.5.4.5.2 (3): Vad gäller för konsoländen för en ändskärmsbro. Kravet 2 mm (som gäller där konstruktionsdelar ansluter mot varandra) är mycket högre än de 5 mm som gällde förut för fri ände.

Svar: SS-EN-1991-2 Kap. 6.5.4.5.2 (3) behandlar vertikal förskjutning av brobanans överyta i förhållande till angränsande bärverk och reglerar detta för hastigheter högst 160 km/h, eller större än 160 km/h. Att man skiljer mellan högre och lägre hastigheter beror bl.a. på att diskontinuiteter mellan bron och angränsande bärverk i möjligast mån bör undvikas. En större tillåten förskjutning ger en större påverkan på bl.a. kontakten mellan hjul och räl.

Kraven gäller så som det är formulerat i SS-EN 1991-2.

SS-EN 1991 – Horisontella laster och frekventa kombinationer

Fråga: Jag har en fråga ang. frekvent kombination (6.15b i SS-EN 1990). Jag har förstått det som att tabell 4.4b i SS-EN 1991-2 ska användas för komponeringen av trafiklastgrupper till den frekventa kombinationen.

Min fråga är: I tabell 4.4b finns inga horisontella krafter med för komponeringen av trafiklastgrupper. Innebär det att de horisontella lasterna (cent, sidostöd, broms) inte ska vara med i den frekventa kombinationen överhuvudtaget?

Svar: Ja. Det framgår av ”4.3.2” och ”Boggisystem och jämnt utbredda laster” i tabellens huvud. De refererar till vertikal last av boggi (TS) och utbredd last (UDL) i SS-EN 1991-2, Kap 4.3.2. Vertikala laster står i SS-EN 1991-2, Kap 4.4, jmf tabellhuvudet i tabell 4.4a.

SS-EN 1991 – Buffertkraft från telfrar

Fråga: Min fråga avser buffertkraft från telfer, SS-EN 1991–3:2006 Kap 2.11.1 samt 2.11.2.

I vilken enhet är Hb1'? N eller kN?

Kan buffertkraften från en telfer som går på en fast balk räknas enligt Kap 2.11.2 om de ingående kraven i texten är tillgodosedda, eller är det tvunget att det är en överliggande tralla på en traverskran.

Svar: Om du använder de enheter som ges i anslutning till formel (2.15) får du Hb1' i N.

Det framgår inte av texten huruvida Kap 2.11.2 kan användas för en telfer men å andra sägs inget annat om buffertkrafter. Min bedömning är att Kap 2.11.2 kan användas även för en telfer.

SS-EN 1991 – Frekventa värden på vertikallast

Fråga: I Gr2 har vi gjort tolkningen att karakteristiska värden för multikomponentlast (Tabell 4.4a i SS-EN 1991-2) ska väljas samma som för Gr1a, d.v.s. att de frekventa värdena på vertikallasten blir 0,75 för axellast och 0,40 för utbredd last.

Jag jämför Tabell 4.4a med Gr1a i Tabell A2.1 i SS EN 1990. Är min tolkning korrekt?

Svar: Ovanstående är riktigt. De frekventa värdena för vertikallast av LM 1 beräknas med ψ1 enligt tabell A2.1 i SS-EN 1990.

Observera att SS-EN 1991-2, tabell 4.4a ändrats i SS-EN 1991-2/AC:2010 som ska användas tillsammans med TRVFS 2011:12.

SS-EN 1991 – Brukbarhet

Fråga: Vilken metod avser Boverket med kommentaren i BFS 2013:10?

BILD: SS-EN 1991_1
BILD: SS-EN 1991_2 

Svar: Det är den metod som ges i det nationella valet i 10 §, avdelning C, kap. 1.1.4 som ska användas. Det är för övrigt inge kommentar utan ett allmänt råd. Om rådet följs uppfylls föreskriftens krav på verifiering av bärförmågan. Om något annat än det allmänna rådet väljs måste man visa hur man i så fall uppfyller föreskriftens krav.

SS-EN 1991 - Snölast

Fråga: Finns möjlighet att reducera snölaster på tak om man föreskriver att taken ska skottas? 

Svar: Nej det är inte tillåtet.

SS-EN 1991 – Nyttig last på bjälklag

Fråga: Ett par frågor om hur koden skall tolkas i några specifika fall:

  1. SS-EN 1991-1-1, 3.3.1 (2). Här anges att nyttig last skall ses som en enda last vid lastfall med andra variabla laster t.ex. snö. Min fråga är om en bärverksdel endast är belastad med permanenta laster och nyttiga laster, men av olika typ av nyttiga laster t.ex. bostäder, kontor och parkering. Skall dessa laster ses som en enda last i detta fall också, eller skall de anses vara olika laster i lastkombinationen? Skillnaden kan bli ganska stor om man har en pelare som är belastad med olika sorters nyttig last på olika plan (men ej snö eller andra variabla laster). Jag tycker att normen är oklar i detta hänseende. Mitt antagande är att de olika nyttiga lasterna skall ses som en enda last, med stöd av ovan nämnda paragraf, även om fallet egentligen inte täcks in.
  2. SS-EN 1991-1-1, 6.2. När kan reduktionsfaktorn användas? Kan den användas vid själva dimensioneringen av bjälklaget, eller är det bara för exempelvis en balk som bär upp bjälklaget? Kan faktorn även användas för en pelare som bär upp ett enskilt plan, trots att reduktionsfaktorn står under avsnitt ”Bjälklag, balkar och yttertak”? Jag tycker inte att texten är utformad som att det är möjligt att använda den för pelare, men det känns orimligt om det inte är möjligt.

Svar: Allmänna synpunkter
Det är osannolikt att stora laster – av samma kategori - från flera bjälklag verkar samtidigt, och det är även osannolikt att stora laster – av samma kategori - verkar samtidigt över stora areor i samma horisontalplan.
Därför är det rimligt att reducera lasten i bägge dessa fall. Reduktionsfaktorn α (både och ) öppnar möjligheten för denna rimliga reduktion där gäller för stora areor i samma horisontalplan och  för flera våningsplan. Om den nyttiga lasten samverkar får endast en av de två faktorerna α (tabell A1.1 i SS-EN 19090) och   tillämpas enligt 3.3.2(2)P.

Frågan 1: om nyttig last från bostäder, kontor och parkering. Den här frågan påminner om en fråga från NN (utlämnar namnet) och möjligen handlar denna fråga om samma byggnad. Det kan dock finnas skäl att ta upp både NN:s fråga och det svar vi gav. NN hade ritat en figur med sex bjälklag där de två översta bjälklagen belastas med lastkategori B, nästa två bjälklag med lastkategori D och de längst ner belägna bjälklagen med kategori E respektive F. D.v.s. uppifrån och ner var bjälklagen belastade med kategorierna B,B,D,D,E,F.

Vårt svar, vilket även NN kom fram till, var att ingen reduktion i vertikalled är tillåten enligt 6.3.1.2(11) eftersom n i ekv (6.2) måste vara >2. Det är rimligt att tänka sig att den totala nyttiga om t.ex. en pelare tar last från bostad, kontor och parkring bör betraktas som en enda last.

Fråga 2: om reduktionsfaktorn 
I 6.3.1.2(10) står det ”I enlighet med 6.2.1(4) kan en reduktionsfaktor  användas på - värdena för nyttig last i tabellerna 6.2 för bjälklag och för …”. Alltså även för bjälklag.

Lägg dock märke till att om definitionen på A (se fråga 3) gäller för t.ex. en kvadratisk och symmetriskt armerad betongplatta med arean A1, som bärs av fyra balkar längs ränderna, som i sin tur vilar på fyra pelare, en i varje hörn (extrem byggnad), blir A = A1 för plattan. Men för varje balk och pelare blir A = A1/4, d.v.s. faktorn  kan bli mindre för plattan än för balkarna och pelarna, vilket är rimligt enligt de inledande allmänna synpunkterna.

SS-EN 1991 – Lastkombination och lastnedräkning

Fråga: Jag har några frågor kring lastkombination och lastnedräkning.

1. Först undrar jag vad man menar med begreppet ”samverkande last” i nedanstående stycke. Om jag har förstått det rätt är det den variabla last som inte anses vara huvudlast. Stämmer det?

”SS-EN 1991 3.3.2 (2)P

När den nyttiga lasten betraktas som en samverkande last enligt SS-EN 1990 ska endast en av de två faktorera ψ0 (tabell A1.1 i EN 1990) och αn (6.3.1.2 (11)) tillämpas.”

2. Vid beräkning enligt ekvation 6.10a (SS-EN 1990): Räknas alla lasterna som samverkande, då det inte finns någon huvudlast? Ska då endast den ena av ψ0 och αn beaktas för samtliga variabla laster? (enl. ovanstående).

3. Vid nyttiga laster i flera kategorier (t.ex. tre våningsplan med kontor och tre med butiker): Ska alla nyttiga laster läggas ihop till en enda last (som troligen blir huvudlast), eller ska endast en kategori vara huvudlast medan övriga är samverkande?

4. Hur ska begreppet ”belastad area” tolkas? (A i ekvation 6.1 i SS-EN 1991-1-1 ). Vid stora areor reduceras lasten med upp emot 0,5 – är det rimligt?

Svar:

1. Begreppet ”samverkande last” bör tolkas på ditt sätt. Det framgår även av tabellerna A1.2(A), (B) och (C) i SS-EN 1990.

2. I SS-EN 1990 EKV 6.10a samverkar alla angivna -laster om det är fysiskt möjligt.

Det är rätt som du skriver om  och  med hänvisning till 6.2.2(2) i SS-EN 1991-1- 1. Lägg märke till formuleringen ”som det minst gynnsamma av följande två uttryck:” i texten före EKV 6.10a och b.

3. Om även t ex snölast från taket verkar samtidigt med ”nyttiga laster i flera kategorier” ska den totala nyttiga lasten betraktas som en enda last” enligt 3.3.1(2)P, vilket i ditt exempel betyder att snölast ska vara huvudlast för den översta pelaren som bär taklasten medan den totala nyttiga lasten sannolikt ska vara huvudlast i övriga snitt med snölast som samverkande. Det är dock inte helt uteslutet att snölasten måste väljas som huvudlast i ett pelarsnitt under översta våningen med kontor och i så fall blir nyttiga lasten samverkande. Val av huvudlast styrs av 3.3.1(1)P: ”det farligaste lastfallet”.

Se även 6.2.2 (1) som gäller vid dimensionering av pelare och väggar och tillåter att ”den totala nyttiga lasten på varje våningsplan antas jämnt fördelad.”

Om ingen snölast verkar samtidigt med den nyttiga lasten blir det ogynnsammast för de tre pelarna som bär kontorsbjälklag att låta lasten (kategori B) vara huvudlast för den pelare som bär det översta kontorsbjälklaget och de övriga nyttiga lasterna samverkande. För de pelare som bär affärsbjälklag är det ogynnsammast att välja kategorin D som huvudlast för översta bjälklaget i affärsdelen och övriga nyttiga laster som samverkande.

4. Primärt är belastad area den area som belastar betraktad bärverksdel. Eftersom flera pelare/väggar normalt bär en platta kommer endast viss del ner i den enskilda pelaren eller väggen, se Kap. 6.2.1(4) i SS-EN 1991-1-1. Lägg märke till restriktionen, 0,6 i SS-EN 1999-1-1 Kap. 6.3.1.2(10).

Begränsningen enligt EN 1991-1-1, avsnitt 3.3.1(2)P vad avser kombination av nyttiga laster med andra variabla laster innebär att den nyttiga lasten ska betraktas som en och samma även om beroendet är lågt.

SS-EN 1991- (EN 1317-5) och SS-EN 1991-2

Fråga: En kund beslutar att göra ett avsteg från CE-märkningen och avsteget de gör är att inte ha ett CE-märkt broräcke för en vägtrafikbro (40 km/h) över järnvägsspår. Klassning räcke ska vara H2 och stumt.

Var kan jag läsa om hur man ska utföra beräkningarna för denna egna räckesdesign? Ska det t ex utföras krocksimuleringsberäkningar eller räcker det att beräkna en räckesstolpe och följaren för laster enligt SS-EN 1991-2 kapitel 4.7.3.3 ?

Svar: Eurokod innehåller inga laster, lastmodeller eller dimensoneringsmodeller för väg- och broräcken. Det kan vara en följd av att CEN valt att behandla dimensionering och utformning av sådan i standardserien EN 1317.

Det som står i EN 1991-2, 4.7.3.3 avser laster till konstruktioner som räcken utprovade enligt EN 1317 är infästa i.

SS-EN 1991 – LastkombinationerBKR

Fråga: Jag undrar hur man ska kombinera nyttig last med fordonslaster. Säg att vi har ett gårdsbjälklag med nyttig last 4 kN/m2. Dessutom har vi som förutsättning att på körbar del av gårdsbjälklaget finns last från fordon enligt EKS 6.3.3.2(1) och figur C-1. Min fråga är då om man måste lägga in ytlasten 4kN/m2 samtidigt som man lägger in fordonslasten? Ska man se både ytlasten och fordonslasten som nyttig last? Är alltså båda lasterna huvudlast samtidigt? Eller ska man kontrollera lasterna var för sig? Jag tänker att det inte kan finnas fullt med människor samtidigt som det finns fordon. Hur ska man tolka detta och hur ska man kombinera lasterna?

Fråga angående nyttig last och snö: Jag har läst svar/frågor på från Eurokodhelpdesk som finns på www.eurokoder.se och förstår inte hur jag ska tolka det. Ska jag kombinera snö och nyttig last I fallet med vårt gårdsbjälklag?

Svar: Fordonslast och nyttig last ska inte kombineras. Nyttig last och snölast ska inte heller kombineras.
Publicerad 2017-05-30

SS-EN 1991 Nationella val för parkeringshus

Fråga: Vilka nationella val finns för parkeringshus med personbilar?
Enligt SS-EN 1991 kan jag utläsa att qk ska väljas i intervallet 1,5 - 2,5 kN/m2. Hur ska jag tolka detta?

Svar: Frågan avser nationellt val till stycke 6.3.3.2(1) i SS-EN 1991-1-1. I EKS anges följande:

Stycke 6.3.3.2(1) tabell 6.8

11 § De rekommenderade värdena på nyttig last ska tillämpas i kategori G och F.

Det rekommenderade värdet i tabell 6.8 för parkeringsgarage är 2,5 kN/m2. I eurokoderna är vanligtvis det rekommenderade värdet det i ett intervall understrukna värdet, se ANM. 3 under tabellen för fallet med parkeringsgarage.

SS-EN 1991-1-1

SS-EN 1992-1-1 - Skarvlängd

Fråga: Ekvation 8.5 är en begränsning av produkten α2, α3 och α5 som gäller för beräkning av förankringslängd enligt Kap 8.4.4

Vid beräkning av skarvlängd enligt Kap 8.7.3 (1) hänvisas till Tabell 8.2. Men gäller begränsningen enligt EKV 8.5 även i skarvlängdsfallet?

Svar: Huruvida EKV (8.5) ska gälla även vid skarvning är oklart.

I 8.7.3 (1) står att α1, α2, α3 och α5 bestäms enligt Tabell 8.2. Faktorerna beskrivs i 8.4.4 (1), tillsammans med begränsningen enligt ekvation (8.5). Man kan då tolka det som att beskrivningen inklusive ekvation (8.5) gäller även vid skarvning. En annan tolkning är att hänvisningen i Kap 8.7.3 endast gäller tabell 8.2, inte det övriga som står i 8.4.4 (1), d.v.s. inte EKV (8.5).

Frågan bör avgöras av berörd myndighet.

Eftersom det bara hänvisas till Tabell 8.2 och inte till avsnitt 8.4.4(1) borde inte uttrycket (8.5) gälla för tillämpningen enligt 8.7.3(1) . Hade motsvarande stått i t.ex. en tabellnot hade slutsatsen blivit en annan. En annan sak som talar mot tillämpning av uttryck (8.5) är att α3 är något modifierad.

Det är dock inte möjligt att utan en noggrannare utredning avgöra vad som gäller. För att kunna göra det behöver frågan tas upp med CEN, Europrean Committee for Standardization.

SS-EN 1991-1-1 - Reduktionsfaktor αn

Fråga: Gäller reduktionsfaktorn αn för nyttig last även om egentyngden är huvudlast i 6.3.1.2 (10)?

För ett flervåningsbostadshus blir den nyttiga lasten ungefär hälften (ca 0,7 × 0,7) om man har nyttig last som huvudlast jämfört med egentyngd som huvudlast.

Svar: αn behandlas i 6.3.1.2(11), inte (10) som behandlar α(reduktion p.g.a. area). Den permanenta lasten kan aldrig vara huvudlast enligt standarden i ekvation 6.10b i SS-EN 1990. Men jag antar att du menar när man använder ekvation 6.10a där det inte finns någon egentlig huvudlast. Enligt 3.3.2(2)P får man bara använda en av faktorerna ψ och αn när nyttig last är samverkande last. αn är ju en funktion av ψ och aldrig lägre än ψ, så den nyttiga samverkande lasten kan aldrig bli lägre än ψ × qk.

Däremot kan ju den nyttiga lasten enligt Boverkets EKS även reduceras med αa enligt 6.3.1.2 (10).

Publicerad 2017-10-19

SS-EN 1991-1-1 – Nyttig last

Fråga: Vilken belastning (Newton per kvadratmeter) skall ett rum i en bostad, lägenhet/villa, tåla?

Svar: Karakteristisk last på ett bostadsbjälklag är en utbredd last på 2,0 kN/m2 och en punktlast på 2,0 kN. (Se Boverkets författningssamling BFS 2013:10-EKS 9,Avd C, kap 1.1.1, §8) . Den dimensionerande lasten (för säkerhet mot brott) är dock större eftersom både denna och egenvikten ska räknas upp med lastfaktorer i lastkombinationer. Se SS-EN 1990 och dess bilaga A1 och tillämpningsreglerna till denna enligt EKS 9.

SS-EN 1991-1-1 och SS-EN 1993-1-1 – Dragstag av stål

Fråga 1: Första frågan är angående dragstag i stål. I våra limträstommar använder 8.8 stål i våra treledstakstolar och vindkryss. Vilken partialkoefficient är det man ska använda för dragna stänger? (γM0 eller γM2)

Fråga 2: Andra frågan gäller läktare. För nyttiglast står det i SS-EN 1991-1-1 att ståplatsläktare tillhör kategori C5, 5 kN/m2. Sittplatsläktare finns inte nämnd i någon kategori, men om man läser vad det står i C2 så är det t.ex. teatrar, biografer och föreläsningssalar. Kan man tolka att sittplats ska vara i denna kategori? Lasten är då 3-4 kN/m2 enligt tabell 5.2. Tittar man i EKS 9 är nationellt val gjort och lasten är 2,5 kN/m2. På sidan18 längst ned står det också att Kategori C2 hänförs till kategori C5 om de fasta sittplatserna utan betydande svårighet kan avlägsnas och om utrymmet är av sådan art att stora folksamlingar kan förekomma. Sittplatserna kan vi föreskriva att de inte får tas bort, angående stora folksamlingar så kan dessa ske i trapporna upp på läktaren, men de är endast 1,2 meter breda. Av den anledningen skulle man vilja ha lite mer last än 2,5 kN/m2. I dagsläget räknar vi alla läktare med 5 kN/m2. Känns dock som att sittplats borde vara lägre. Kan du ge något svar på detta?

Svar 1: Fråga1 gällande eurokoden SS-EN 1993-1-1

För dragna ståltvärsnitt gäller γM2

Först bör sägas att 8.8 inte är ett konstruktionsstål utan en hållfasthetsklass för skruvar. Om det är ett dragstag med gängade ändar så bör bärförmågan för de gängade ändarna verifieras som för en dragen skruv. Dessutom bör man verifiera flytning på bruttoarean d v s med 0,2-gränsen 640 MPa.

Svar 2: Fråga 2 gällande SS-EN 1991-1-1

Minimikravet är att sittplatsläktare med fasta (inte lätt borttagbara) sittplatser räknas som kategori C2. En trappa i anslutning till bjälklag i kategori C2 ska räknas som kategori C3 enligt EKS, Avd. C, kap 1.1.1, § 9, d.v.s. en utbredd last och punktlast på 3,0 kN/m2 resp. kN.

Byggherren kan dock alltid kräva att en högre kategori ska tillämpas, t.ex. om denne vill öppna för möjligheten att göra om sittplatsläktaren till en ståplatsläktare i framtiden utan att behöva förstärka.

I SS-EN1991-1-1 står det dessutom i kap 6.3.1.2(2) att värdena där så krävs bör ökas vid dimensioneringen (T.ex. för trappor och balkonger beroende på användningsområde och på dimensioner.)

SS-EN 1991-1-1 – Laster för trappor

Fråga: Har en fråga om laster för trappor. Vad står det i SS-EN 1991-1-1 kap 6.3.4.2 punkt 7 om lastvärden för takstegar och gångbryggor? Hur beräknas man laster för trapport som endast används som utrymningsväg? Undrade även om man ska kombinera den nyttiga lasten med snölast för gångbryggor på taket för utrymningsväg, samt ifall man ska kombinera lasterna för människor med snölast för balkonger?

Svar: Trappor och gångbryggor som används som utrymningsväg bör enligt kap 6.3.4.2(7) dimensioneras för laster enligt tabell 6.2. D.v.s. lasten beror på användning av det angränsande utrymmet som det är utrymningsväg för. Lastvärden ges av EKS 9, kap 1.1.1, §§ 8-9.

Generellt gäller för eurokoder att laster som av fysiska eller funktionella orsaker inte kan uppkomma samtidigt inte behöver beaktas samtidigt i en lastkombination (Se SS-EN 1990 A1.2.1 (1)). När det gäller att kombinera snölast och nyttig last så anges det i kap 3.3.2 för yttertak att snölast och nyttig last inte behöver kombineras. Detta gäller främst tak av kategori H (endast åtkomliga för normalt underhåll och reparation), vilket det dock inte kan vara fråga om då man har en utrymningsväg över taket. Däremot bör det ju gälla även om man har en enkel takstege/takbrygga som inte är någon utrymningsväg på taket.

För balkonger ges ingen vägledning alls utöver den generella regeln i SS-EN 1990, A1.2.1. Det beror alltså på förutsättningarna i det aktuella fallet, och konstruktören måste själv göra en bedömning av om det kan anses relevant att kombinera lasterna eller inte. En liknande bedömning bör även göras i de fall man har en utrymningsväg som går över ett yttertak.

SS-EN 1991-1-1 – Nyttig last för läktare

Fråga: Vi är två studenter som har som examensarbete att konstruera en läktare till en fotbollsarena. Vi skall konstruktionsberäkna efter eurokoderna men har en liten fundering vad det gäller dynamiska laster.

När det kommer till nyttig last för läktaren så finns det två tabeller i SS-EN 1991-1-1, kapitel 6.3, tabell 6.1 och tabell 6.2.  Kategori C5 gäller ju för ståplatsläktare och rekommenderat värde på nyttiglast för kategori C5 är 5,0 kN/m2.

Vår fråga är då om man i dessa 5,0 kN/m2 tar hänsyn till dynamiska laster eller är det något vi måste ta med i våra beräkningar? Vi har fått som rekommendation att man kan dubbla den nyttiga lasten för att ta hänsyn till dynamiska laster.

Svar: Lasterna enligt tabell 6.1 - 6.3 i SS-EN 1991-1-1 är kvasi-statiska laster, d.v.s. de innefattar dynamiska effekter av "normal användning", se kap 6.1(1). Om det däremot kan uppkomma resonanseffekter från synkroniserad rörelse av människor, dans eller hopp bör man enligt kap 2.2(3) anpassa lastmodellen och genomföra en dynamisk analys av systemet. En dynamisk analys beaktar även bärverkets egenskaper och en sådan kan inte generellt ersättas med användning av dynamiska förstoringsfaktorer.

SS-EN 1991-1-1 - Flyttbara väggar

Fråga: Vi har en undring angående vilken typ av vägg som egentligen avses i SS-EN 1991-1-1 6.3.1.2 (8)?

I skriften "Fråga svar inom eurokoder version 2 september 2012" står det på sida 14:

”Ordet ”flyttbar” i eurokod bör tolkas i bokstavlig mening, d.v.s en vägg som i princip kan flyttas som en möbel och det kan inte en gipsvägg. Det står ingenstans att last av flyttbara väggar får reduceras med hänsyn till belastad area eller antal belastade våningar och då är det – med vanlig tolkning av regler – inte tillåtet. Man får inte hantera en last som t.ex. egentyngd i brottgränstillståndet och som nyttig last i något annat gränstillstånd. Att vanliga gipsväggar eller andra mellanväggar inte ingår i den nyttiga lasten utan ska hanteras som en permanent last framgår av bl.a. 3.2(2) och 5.1(2) & (3) i SS-EN 1991-1-1.”

Under SS-EN 1991-1-1 6.3.1.2 (8) finns dessa värden för utbredd last baserad på den flyttbara väggens egentyngd per meter:

  •  för flyttbara skiljeväggar med egentyngden =< 1,0 kN/m vägglängd: qk =0,5 kN/m2;
  • för flyttbara skiljeväggar med egentyngden > 1 =< 2,0 kN/m vägglängd: qk =0,8 kN/ m2;
  •  för flyttbara skiljeväggar med egentyngden > 2 =< 3,0 kN/m vägglängd: qk =1,2 kN/ m2.

Det vi funderar på är vad det egentligen är för skiljeväggar som kan ”flyttas som en möbel” då de väger upp till 300 kg per meter?

Det vi skulle kunna tänka oss är höga blockväggar, men då är lasten å andra sidan koncentrerad längs en tydlig linje (då de löper längs en skena). Det känns främmande att lägga på det som en schablonmässig utbredd last över hela bjälklaget. Det som däremot inte känns helt främmande är att man t.ex. i ett kontorshus skulle kunna tänka sig lättväggarna som en variabel last då väggindelningen och mängden väggar troligen kommer att förändras en del över tiden och även variera mellan ytor och våningsplan. Man skulle även kunna göra area-reduktion för respektive våningsreduktion då det är osannolikt att det är c:a en halv löpmeter vägg per m2 golvyta i snitt. Samma resonemang kan göras angående gaffelreduktion av lättväggarnas egentyngd i olika lastkombinationer om den läggs på den nyttiga lasten.

Men om tolkningen av ”flyttbar” är att skiljeväggen är ”flyttbar som en möbel” så hittar inte jag heller något ytterligare stöd för att man skulle kunna lägga egentyngden för vanliga gips- och stålregelväggar på den nyttiga lasten.

Svar: I den återgivna texten står det: ”Det står ingenstans att last av flyttbara väggar får reduceras med hänsyn till belastad area…” men å andra sidan adderas lasten i SS-EN 1991-1, 6.3.1.2 (8) till den nyttiga lasten, som i sin tur får reduceras enligt (10) och (11) med αA respektive αn. ”

Eurokoden är inte helt tydlig på denna punkt. Sverige ska dock undersöka hur andra länder, t ex de nordiska, hanterat denna fråga. Det citerade svaret gäller tillsvidare. Synpunkterna är bra och bör beaktas vid framtida revideringen av SS-EN 1991-1-1.

Eurokodhelpdesk kan inte svara på frågan: ”Vad är det för skiljevägg som kan flyttas som en möbel och väger 300 kg/m?”

SS-EN 1991-1-1 – Nyttig last för flervåningshus

Fråga: Jag håller på att göra en lastnedräkning av pelardäck för att dimensionera grunden (fundament). Jag har ett sexvåningshus där den nyttiga lasten är huvudlast. Kategorin för de olika våningarna är AA, CC, FF. Detta gör att jag få inte lov att utföra någon reducering med αn (SS-EN 1991-1-1, kap 6.2.2(11)).

Sedan läser jag i SS-EN 1991-1-1, kap 3.3.1 (2) om nyttig last att man ska se hela den nyttiga lasten som en enda last. Detta gör ju att jag inte kan göra reduceringen av samverkande laster enligt SS-EN 1991-1-1 tabell A1.2(B). Det enda som kvarstår är att göra reduceringen för arean enligt SS-EN 1991-1-1, kap 6.2.1 (10). Får denna göras för varje våning?

I den tidigare normen så satte man en våning till huvudlast för den nyttiga lasten, de andra multiplicerades med 1.0 om jag minns rätt. Som jag ser det så har jag inte möjligheten att göra någon liknande reduktion med denna norm då mina nyttiga laster inte hamnar i samma kategori.

Svar: I SS-EN1991-1-1, kap 6.2(4), anges att från en enskild kategori kan reduceras. Om detta ska tolkas som att man bara får göra det för bara en enda kategori eller om man avser varje (tillämplig) kategori är inte helt klart. Och den engelska texten ger heller inte mer information om detta. Har även studerat en del bakgrunddokumentation och inte heller där behandlar man detta. Frågan om αn och αA får kombineras har diskuterats livligt och Boverket har i EKS infört text som säger att de får kombineras i ULS för kategorierna A och B:

9a § Reduktionsfaktorer för nyttig last, αA och αn, kan kombineras i lastuppsättning B för kategorier A och B när lasteffekten bedöms enligt ekvation. 6.10b, tabell B-3. Faktorerna kan även kombineras i lastuppsättning C för kategorier A och B när lasteffekten bedöms enligt ekvation. 6.10 tabell B-4. (BFS 2013:10).

Om det i ditt fall rört sig om samma A-kategori på alla plan skulle man enligt EKS-texten kunna reducera lasten från varje våningsplan med αA och dessutom den totala lasten från planen med αn. I ditt fall finns inte möjligheten att använda αn, men det vore orimligt hårt om man då inte heller kan reducera lasterna med αA. Observera dock att αA inte kan tillämpas på kategori F, enbart kategori A till E enligt ANM 1 i kap 6.3.1.2(10).

Reduktion för area kan göras för större areor eftersom sannolikheten för en hög lastintensitet per betraktad kvadratmeter bjälklagsarea minskar med ökande area. Sambandet avser dock den rumsliga indelningen i ett byggnadsverk, vilken inte nödvändigtvis överensstämmer med den bärande strukturen hos byggnaden. Man bör därför vara konservativ i sina bedömningar om man reducerar nyttig last med hänsyn till area.

Det finns inget i SS-EN 1991-1-1 som hindrar att man gör reduktion för area i flera våningsplan oavsett om det är samma eller olika kategori av lokal i de olika våningsplanen. Reduktion kan bara göras för kategorier A-D.

SS-EN 1991-1-1 – Nyttig last terrass

Fråga: Har ett ombyggnadsprojekt där en ny ljusgård/terrass ska byggas. För vilken nyttig last jag ska göra beräkningen? Uteplatserna är inte offentlig och brandbeskrivningen anger att det högst får vara 100 personer som kan utnyttja platsen (10 × 7 m). Jag anser att det ska vara samma last som för kontoret plus överbyggnaden för terrassen.

Svar: Överbyggnaden för terrassen borde vara permanent last som ingår i egentyngden.

Nyttig last indelas i olika kategorier i tabell 6.1 i SS-EN 1991-1-1. Tabell 2 ger intervall för nyttiga laster för de olika kategorierna. I 6.3.1.2(2) ges att nyttiga lasten för trappor och balkonger kan behöva ökas beroende på användningsområde. För tillämpning i Sverige ges nyttiga laster i EKS avdelning C, 8 och 9 §§.

Antal personer som får vistas på uteplatsen enligt brandbeskrivningen är inte styrande för storleken på den nyttiga lasten som beror både på antal person och på inventarier som kan förväntas finnas. Som delaktig i projektet tror jag du har bäst insikt i hur platsen skall användas och vilken kategori som är lämpligast. Byggherren borde också kunna bistå med tankar om projektet.
Publicerad 2016-10-21

SS-EN 1991-1-1 – Last för gårdsbjälklag

Fråga: Jag funderar på hur man bör räkna laster för gårdsbjälklag enligt Eurokoden. Nyttig last på bjälklaget har jag svårt att passa in under någon av kategorierna A-K.  Ska jag räkna det som ett bostadsbjälklag då det ligger i anslutning till flerbostadshus trots att det är utomhus? Om delar av bjälklaget är tillgängligt för fordonstrafik, hur gör jag då?

Svar: Begreppet gårdsbjälklag finns inte i SS-EN 1991-1-1. BKR kan användas som ledning för bedömning av både utbredd och koncentrerad last och med den ledningen går det säkert bra att hitta någon kategori i tabellerna 6.1 och 6.2. Om bjälklaget kan bli utsatt för fordonslast så gäller tabellerna F och G.

De som projekterar bygget och vet vilken verksamhet det är avsett för har de bästa förutsättningarna att göra en bra bedömning. Räkna inte gårdsbjälklaget som ett bostadsbjälklag!

SS-EN 1991-1-2 

SS-EN 1991-1-2 - Olyckslast på Trappor och Trapphus

Fråga: Jag behöver hjälp med att tolka vilka olyckslaster som gäller för dimensionering av trapphus och dess ingående komponenter (trapphusväggar, dörrar, trapplöp, vilplan, räcken m.m.). I Eurokoden eller rättare sagt i EKS 9 och tillämpning av SS-EN 1991-1-2 står följande text:

3 § Byggnadsdelar som krävs för att upprätthålla funktionen hos en brandcellsgräns eller annan avskiljande konstruktion ska utformas så att funktionen erhålls under avsedd tid. Ett trapphus som utgör den enda utrymningsvägen i en byggnad ska alltid dimensioneras för olyckslast. Se även SS-EN 1991-1-7. (BFS 2013:10).

Medför detta att samtliga ingående komponenter i ett trapphus som utgör enda utrymningsvägen ska dimensioneras för olyckslast på grund av en ospecificerad orsak Ad = 34 kN/m2?

Svar: Detta är i första hand en konstruktionsfråga och inte en brandfråga. Anledningen att det överhuvudtaget står om detta i EKS "brandavsnitt" är att det är brandkonsulten som är den som känner till om trapphuset är den enda utrymningsvägen. Själva dimensioneringen är dock en konstruktionsfråga.

Tyvärr har skrivningarna i såväl tidigare BBR som i EKS 9 varit ganska oklara. Frågan är vilken olyckslast som man ska dimensionera för. Trapphus brukar väl normalt ligga så att påkörningsrisken är begränsad. Vad gäller explosion borde detta inte vara aktuellt i ett bostadshus om det inte finns stadsgas i huset. Trots detta vet jag att många ändå schablonmässigt använt explosion för att dimensionera ett sådant trapphus för olyckslast. Beroende på fönsteröppningar och andra tryckavlastande anordningar kan man då ofta komma ned i hanterbara laster. Detta för att slippa dimensionera för en ospecificerad olyckslast på 34 kN/m2.

Dock har man i förslag till EKS 10 som nu är ute på EU-anmälan något förtydligat det hela. EKS 10 kommer med största sannolikhet att antas och snart vara i kraft. Jag väljer därför att klippa in avsnitten nedan:

BILD: 3

BILD: 4

Skrivningarna ovan tolkar jag som att man alltid ska dimensionera väsentliga bärverksdelar minst för denna ospecificerade olyckslast d v s 34 kN/m2. Om man däremot har en specificerad olyckslast som ger större lasteffekt än den ospecificerade ska trapphuset dimensioneras för denna större lasteffekt.

När det gäller kraven avser de väggar, bjälklag och dylikt. Det är rimligt att även dörrar till ett trapphus ska klara kravet på last. Syftet med trapphuset är att det måste gå att utrymma genom det även i händelse av en explosion och efterföljande brand i en brandcell som gränsar mot trapphuset.

SS-EN 1991-1-3

SS-EN 1991-1-3 - Ekvation 5.8

Fråga: I SS-EN 1991-1-3 (sidan 20) och EKV. 5.8 hittar du sambandetw= (b1+b2)/2h ≤ γh/Sk.

Vilket värde ska man välja om följande villkor inte uppfylls:

  • Om γh/Sk > (b1+b2/2h) väljs (b1+b2/2h)?
  • Om (b1+b2/2h) > γh/Sk väljs γh/S?

Svar: Tolkningen är rätt och i ord säger den att μska vara lika med (b1+b2)/2h men dock inte större än γh/Sk.

SS-EN 1991-1-3 Snöröjning

Fråga: I kapitel 5.2 (5) anges att "Om man kan förutse att snön på taket avlägsnas eller omfördelas genom snöröjning bör takkonstruktionen dimensioneras för sådana lastbilder" och i EKS anges ett allmänt råd kopplat till detta att "En lastbild som tar hänsyn till snöröjning bör beaktas om den inte täcks in av de formfaktorer som ges i standardens kapitel 5.3 och om den kan ha avgörande betydelse för bärverkets bärförmåga eller stabilitet." Det innebär att man bör dimensionera för effekterna av snöröjning, men det säger ingenting om huruvida man kan på grund av snöröjning underlåta sig att dimensionera för "naturligt orsakad lastfördelning". Alltså bortse från snöfickor i dimensioneringen då beställaren har en snöskottningsplan.

Svar: Dimensionering med hänsyn till en särskild lastbild för snöröjning innebär att ytterligare en lastbild, förutom de lastbilder, t.ex. naturliga snöfickor, ska beaktas. En byggnad har en livslängd på minst 50 år, och det är omöjligt att förutse hur snöröjning mm kommer att fungera på lång sikt, t.ex. om byggnaden byter ägare. Baskravet är alltså att en byggnad alltid ska dimensioneras för "naturligt orsakad lastfördelning" och därutöver för en lastbild för snöröjning "om den kan ha avgörande betydelse för bärverkets bärförmåga eller stabilitet".

SS-EN 1991-1-3 Tabell 7.4a

Fråga: Jag har frågor angående tabell 7.4a i SS-EN 1991-1-3 i zonerna I & J vid 5° till 15°.

Fråga 1. Är det tänkt att interpoleringen skall vara mellan -1.0 och +0.2 & +0.0 och -0.6? Logiskt sett borde det vara interpolering mellan positiva tal och negativa tal men placeringen av talen i tabellen är förvirrande.

Fråga 2. Eftersom I zonen alltid kommer att vara negativ kommer J zon aldrig att ha ett positivt värde om man följer Anm.1 som säger att man inte får blanda + & - på samma takhalva. Är tabellen korrekt eller finns det felaktigheter i den?  

Svar: Placeringen av positiva och negativa tal i tabellen är förvirrande. Men av Anm. 2 till samma tabell framgår det att man bara ska interpolera linjärt mellan värden med samma tecken.

SS-EN 1991-1-3 Snölast

Fråga: Jag har en fråga angående snölast och farlig lastställning. Jag har tolkat det som att en variabel huvudlast ska sättas till noll om den är gynnsam. Jag har klippt in en bild från EKS9 här nedanför för att visa var jag har fått det ifrån.

(Figur 1991_1 är inte tillgänglig)

Här nedanför har jag klipp in ett "utsnitt" från SS-EN 1990, där det står att snölast är en variabel last.

(Figur 1991_2 är inte tillgänglig)

Om man har en kontinuerlig balk som ska dimensioneras för snölast, ska snölasten då placeras i den farligaste lastställningen som kan uppkomma?

Vid skarvning med Gerber-system anser jag att det blir livsfarligt om man ska förutsätta att bärverket håller för snölasten så länge snön ligger jämnt och fint utbredd över hela Gerber-systemet. Vårt beräkningsprogram tar inte hänsyn till detta, det är därför jag frågar.

Svar: För en byggnad måste man tänka sig att snön faller i samma mängd över hela byggnaden. Sedan påverkar vindförhållanden, taklutningen, takformen, lokala hinder mm hur snön fördelar sig över taket. De formfaktorer som anges i SS-EN 1991-1-3 anger hur man bör ta hänsyn till den normala omfördelning av snön som sker av dessa orsaker för vanliga takformer. Dock täcks inte alla möjliga takkonfigurationer in. Snölasten är därför knappast betraktas som en fri last (fri fördelning i rummet) på samma sätt som t.ex. nyttig last på bjälklag, utan de olika lastbilder som fås betraktas som bunden last. Utöver naturens påverkan så kan ju andra faktorer än fördelningen av snön; t.ex. snöröjning på taket.

I BFS 2013:10 EKS 9 kap 9-1-1 anges: 

11 §

Men det innebär att en eller flera lastbilder, som kan betraktas som bundna, läggs till.

I SS-EN 1990 3.2(5)P står:

De valda dimensioneringssituationerna ska vara tillräckligt stränga och varierade så att alla förhållanden täcks in som rimligen kan förutses uppkomma när bärverket uppförs och används.

Liknande formuleringar förekommer på ett flertal andra ställen i både SS-EN 1991-1-3 och SS-EN 1990.

På längre sikt kan ju utformning av taket eller dess närmaste omgivning göra att förutsättningarna, och därmed lastbilderna förändras. I de fall man har en takkonstruktion som är känslig för hur snön fördelar sig bör man tänka igenom om taket klarar sig om man t.ex. börjar (eller slutar) snöröja, sätter upp en ventilations-huv som ger lokal snöansamling, bygger en hög angränsande byggnad och dylikt. Hur stor hänsyn man ska ta till möjliga framtida ändrade förutsättning är det upp till byggherren att bestämma, såvida inte minsta förändring medför en omedelbar risk.

Som konstruktör/byggherre måste man göra vissa val. Om man väljer en statisk modell som förutsätter en viss lastfördelning för att fungera måste man försäkra sig om att en sådan lastbild alltid föreligger. När det gäller snölast är det i de allra flesta fall så att man inte kan anta att det alltid föreligger en jämt utbredd last eller en last med sådan fördelning som antas i beräkningarna av snittkrafter och moment. Om man ändå väljer att utföra en takkonstruktion som utsätts för snölast med Gerber-skarvar kan man inte anses uppfylla kraven i föreskrifterna om man inte har dimensionerat konstruktionen för att klara även andra lastfördelningar. Det kan även vara möjligt att välja Gerber-skarvar om man kan visa att linverkan eller membranverkan kan ta hand om alternativa lastfördelningar.

En lastbild som tar hänsyn till snöröjning bör beaktas om den inte täcks in av de formfaktorer som ges i standardens avsnitt 5.3 och om den kan ha avgörande betydelse för bärverkets bärförmåga eller stabilitet.

SS-EN 1991-1-3 Snöfickor

Fråga: Jag har ett fall där jag skall kontrollera snölasten på en delvis skymd byggnad. Byggnaden skyms av ett skärmtak. Hur ska man bedöma den snöficka/snölast som bildas på den låga delen?

Den första figuren visar min uppbyggnad i elevation med en hög byggnad med en låg utbyggnad och ett skärmtak. Den andra figuren visar min bild av hur lasterna borde fördelas. (Figurer ej tillgängliga)

Svar: För svaret förutsätts att varken skärmtaket eller de andra taken har någon lutning mot/från varandra. Eventuellt lutar de i planet vinkelrätt mot denna elevation. Det innebär att det bara är fråga om snöficka på grund av vinddrift, inte på grund av snöras. Eftersom eurokoden inte ger några direkta anvisningar om hur detta fall ska betraktas så blir det fråga om en tolkning av reglerna.

Med tanke på att det är fråga om ett skärmtak och inte ett tak på annan byggnad kan det tänkas att skärmtaket i framtiden kommer att tas bort eller ändra utformning. En dimensionering av taket på den lägre byggnadsdelen där man antar att skärmtaket inte fanns, ger en tolkning på säker sida som inte heller är orimlig. D.v.s. det dimensioneras för snöficka på lägre beläget tak på grund av vinddrift (Ekv. 5.9) i SS-EN 1991-1-3. För att bestämma lastvärdet intill husväggen och utbredningen på snöfickan på grund av vinddrift på skärmtaket används ekvation 5.9 då skärmtaket antas fortsätta in till husväggen. Därefter bestäms lastvärdet vid skärmtakets kant genom interpolering.

Fråga: Jag har två frågor angående snöfickor där jag skulle behöva lite vägledning:

1. Hur beräknar man snöfickor på underliggande tak när man har förhöjda väggar på det övre taket? Vilket beräkningssätt ska man använda sig av i de tre olika exempel som finns i bilaga 1?

2. I BKR fick man reducera snöfickor enligt handboken "Snö och Vindlast BSV 97" men i Eurokoden kan jag inte hitta något som säger att man får reducera snöfickor. Finns det någon liknande handbok som beskriver hur man får reducera snöfickor på samma sätt inom Eurokoden? Skillnaderna mellan snöfickorna i Eurokoden och BKR blir väldigt stora som ni kan se i Bilaga 2. 

(Figurer är inte tillgängliga i denna fråga)

Svar: Modellen i Eurokoden bygger ju på att man har två tak på olika nivåer som det blåser på och där det inte finns några hinder som gör det svårt för snö från det övre taket att blåsa ner på det nedre. Har man ett 2 m högt hinder i form av bröstning gäller inte dessa förutsättningar.

Om man betrakta bröstningen på det övre taket som ett lokalt snöhinder på det övre taket får man μ2 = 2*2/2 = 2 intill bröstningen. Om snöns tunghet sätts till 2,0 motsvarar det en snöficka som är lika hög som bröstningen, d.v.s. snö från det övre taket blir kvar intill hindret vid snödrift och kommer inte att belasta det undre taket. Det mest logiska är att om höjden på bröstningen är lika med eller högre än snödjupet vid ett lokalt hinder, bortser man från drivsnö från det taket på det nedre. Väggen behandlas som ett lokalt hinder för snön på det nedre taket (Ekv. 6.1). Är bröstningshöjden däremot inte högre än snödjupet på det övre taket (0,8*S/ɣ snö) bör man använda sig av ekvation 5.8. Vid värden däremellan får man göra en bedömning av vad som kan vara rimligt och på säker sida.

Eftersom frågeexemplen inte motsvarar beräkningsmodellen för flernivåtak bör någon annan mer lämplig modell användas. I SS-EN 1991-1-3 finns en beräkningsmodell för snölast intill hinder i form av en skärm (Fig. 6.1). Den modellen stämmer bättre överens med byggnaden i frågeställarens situation.

SS-EN 1991-1-3 Snöröjning

Fråga: I avsnitt 5.2 (5) anges att "Om man kan förutse att snön på taket avlägsnas eller omfördelas genom snöröjning bör takkonstruktionen dimensioneras för sådana lastbilder" och i EKS anges ett allmänt råd kopplat till detta att "En lastbild som tar hänsyn till snöröjning bör beaktas om den inte täcks in av de formfaktorer som ges i standardens avsnitt 5.3 och om den kan ha avgörande betydelse för bärverkets bärförmåga eller stabilitet." Det innebär att man bör dimensionera för effekterna av snöröjning, men det säger ingenting om huruvida man kan på grund av snöröjning underlåta sig att dimensionera för "naturligt orsakad lastfördelning". Alltså bortse från snöfickor i dimensioneringen då beställaren har en snöskottningsplan. Jag har blivit ombedd att utreda detta av min beställare.

Svar: Dimensionering med hänsyn till en särskild lastbild för snöröjning innebär att ytterligare en lastbild, förutom de lastbilder, t.ex. naturliga snöfickor, ska beaktas. En byggnad har en livslängd på minst 50 år, och det är omöjligt att förutse hur snöröjning mm kommer att fungera på lång sikt, t.ex. om byggnaden byter ägare. Baskravet är alltså att en byggnad alltid ska dimensioneras för "naturligt orsakad lastfördelning" och därutöver för en lastbild för snöröjning "om den kan ha avgörande betydelse för bärverkets bärförmåga eller stabilitet". 

SS-EN 1991-1-4 Formfaktor för vindlast

Fråga: Jag har frågor angående SS-EN 1991-1-3, tabell 7.4a och snözonerna I & J vid 5° till 15°.

Fråga 1:

Är det tänkt att interpoleringen skall vara mellan -1.0 och +0.2 samt +0.0 och -0.6? Logiskt sett borde det vara interpolering mellan positiva tal och negativa tal men placeringen av talen i tabellen är förvirrande.

Fråga 2:

Eftersom snözon I alltid kommer att vara negativ kommer snözon J aldrig att ha ett positivt värde om man följer ANM.1 som säger att man inte får blanda (+) och (-) på samma takhalva. Är tabellen korrekt eller finns det felaktigheter i den?

Svar: Det framgår tydligt av tabell och fotnoter hur den ska läsas och hur en eventuell interpolation bör göras. Placeringen av positiva och negativa tal i tabellen är förvirrande, men av ANM. 2 till samma tabell framgår det att man bara ska interpolera linjärt mellan värden med samma tecken. 

SS-EN 1991-1-3 – Kranlast och säkerhetsklass

Fråga: Hur skall uppräkningen av kranlaster med säkerhetsklasser ske?

Enligt SS-EN 1991-3, tabell A.2.2, skall γg.sup pemanenta och γQ,sup variabla kranlaster väljas till 1,35 och beräknas enligt SS-EN 1990. EKS har valt att ersätta tabell A1.2(B) ekv 6.10b i SS-EN 1990. Där har γQ,1 och γg ersatts av ett fast värde multiplicerat med säkerhetsfaktorn. Vad är det som gäller?  

Följdfråga:Hur ska γd användas: är det 1,35 × γd, 1.5 × γd eller är det 1.35 oreducerad som skall användas?

Svar: I SS-EN 1993-6 kap 2.3.1 (3) anges att bilaga A till SS-EN 1993-1-1 ska tillämpas. Detta har inte ändrats i EKS 10 och gäller alltså.

Svar på följdfråga;

γd ska vara 1,35 × d, vilket dock inte framgår av EKS.
Publicerad 2016-09-26

SS-EN 1991-1-4 

SS-EN 1991-1-4 Avsnitt 5

Fråga: I avsnitt 5 finns ett intervall beskrivet som säger att -1,5 ≤ X/Lu < 0 och 0 ≤ z/Le ≤ 2. För att nå ytterlighetsvärdet -1,5 i första uttrycket måste alltså X vara 1,5 × Lu, vilket gör att vi hamnar med huset på plan mark alternativt att huset byggs i luften ovanför krönet av sluttningen. Eller är X = husets höjd till taknock (dvs. lilla x + husets höjd)?

Svar The orography factors C0 (z) and S(z) are defined as:

 

Vmf (z) is the mean velocity profile for different surface roughness.
Vm (z) is the mean velocity profile for hills and escarpments surface roughness. S(z) is a factor that governs the level of change in the velocity depending on the slope of the hills. X is the horizontal distance of the site from the crest. Lu is the length of the upwind shape in wind direction.
Appendix A shows the application of section A5 of the Eurocode.

 Publicerad 2017-10-19

SS EN 1991-1-4 - GC-broar och vindlast

Fråga: Vi har en fråga angående en tolkning i SS EN 1991-1-4. Förut så räknade man vindlast på trafik på en GC-bro (gång- och cykelbro) på 1.5 meters höjd (jfr Bro 2004 21.272) men idag anges lasten i SS-EN 1991-1-4 8.3.1 (5) där ingen area som ska gälla för GC-broar anges – varför?                

Svar: GC-broar utsätts för vindlast på samma sätt som alla andra broar. SS-EN 1991-1-4. kap. 8.3.1 (5) behandlar referensarean för vindlast kombinerad med trafik. I den mån den aktuella GC-bron är dimensionerad för eventuell fordonstrafik (väg/järnväg) är det rimligt att beakta effekten av vind från även denna lasten och då i enlighet med kap 8.3.1 (5) även om det inte specifikt står GC-bro.

Jag tycker svaret bör förtydligas genom att kompletteras med:

Vid bestämning av referensarean för vindlast som kombineras med trafiklast  för en GC-bro som inte belastas med väg eller järnvägstrafik behöver man inte beakta arean av ”trafiklasten” (gång- och cykeltrafikanternas area) utan bara själva arean för bron enligt 8.3.1(4).

SS-EN 1991-1-4 – Vindlast på skärmtak

Fråga: Vill bara fråga om jag förstått eurokoden rätt när det gäller vindlaster på skärmtak och SS-EN 1991-1-4.

Avsnitt 7.3 anger:

”För storleksberäkningar på fundament till skärmtak så skall formfaktorn Cf användas.

För beräkningar av fästelement/infästningar så skall Cp,net användas.”

Stämmer det?

Svar: Tolkningen av SS-EN 1991-1-4 är korrekt.

Fråga: Jag har frågor angående beräkning av vindlast på skärmtak, pulpet, som står intill en byggnad, kloss emot.

Fråga 1: Kan detta anses vara ett fristående skärmtak med fyllnadsgrad ϕ=1?

Fråga 2: Jag har lite svårt att tolka denna formulering:

I avsnitt 7.2.9 Invändig vindlast (2) står att "om minst två sidor av en byggnad (fasader eller tak) vardera har en total öppningsarea som överstiger 30 % av den sidans area bör vindlasten på bärverket inte beräknas enligt detta avsnitt utan enligt 7.3 och 7.4".

Innebär detta att jag måste kombinera utvändig vindlast beräknat enligt avsnitt 7.2.4, med de vindlaster som beräknas enligt avsnitt 7.3? Eller ska jag enbart beräkna taket enligt 7.3, och anse att man täcker in hela den utvändiga vindlasten i detta avsnitt?

Svar:

  1. Sections 7.3 and 7.4 are applicable to free standing canopies.  The blockage ratio ø = 1.0 represents the fully blocked canopy in the downwind direction. The canopy is still treated as a free standing structure and the wind load is calculated from the tables 7.6 and 7.7.
  2. Pressure distribution on canopies attached to permanent buildings depend on the shape and size of the structure, the location of the canopy and the surrounding buildings. Eurocode does not provide concrete rules for calculating wind loads on canopies attached to permanent structures.  However, the attachments to the main building may be treated by considering pressure coefficients from section 7.2.   Section 7.3 (canopy roofs) and section 7.4 (free standing walls) may be used in generating pressure distribution on balconies and other attachments to building structures.
  3. The statement given in section 7.2.9(2) is a simplified model and does not represent real behavior of the structure with attached canopies.  It is recommended that advice from experts dealing with internal wind pressures should be obtained.  Equations 7.1 and 7.2 may be used in calculating internal pressures on the balconies with large openings.
  4. It is not possible to give a concrete solution to question number (2) as one needs more information about the size and location of attachments and the structure.

SS-EN 1991-1-4 – Kommentar i TRVFS 2011:12

Fråga: För SS-EN 1991-1-4 punkt 8.2, vad avser Trafikverket med följande kommentar i TRVFS 2011:12 "..får ange värden, etc...."?

Kan byggherren själv avgöra om det finns behov av beräkna dynamisk respons eller syftar kommentaren till någon av anmärkningarna?

Svar: När vi ansett att en nationellt valbar parameter blir onödigt hårt styrd om den anges i myndighetsföreskriften har vi använt den skrivningen. Bakgrunden är att det är i princip omöjligt att ge dispens från det som anges i föreskriften. Vanligen anger vi krav för dessa val i TRVK Bro. Då kan vi lättare ändra eller medge dispens. För spännvidder under 40 meter behöver man generellt inte beakta dynamisk respons, om inte annat visar sig vara riktigare. Det gäller även för längre spännvidder om man har anledning att anta att det dynamisk respons inte behöver beaktas. Den bedömningen måste göras av någon med sakkunnskap. Om dynamisk respons måste beaktas kan inte EN 1991-1-4 tillämpas och andra modeller måste användas i stället.

När det gäller undantag från  eurokodens principer (P), som enligt avdelning A, 21 § i Boverkets föreskrifter och allmänna råd om tillämpning av europeiska konstruktionsstandarder (EKS) ska betraktas som föreskrifter, kan en myndighet mycket väl göra ett undantag. Enligt subsidaritetsprincipen kan Sverige själv avgöra om t.ex. en princip i en eurokoddel ska betraktas som en föreskrift eller inte.

Boverket har generellt angett att principerna i eurokodsystemet ska betraktas som föreskrifter (om inte annat anges), men vi hade också kunnat ange att de ska betraktas som allmänna råd. Så om vi anger att en princip ska betraktas som ett allmänt råd är det det som gäller på det område som vi har ett bemyndigande att skriva föreskrifter om bärförmåga. När det gäller väg- och järnvägsbroar gick bemyndigandet att skriva föreskrifter över till Transportstyrelsen den 1 juli 2013. Tills dessa att Transportstyrelsen upphävt Trafikverkets och Boverkets regler på detta område gäller nuvarande regler från dessa två myndigheter för väg- respektive järnvägsbroars bärförmåga.

SS-EN 1991-1-4 Tabell 7.4a – Formfaktorer för utvändig vindlast på sadel- och motfallstak

Fråga: Vad blir formfaktorn mellan -5° och -15° för zon I och J i maxfallet?

Formfaktorn är -5°vid +0,2 och -15° vid -0,5 respektive -0,7 och -1,2. Enligt anmärkningen får man bara interpolera mellan värden med samma tecken och för att underlätta interpolering är värdet 0,0 angivet i tabellen. Dock inte i nämnda fall. Enligt andra anmärkningen ändras vindlasten snabbt mellan tryck (+) och sug (-) mellan -5° och 45°, och därför anges både positiva och negativa värden.

Svar: According to table 7.4a in Eurocode, the pressure coefficients cpe,10 for duo pitch roofs with negative pitch angle of -5should be based on values of + 0.2 and – 0.6.  For other pitch angles (ά ˂ -50) only one value of cpe,10 is recommended.  Figure (1) shows the pressure coefficients cpe,10 for different locations on the roof as given in the Eurocode.

Roof pitch angel  α ≤ - 5.0

 

 

SS-EN 1991-1-4 Övergång mellan terrängtyper

Fråga: Ska alla nya byggnader i Uppsala automatiskt beräknas för karaktäristiskt hastighetstryck (qp = EKS 7§ tabell C-10a) i Terrängtyp I enligt tabell A.1? Eftersom Uppsala (nästan alltid) har Terrängtyp I inom en radie av 5 km och övergången från I direkt till III är betydligt vanligare än från I till II.

Svar:

1. Terrain type III (z0 = 0.3) should be used in calculating wind loads on buildings to be erected in the center of Uppsala city.

2. Terrain type II (z0 = 0.05) should be used for buildings to be erected in the surrounding areas around the center of the city.

3. Buildings near the sea, lakes and flat areas without any obstructions may be designed by using terrain type I (z0 = 0.01). However, wind loads should be calculated for wind blowing from different directions (flat areas z0 = 0.01 to build up areas z0 = 0.05 or 0.3 or vice versa). Change in the surface roughness near the open areas should be considered.  An example of change in roughness is presented below.

Example

Change of roughness (Sea to semi-urban terrain)

Mean velocity profiles for homogeneous terrain are derived by assuming that the chosen surface roughness prevails for considerable distance in all directions.  However, in real situations, it is not uncommon to encounter non-homogeneous terrain and the velocity profiles needs to be modified to account for changes in the surface roughness around and near the site.

The method is based on the development of an internal boundary layer (IBL) downstream from a change in the terrain roughness.  The flow is divided into two layers corresponding to the original surface roughness z0,0 = 0.003 and the new surface roughness denoted by z0,III = 0.3

The height of boundary layer h1 increases with downstream distance L.  The new surface roughness introduces an internal boundary layer and the velocity profile in this region is based on z0,III while the old velocity profile follows the external boundary layer.   

Details of the method are not included in this example.

 

SS-EN 1991-1-4 - Formfaktor

Fråga: Hur tolkas texten under stycke 7.2.9 om man inte vill räkna enligt Kap. 7.3. Vilken last ska användas för innerväggar? SBN75 och SBN80 angavs formfaktorn till 4.0. Vilken formfaktor använd idag i beräkningar (formfaktor 0,2 + 0,3 = 0,5 alternativt absoluta värde 0,3 och 0,2)? Byggnaden har normala otätheter.

Svar: According to Eurocde, NOTE  1 and NOTE 2  in section 7.2.9 (6) are applicable to buildings with internal walls.  However the code does not clearly indicate how to use in practice.

 An example showing the calculations  of internal pressures for two different  structures with single  and double cell buildings is included below.

Cpe  -   External pressure coefficient

Cpi -   Internal pressure coefficient
Publicerad 2016-09-26

SS-EN 1991-1-4 – Vindlast för balkongräcken

Fråga: Hur ska man hantera vindlaster enligt SS-EN 1991-1-4 för ett balkongräcke?

1) Klassa balkongräcket som en del av byggnaden och tillämpa tabell 7.1?

2) Klassa balkongräcket som en fristående skärmvägg och tillämpa tabell 7.9?

3) Klassa balkongräcket som en fristående skärmvägg och tillämpa tabell 7.9 men reducera formfaktorn med värdet enligt tabell 7.1 (på grund av att tryckfördelningen mot byggnaden ger upphov till minskad tryckskillnad och således minskad last)?

4) Klassa balkongräcket som en fristående skärmvägg och tillämpa tabell 7.9 men reducera formfaktorn med faktorn ψs enligt kapitel 7.4.2 där x är avståndet mellan byggnadens vägg och balkongräcket?

5) Klassa balkongräcket som en fristående skärm och tillämpa formfaktorn c= 1,8 i centrum av balkongräckets beklädnad enligt kapitel 7.4.3?

Svar: Aerodynamic coefficients are governed by the type and size of the balconies. For open and hanging type balconies, load on individual balcony should be estimated by treating them as boundary walls given in section 7.4 of SS-EN 1991-1-4.

For built in or fully covered balconies, the loads may be calculated by employing section 7.2 of SS-EN 1991-1-4. However, external and internal pressures shall be used in estimating the total loads on the walls and roof of the balcony.

Size of the building plays an important role on the wind loads on balconies. Separation or attachment of flow on the building is influenced by the width and the height of the structure and affects the loads on the balconies.

Location of balconies on the building face is important and should be considered in the design. If the balcony is located near the corner of a building or near the roof, it can experience very high suction or pressure loads.

Higher values of aerodynamic coefficients should be used in the design of fixings for the balconies.

It is recommended that row of balconies in the vertical or horizontal directions should be designed for wind loading by treating them as parapets or external ribs on the walls of the building. This is due to the fact that the separation of flow from hanging balconies results in higher suction or pressure depending on the location.
Publicerad 2016-09-26

SS-EN 1991-1-4 – Formfaktor för bågtak

Fråga: Enligt EKS 10 stycke 7.2.8(1) bör formfaktorer för bågtak tillämpas enligt figur C-6. Men dessa figurer illustrera endast förhållandet f/b<0,3. Finns det någon vägledning för formfaktorer f/b>0,3?

Svar: Enclosed is a table showing aerodynamic coefficients cpe,10 for valuted roofs.  The range includes (f /d)  from 0.3 to 0.5.  When the ratio (f/d) is  greater than 0.3, there is high positive pressure at upwind eave (A)  and high suctions along the ridge of the arch (C).

Publicerad 2016-09-26

SS-EN 1991-1-4 Cf-faktorn

Fråga: Hur ska man betrakta Cf -faktorn om man har ett uppstolpat fackverk dvs flera mittpelare. Lasterna måste ju bli fruktansvärt missvisande om grunden ska dimensioneras mot dessa laster då det bara ska påföras en punktlast d/4 ifrån takfoten.

Cf -faktorn jag refererar mot är EN 1991-1-4 kap 7.3 tabell 7.6 & figur 7.16

Som jag har förstått det hela skall faktorn för kraft (Cf) användas till dimensionering av fundament till ett skärmtak. När jag dimensionerar fackverk, pelare och grundskruv använder jag mig av cp.net faktorerna med dess zoner. 

När man räknar reaktionskrafterna för dimensionering av fundamenten ska man lägga på en punktlast enligt figur 7.16 med kraft där lasten är q× Cf × lastbredd takstol × partialkoefficienter. Om takstolen har fler mittpelare kommer reaktionskrafterna bli missvisande (se bild nedan).

Jag kan ju förvisso tycka att det verkar konstigt att takstol o pelare skall dimensioneras tuffare än fundamentet (tabell 7.6). Jag ser ju att man ska ha fler lägen på Cf med det är ju alltid d/4 ifrån takfot/taknock. Är det något jag har missat eller är detta korrekt?

Svar: Vad gäller figur 7.16 så ska den i det aktuella fallet tolkas enligt frågeställarens nedre figur. Cf-faktorn i tabell 7.6 används för att bestämma den sammanlagda kraften på hela taket, d.v.s. kraftresultanten. Denna kraftresultant ska sedan placeras dels 1/4 av taklängden från takets övre kant och dels 1/4 från takets nedre kant enligt figur 7.16 vid dimensionering av takstol, pelare och fundament oberoende av om det finns pelare i mitten eller inte. Man ska alltså inte när man dimensionerar takets underbyggnad beräkna vindlasten som en utbredd last på taket, och inte använda cp.net för detta. cp.net används enbart för att dimensionera själva yttertaket och dess infästningar, se 7.3 (5). 
Publicerad 2017-05-30

SS-EN 1991-1-4 Vindlast

Fråga: I Eurokod för vindlast finns två bilagor som kan användas för att beräkna acceleration för byggnader (Bilaga B och C). I EKS 10 anges en annan metod som "bör tillämpas för beräkning av svängningar i första moden för ett konsolbärverk med konstant massa längs bärverkets huvudaxel"

Metoden i EKS ger avsevärt skilda resultat från metoderna i bilaga B och C, vad är det som motiverat metoden i EKS 10 och varför skiljer den sig så mycket från Eurokod?

Svar:  

Kommentar från Boverket:

I Sverige har vi valt ett vindenergispektrum (Harris) som ger högre energi i i vindstötarna jämfört med eurokodens modell (Kaimal). Det är inte enkelt att beskriva turbulens eftersom bland annat randvillkoren är högst osäkra. Så det är nödvändigt att ha en stor säkerhetsmarginal på detta område.

När det gäller att bestämma acceptabla nivåer på olägenheter och mot vilken standard och återkomsttid detta bör bedömas kan man vara lite friare. Om en byggherre kan acceptera mer frekventa olägenheter kan det ge vissa lättnader beträffande kravnivåer.

EN 1991-1-4 – Annex A.4

Fråga: I SS-EN 1991-1-4 Annex A.4 finns en metod för att hantera höga byggnaders inverkan på vinden på lägre omkringliggande byggnader, förstärkning av vinden. Det är samma metod man hittar i “Recommendations for Calculating the Effects of Wind on Constructions, Report 52, ECCS” som ska tillämpas om en byggnad är dubbelt så hög som de omgivande byggnaderna. Men den får man inte använda enligt EKS där det står att Bilaga A.4 inte får tillämpas.

Hur skall man göra för att beakta höga byggnaders inverkan på vinden och veta vad man skall räkna med för lägre omkringliggande byggnader?

I den äldre anvisningen av ”Recommendations for the calculation of wind effects on buildings and structures, Report 27, ECCS” finns en metod där man räknas med samma vind som i toppen av den höga byggnaden och även för de lägre byggnaderna i närheten.

Svar:

1. Section (A4) in Eurocode SS-EN 1991-1-4 is taken from ECCS (Document 52) published in 1985.  The method given in equation (A .14) is not practical and need not be applied in the calculation of wind loads on low rise buildings located in the vicinity of a high building.  It can be shown that equation (A .14) is not applicable to structures facing wind blowing from different directions.  It is not necessary to calculate loads on low rise buildings based on the velocities from the top of high rise structure.  Figure (1) and equations (1) to (3) below explains the velocity profile to be used in low rise and tall buildings.

2. Influence of high rise buildings on the surrounding areas should be considered for the comfort of the residents in the nearby vicinity.  Wind tunnel effect between high and low rise buildings is caused near the ground level and can contribute to discomfort.  Section (A4) does not mention that the environmental factors should be considered in the neighboring structures.  Even low wind speeds can cause discomfort for residents in areas around the high rise buildings caused by the vortices in the flow. 

Mean velocity profile is generated by considering type of surface roughness (z) and  reference mean wind velocity (vb) as given in equation (1). Velocity profile at the top of tall or low rise building is obtained by substituting   height of the structure as shown in equations (2) and (3).  Mean velocity at other heights is obtained by following the velocity profile as shown in figure (1).

Mean Velocity profile is given by:

vm(z) =  vb k Ɩn {z/z0}                                                                                  (1)

Mean velocity at the top of the tall building (A) is given by:

vm(h) =  vb kr  Ɩn {h/z0}                                                                                   (2)

Mean velocity at the top of the low rise building (B) is given by:

vm(h1) =  vb kr  Ɩn {h1/z0}                                                                                 (3)

Publicerad 2016-10-21

SS-EN 1991-1-4 –Byggnadsställning och vindlast

Fråga: Vid kontrollberäkning av byggnadsställning, med ett väderskydd monterat på ställningen, vilka monteras runt befintlig byggnad (byggnadens höjd når upp till väderskyddets takfot), ska vindlasten beräknas enligt avsnitt 7.3 (fristående skärmtak) om byggnadsställningen inte är täckt?

Svar:

1. Section 7.3 of Eurocode  SS-EN 1991-1-4 is for canopy roofs  and is not applicable in the calculation of wind loads on scaffoldings.

2. The scaffoldings are to be treated as temporary structures. Wind   velocity and pressures are to be based on seasonal wind environment.   Equation (4.1) in section 4.2 (SS-EN 1991-1-4 document) recommends use of seasonal factor cseason but does not provide any more information.    In document BFS 2013:10 (EKS) information is provided about the seasonal coefficient in table C-10b of section 4.2 (2).

It is recommended that advice should be obtained from experts in this field.  Eurocode SS-EN 1991-1-4 does not provide any information on the calculation of wind loads for temporary structures.

3. SS-EN 12811-1:2004 and SS-EN 12810-1:2004 deal with loadings on the scaffoldings structures and may be used for calculating wind loads.

Publicerad 2016-10-21

SS-EN 1991-1-6 

SS-EN 1991-1-6 – Last under uppförande

Fråga: Jag har larmat om att jag inte kommer att acceptera stora gipsbuntar inne på ett bjälklag. Kan jag sätta 50 kg/m2 som gräns på inlastat materiel. Det kommer att ligga där tills huset är sålt och m.a.o. kan det dröja ett tag tills materielet kommer bort. Ska jag räkna denna last som lastvaraktighetsklass M?

Svar: Det bästa är bestämma hur mycket material som får upplagras genom att kontrollera bjälklaget enligt SS-EN 1991-1-6 (laster under utförande) för last av upplagrat material Qcb, och de andra bygglaster och andra laster som kan verka samtidigt. Under byggtiden behöver man ju inte använda den nyttiga lasten som ligger på under bruksskedet. Vad gäller lastvaraktighetsklass så är det väl rimligt att anta klass M (ackumulerad effekt av karakteristisk last är max 6 månader) för denna bygglast. Klass M används ju även för den vanliga nyttiga lasten, som sedan ligger på under hela byggnadsverkets livlängd, fast då varierar lasten mycket mer med tiden. 

SS-EN 1991-1-7

SS-EN 1991-1-7 - Konsekvensklasser

Fråga: Jag har en fråga angående två strecksatser i SS-EN 1991-1-7. I bilaga A, kapitel ”A.4 Rekommenderade metoder” anges för byggnader i konsekvensklass 2b (Högriskgrupp) två strecksatser:

I tillägg till de rekommenderade åtgärderna för konsekvensklass 1 bör:

  • horisontella förband enligt A.5.1 och A.5.2 för byggnader med rambärverk respektive med bärande väggar (se 1.5.11) anordnas tillsammans med vertikala förband i enlighet med A.6 för alla bärande pelare och väggar, eller alternativt,
  • det kontrolleras att byggnaden förblir stabil och att ett lokaltlokalt brott inte överskrider en viss nivå för det hypotetiska fallet att någon bärande pelare, balk eller sektion av en bärande vägg i enlighet med definitionen i A.7 (en åt gången på varje våning i byggnaden) tas bort.

Bör bägge strecksatserna vara uppfyllda, eller är den andra strecksatsen ett alternativ till den första?

Svar: Det står ”eller alternativt” i texten som är inkopierad från standarden.

SS-EN 1991-1-7 - Bilaga C

Fråga: Jag har ett antal funderingar kring avsnitt 4.3.1 och bilaga C i SS-EN 1991-1-7.

Både NA och EKS hänvisar till texten i avsnitt 4.3.1 där det står ”För andra byggnadsverk än broar intill väg kan värden enligt tabell 4.1 tillämpas och byggherren kan ange tillämplig trafikkategori för aktuellt projekt. Som alternativ till laster enligt Tabell 4.1 kan laster beräknas enligt bilaga C.”

Min första fråga handlar om Tabell 4.1 och när man ska välja att använda den respektive när man ska välja att räkna enligt bilaga C. Som jag tolkar det så är jag fri att göra hur jag vill. Stämmer det?

Om man sedan jämför resultaten jag får av att läsa i Tabell 4.1 med de jag får genom att räkna enligt bilaga C. Då kan jag för till exempel trafikslag ”Vägar i tätbebyggt område” läsa i tabell 4.1 att Fdx = 500 kN och Fdy = 250 kN. Räknar jag sedan på samma trafikslag enligt bilaga C får jag en betydligt högre last. Hur ska jag tolka det?

För att få dessa resultat i bilaga C måste jag också använda ett antal värden ur Tabell C.1 och C.2, en del av dessa anger olika värden på samma storhet. Vilken är den korrekta?

I formeln som anger bromssträckan har man lagt till sinus för vinkeln mellan körriktningen och avåkningsriktningen. På en tidigare fråga om samma sak svarar ni att det inte är en bromssträcka. Om jag då vill kunna jämföra bromssträckan med sträckan s och på så sätt se om fordonet har hunnit bromsa innan den kommer fram till bärverket så ska jag naturligtvis (?) ta bort sinus för vinkeln i uttrycket för db. Är det verkligen lämpligt att ni kallar det för bromssträcka i den svenska översättningen? Det är som upplagt för missförstånd.

Svar: Det finns en frihet att använda bilaga C. I ett doktorandprojekt om broars robusthet som pågår vid LTH (Lunds Tekniska Högskola) har det också visats att bilaga C ger högre laster än tabell 4.1. Eftersom användning av tabell 4.1 är en förenklad metod och bilaga C är en förfinad metod synes det ologiskt eftersom förenklade metoder ska vara på säkra sidan i förhållande till förfinade.

Bilaga C är informativ och utgör därmed ett kunskapsdokument. Tabell C.1 anger föreslagna data för en sannolikhetsbaserad beräkning av dimensioneringsvärden. Tabell C.2 anger förslag på dimensioneringsvärden beräknade med data enligt tabell C.1. Se C.3(3). Parametrarna har samma namn men de är hämtade ur olika steg i en stegvis beräkning och därför inte jämförbara.

Ordet bromssträcka är en översättning av engelskans braking distance och som sådan synes den korrekt. Synpunkten om orden bromssträcka respektive braking distance bör tas med i kommande revideringsarbete.

SS-EN 1991-1-7 (SS-EN 1990 och) – Omedelbar kollaps

Fråga: Finns det någon tydligare definition av vad som menas med "omedelbar kollaps" som förekommer i NR, BBR och EKS i sammanhanget säkerhetsklasser.

Kan begreppet likställas med "sudden collapse"/"plötslig kollaps" som nämns i SS-EN 1991-1-7?

Jämför också EKS 9 avd. C kap 1.1.2 där omedelbar kollaps också används. Ge gärna exempel på vilken typ av brottbeteende och vilka konstruktionsdelar samt under vilka förutsättningar dessa kan förväntas gå till omedelbar kollaps.

Svar: Begreppet omedelbar kollaps används för en av tre nödvändiga parametrar som definierar säkerhetsklass 3 i EKS. "byggnadsverksdelen har sådana egenskaper att ett brott leder till omedelbar kollaps". Motsvarande aspekt i säkerhetsklass 1 är. "byggnadsverksdelen har sådana egenskaper att ett brott inte leder till kollaps utan endast till obrukbarhet".

De andra två aspekterna är ju dels hur mycket folk som normalt brukar byggandsverket och kan drabbas och dels om en kollaps av delen innebär en stor risk för att personskador inträffar, alltså hur allvarliga konsekvenserna av ett brott eller kollaps kan bli. Det är alltså fråga om typ av brott, och det kan gälla på olika nivåer: Materialnivå, byggnadsdelsnivå och byggnadsverksnivå.

På materialnivå uppstår "omedelbar kollaps" vid sprödbrott, d.v.s. ett brott som sker utan förvarning och utan föregående plastiska deformation, t.ex. i sprött stål. Därför ställs ju i EKS och eurokoderna krav på seghet hos bärverk i olika material.

På byggnadsdelsnivå är det oftast fråga om "omedelbar kollaps" på grund av att vissa konstruktionsdelar är känsliga för knäckning, buckling, otillräcklig avsträvning, yttre skador och dylikt och gör att brott i en begränsad del leder till plötslig kollaps av hela bärverksdelen.

På byggnadsverksnivå finns det risk för "omedelbar kollaps" p.g.a. brist på robusthet hos bärverkssystemet som helhet. Ett talande exempel är Tjörnbroraset. Robusthet definieras i SS-EN 1991-1-7 som "ett bärverks förmåga att motstå händelser som brand, explosioner, påkörning eller konsekvenser av mänskliga fel utan att den påföljande skadan blir oproportionerligt stor i förhållande till den ursprungliga orsaken till skadan." SS-EN 1991-1-7 anger olika sätt att ge bärverkssystem robusthet.

Begreppet "omedelbar kollaps" i EKS 9 avd. C kap 1.1.2 har samma innebörd och likaså "plötslig kollaps" i SS-EN 1991-1-7.

SS-EN 1991-1-7 - Vertikala förband enligt Bilaga A

Fråga: Metoden med vertikala och horisontella förband är hämtad från BS 5950-1.

Vid användande av den standarden i Eurokoderna så anpassas lasterna för horisontella förband till att beräknas med hjälp en exceptionell lastkombination, från att tidigare ha beräknats med en brottlastkombination i BS 5950-1. Genom att lasten som blivit mindre skalas upp (0.5 ändrades till 0.8 osv) så det blir något liknande som det varit tidigare.

Eurokoderna:

BILD: 1991_1

BS 5950-1:

BILD: 1991_2

BILD: 1991_3

Men vad det gäller de vertikala förbanden så ser ingen sådan anpassning för användande av en exceptionell lastkombination ut att vara gjort, utan liksom tidigare som i BS 5950-1 skall en brottlastkombination användas för dimensionering av de vertikala förbanden. Texten är ju heller inte ändrad på något sådant sätt. Skall man få samma nivå på krafterna som det var tidigare får det vara så. Eller skulle en skalfaktor ihop med en exceptionell lastkombination behöva användas, så som för horisontella förband?

Eurokoderna:

BILD: 1991_4

BS 5950-1:

BILD: 1991_5

I t. ex P391 Structural Robustness of Steel Framed Buildings kap 7.3.2 skriver man så här om det:

Är detta ett korrekt hanterande? Är det en beprövad metod man tänkt sig att det skall vara? Får man använda laster på samma nivå som tidigare och vilket skulle vara fallet om lastkombination ekvation 6.11b används för de vertikala förbanden?

Tittar man på andra normer och bestämmelser har man vanligen en egen lastkombination för vertikala förband med mindre nyttig last än i brottlastfallet och med en större säkerhetsfaktor på egenvikten än i det vanliga olyckaslastfallet och samma som i brottlastkombinationen. Men man har också mer detaljerade regler för hur det skall beräknas för t. ex anvisningar för hänsyn till lastvariation.

Skulle ekvation 6.11b används skulle man räkna med mindre last än vad som verkar vara brukligt i dessa sammanhang.

Följdfråga: Som det står i SS-EN 1991-1-7 så gäller ju inte ekvation 6.11b i sig för de horisontella förbanden. Det ju är istället några andra formler med samma Ψ faktorer som i ekvation 6.11b, A1 och A2 i bilaga A, som gäller för dem. Det är väl de horisontella förbanden som benämns sammanhållning av bjälklag?

Men för de vertikala förbanden finns ingen ekvation i SS-EN 1991-1-7 eller hänvisning till någon, men det är ekvation 6.11b i EN 1990 i sig som är den som skall användas för dessa?

Det som står i Stålbyggnadsinstitutets handbok om raskopplingar enligt Eurokoderna för stålkonstruktioner (P391 Structural robustness of steel framed buildings) är det rätt?

Svar: Det är korrekt att UK har haft ett inflytande på reglerna i SS-EN 1991-1-7 men de senare är inte en kopia av de brittiska reglerna. Reglerna i SS-EN 1991-1-7 gäller som de är skrivna. Det betyder att ekvation 6.11b i SS-EN 1990 gäller såväl vid beräkning av sammanhållning i bjälklag som för pelarskarvar.

Svar på följdfråga: Att man har skrivit ut formlerna för horisontal sammanhållning ändrar inget. För den vertikala sammanhållningen sägs en dragkraft av olyckslast och man har inte sagt något om en annan lastkombination och då är det ekvation 6.11b som gäller. Det är möjligt att SCI:s handbok har gjort en annan tolkning men det är svårt [att förstå] varför. Standarden är tydlig nog. 

SS-EN 1991-1-7 - Konsekvensklasser

Fråga: Enligt SS-EN 1991-1-7 får den konsekvensklass 2b och skall alltså utföras med vertikala förband eller någon av de andra metoderna. Läser jag i SS-EN 1992-1-1, 9.10 så gäller vertikala förband endast från fm våningar och högre. Vilken standard är det som gäller i detta fall?

(Jag tror att man i England har gjort någon tolkning av detta enligt PD 6687, CL 2.20)

Svar: Reglerna i SS-EN 1992-1-1 är basregler som gäller oberoende av vad byggnaden används till och gäller även i de fall då man inte anser att dimensionering med hänsyn till olyckslast är nödvändig. Se kap 9.10.1 (1).

Huruvida man ska dimensionera för olyckslast eller inte bestäms av reglerna i SS-EN 1991-1-7. I dessa tas även hänsyn till byggnadens användning och vad konsekvenserna av en olycka skulle bli. I konsekvensklass 1 så räcker det att följa reglerna i SS-EN 1992-1-1. Om konsekvensklassen är högre så gäller därutöver de regler som finns SS-EN 1991-1-7. (Se SS-EN 1991-1-7, A.4 (1) b).

SS-EN 1991-1-7 – Byggherrens ansvar och dimensionering

Fråga: Enligt standard i EU så skall man från beställarens sida godkänna de laster som man dimensionerar hus för, stämmer detta? Vad betyder texten där det står att lasterna skall vara överenskomna med byggherren? Vi har en totalentreprenör som köpt en stomme från Estland och de vill att vi som byggherre skall skriva på deras beräkningar, är det verkligen rätt?

Svar: Det finns ingen SS-EN-standard som hanterar godkännandeprocessen för byggnadsverk, utan det är helt upp till varje lands nationella system.

Enligt Plan- och bygglagen SFS 2010:900 är det ju byggherren som har ansvar för att samhällets krav på byggnadsverket uppfylls, och anger hur detta ansvar ska fullföljas med kontrollplaner, kvalitetsansvarig, tekniskt samråd etc. (PBL kap 10). 

Vilka laster byggnader ska dimensioneras för i Sverige anges i BFS 2011:10- EKS 8 senast ändrad med BFS 2013:10 - EKS 9, som till stor del hänvisar till eurokoderna. SS-EN 1991-1-7 ger utöver allmänna regler om hantering av risker bara laster för vissa specifika typer av olyckslaster. Det finns laster och scenarier som inte behandlas och om sådana kan förekomma i ett projekt måste de anges.

Enligt SS-EN 1991-1-7 finns ju dessutom principiellt olika sätt att hantera risker och både byggherren och kommunen kan ha anledning att ha synpunkter på vilket sätt som väljs; pga. kostnader, risker för omkringliggande byggnader eller dylikt.

Där detta är aktuellt bör det i det tekniska samrådet, där byggherren och tillsynsmyndigheten (kommunen) deltar, avgöras vilka laster som bör beaktas eller vilka metoder för att reducera riskerna som är lämpliga.

Byggherren kan ju dessutom vilja ställa högre krav på byggnaden än reglernas minimikrav, vilka denne då måste ange vid sin upphandling.

Enligt Boverkets föreskrifter och allmänna råd om tillämpning av europeiska konstruktionsstandarder bör de rekommenderade strategierna (metoderna) i bilaga A tillämpas (se utdrag nedan). En byggherre kan inte avtala bort det allmänna rådet. Byggherren kan dock välja andra metoder än de som anges i rådet om det kan visas att dessa metoder ger minst samma säkerhetsnivåer som de rekommenderade.

Om byggnadsverket inte är en byggnad får byggherren ”fritt” ange vilket alternativ som ska väljas.

BILD: 1991_6

SS-EN 1991-1-7 Väsentliga bärverksdelar

Fråga: Har en fråga angående A.8 ”väsentliga bärverksdelar”. Om man har bärande pelare som man vill dimensionera som väsentlig bärverksdel och dimensionerar dessa för den rekommenderade olyckslasten 34 kN/m2 multiplicerad med pelarens bredd (plus eventuell angränsade väggs överförbara kraftförmåga) som en horisontell last samt dess anslutning mot bjälklag. Behöver man också betrakta andra fenomen så som att olyckslasten verkar på de anslutande bjälklagen som vertikal last (dock inte samtidigt) och därmed påverkar själva anslutningarna/kopplingarna i form av draglast i det avseendet? Om man har anslutande vägg till pelaren är det rimligt att dimensionera pelaren för 34 kN/m2multiplicerad med pelarens bredd plus förbindningarnas/kopplingarnas kapacitet mellan vägg och pelare?

Stämmer det att om man har dimensionerat för väsentlig bärverksdel behöver man inte någon horisontell sammanhållningsarmering, men att man minst kanske behöver lägga in enligt SS-EN 1992-1-1, avsnitt 9.10, om det är av betong? Eller behövs ingen armering alls? Och gäller samma för vertikal sammanhållningsarmering att det inte behövs armering förutom om det är en betongelementbyggnad av minst fem våningar?

Svar: Vad som krävs beror helt på vilken konskevensklass (enligt SS-EN 1991-1-7, tabell A.1) byggnaden tillhör. Dimensionering som väsentlig bärverksdel görs normalt för CC2b. Dimensionerar man pelaren CC2b och dess infästningar för den utbredda lasten 34 kN/m2 ska man dessutom uppfylla tillämpliga krav på sammanbindande armering enligt avsnitt 9.10 i SS-EN 1992-1-1. När pelaren dimensioneras för den utbredda lasten bör man ta hänsyn till ökad yta p.g.a. av inklädning, infästa väggpartier o dylikt. Lämpligen på det vis du angett. I dimensioneringen ingår också att i rimlig utsträckning kontrollera att denna last kan tas upp och stabiliseras av den omgivande konstruktionen. Man behöver dock inte ansätta samma last på bjälklaget.

Vertikal sammabindande armering enligt A.6 behövs bara i CC2b om man inte dimensionerar byggnadsverksdelarna som väsentliga bärverksdelar. Aldrig i CC2a eller CC1. Vertikal sammanbindande armering enligt SS-EN 1992-1-1, kap 8.10 krävs dock alltid.

Om byggnaden måste dimensioneras för olyckslast ska en av tre metoder enligt SS-EN 1991-1-7, avsnitt 3.3, väljas. För pelare som dimensioneras som väsentlig bärverksdel bör en väsentligt större last än 34 kN/m2 väljas.

SS-EN 1991-1-7 Reduktion av ekvivalenta statiska dimensioneringskraft

Fråga: Jag undrar om föreslagna ekvivalenta statiska dimensioneringskrafter enligt tabell 4.1 i avsnitt 4.3.1 får reduceras för avstånd och bromssträcka med samma faktor,(1-d/db)0,5, som den dynamiska interaktionskraften Fd enligt bilaga C ekvation (C.7).

Svar: Nej, detaljregler i bilaga C ingår endast i modellen i bilaga C.

SS-EN 1991-1-7 – Dynamisk förstoringsfaktor

Fråga: Det framgår inte riktigt vad som ska göras med den dynamiska förstoringsfaktorn som beskrivs under rubrik C.2.1(3). Det står att beräkningar ger förstoringsfaktorer från under 1,0 till 1,8.

– Hur räknas denna förstoringsfaktor fram?

– Hur är det tänkt att förstoringsfaktorn ska användas? Vad ska man göra med den?

Under C.3(4) Står det att den dynamiska förstoringsfaktorn kan antas vara 1,4 om dynamisk analys inte utförs.

– Ska detta värde multipliceras med den approximativa dynamiska interaktionskraften som ges av uttryck (C.7)?

Svar: I C.2.1(3) står att allmän dynamisk analys bör användas för att bestämma förstoringsfaktorn. Det kan göras på flera sätt men enklast är antagligen att använda en datormodell. Svårigheten att pålastningsfunktionen vanligen inte är känd och man måste använda förenklingar. Normalt används kraften för att jämföras med en beräknad bärförmåga.

Faktorn 1,4 ska multipliceras med kraften i (C7) för att bestämma den elastiska responsen. Detta är dock av begränsat intresse eftersom den normalt överstiger bärförmågan och man måste istället göra en beräkning av energiabsorption på grund av plastiska deformationer.

SS-EN 1991-1-7 -

Fråga: I eurokoden om olyckslaster SS-EN 1991-1-7 delas dimensioneringssituationerna upp i två fall, "metoder baserade på kända olyckslaster" och "metoder baserade på begränsning av ett lokaltlokalt brott". Min fråga är vad som menas med ett "lokaltlokalt brott"? Är det samma sak som ett lokalt brott och i så fall, varför benämns det inte på detta sätt i eurokoden? Jag läste i den engelska motsvarigheten och där beskrivs det som "strategies based on limiting the extent of localised failure".

Svar: De fem förekomsterna av ordet ”lokaltlokalt” i den svenska versionen är ett redigeringsfel vid översättningen.

Ovanstående bevisas av att

  • ”Lokaltlokalt brott” är ingen känd term.
  • Termen ”lokalt brott ” används på andra platser i den svenska versionen.
  • Den engelska originaltexten har samma term ”localised failure” där den svenska versionen har ”lokaltlokalt” respektive ”lokalt”.

Publicerad 2016-09-26

SS-EN 1991-1-7 Konsekvensklass

Fråga: Jag har en stor byggnad med butikslokaler i ett plan med en golvyta på ca 30 000 m2. Vilken konsekvensklass kommer denna byggnad att tillhöra? Som jag tolkat tabell A.1 i SS-EN 1991-1-7 så borde byggnaden tillhöra konsekvensklass 2b. Detta eftersom kravet, för att det skall bli konsekvensklass 3, är att man överskrider både yta och antal våningar enligt klass 2a och 2b. Och i detta fall överskrider vi bara ytan.

Har jag rätt i mitt resonemang?

Svar: Att en klassificering måste göras framgår av EKS (se nedan gäller):

Dock är inte tabell A.1 alls heltäckande och bara ger exempel, d.v.s. alla möjliga fall finns inte med.

  • I det här fallet kan det inte vara fråga om klass 1, för det är inte ett enfamiljshus, inte en lantbruksbyggnad och inte en byggnad där folk sällan vistas. 
  • Det kan heller inte vara klass 2a för det är en byggnad med butikslokaler som i och för sig inte överstiger 3 våningar men den är betydligt större än 1 000 m2.
  • Den kan heller inte vara 2b, för den klarar inte kravet på att inte vara större 5 000 m2 per våning, vilket gäller för alla byggnader dit allmänheten har tillträde.
  • Så kvar blir bara klass 3.

Det innebär att man måste göra en riskanalys för att bestämma vilka åtgärder som krävs i just det här fallet, i vilken byggnadens verkliga förutsättningar beaktas. Det kan ju vara möjligt att denna analys visar på att åtgärder enligt klass 2b ger tillräcklig säkerhet, men det kan också visa sig att ytterligare åtgärder krävs i detta specifika fall.
Publicerad 2017-05-30

SS-EN 1991-1-7 Förbindare rambärverk

Fråga: Under bilaga A, kapitel A.5.1 Rambärverk. Hur ses s-värdet i ekvation A.1 och A.2, under bilaga A, kapitel A.5.1 Rambärverk? Är det per enskilt förband eller per område?

När man vill ha tätt mellan enskilda förband och att alla dessa måste klara 75 kN blir konsekvensen i många fall färre förbindare med totalt lägre kapacitet jämfört med lasten blir per meter, likt A.6 och SS-EN 1992.

Svar: Även om det är fråga om horisontella förbindare så är avsikten med dessa att hålla ihop väggar och pelare med resten av rambärverket (A.5.1(1)). Alltså egentligen inte för att hålla bjälklagsplattor på plats. De skall placeras så nära pelare som möjligt.

Som förbindare kan stål eller armerade betongplattor eller balkar fungera. Används bjälklagsplattor som förbindare i ena riktningen så måste en platta fungera som en förbindare och klara kraften T, på samma sätt som om förbindaren utgjordes av en armerad betongbalk. Alltså bör plattan som helhet klara kraften T. Däremot är det väl möjligt att vid upplaget dela upp denna kraft på flera förankringsanordningar i samma platta som då tillsammans ska klara kraften T. Avståndet s blir centrumavstånd mellan bjälklagsplattorna och L plattlängden.

Avståndet s mellan dragband är avståndet mellan enskilda förband. Enligt de grundläggande uttrycken för T (0,8 resp 0,4(…)sL får man samma kraft per längdenhet om man dividerar med s, oavsett hur tätt förbanden placeras.

Problem uppstår med den undre gränsen 75 kN, som kan ge orimligt resultat om den ska gälla för varje enskilt dragband, om dessa placeras tätt. Det kan t.ex. inte vara meningen att 75 kN ska klaras för varje håldäcksplatta i ett bjälklag. Den undre gränsen 75 kN bör istället gälla för alla dragband inom ett område med viss bredd, t.ex. avståndet mellan bärande pelarlinjer eller bärande väggar i dragbandens riktning.

Om bjälklaget skulle vara enkelspänt på ”oändligt långa” bärande väggar fungerar dock inte denna definition. I så fall uppstår samma problem vid definition av s för dragband tvärs dessa väggar, som vid definition av L för dragband längs dessa väggar. Varken Eurokoden eller EKS ger någon vägledning i detta avseende. I avsaknad av sådan vägledning kan man tänka sig att begränsa dessa mått till längden för ”Nominell sektion av lastbärande vägg” enligt A.7 (1), dvs 2,25H.

Publicerad 2017-05-30

SS-EN 1991-1-7 Påkörningslast

Fråga: Jag har en fråga gällande påkörningslast. Fasaden i fråga ligger 2 m från en väg i tätbebyggt område och ingen nämnvärd höjdskillnad.

Är laster enligt tabell 4.1 i SS-EN 1991-1-7 det som gäller för detta fall? Eller bör jag göra en beräkning enligt bilaga C i samma dokument?

Får då följande värde på lasten: Fd=F0×(1-d/d0) ^0.5= 880 kN med d=5.5m d0=10

Enligt beräkning i (Svängningar och deformationspåverkan och olyckslast, Boverket) får jag följande: Q=Q× (1-d/ d0) ^0.5 = 930 kN med d=15.3 d0=25 Se exempel 3.3.6 sid 36.

Svar: Man kan använda antingen tabell 4.1 eller bilaga C. I tabell 4.1 tas det ingen hänsyn till avståndet från vägkant och det gör det förstås svårt att bedöma vilken inverkan det har.

Bilaga C kan ge större påkörningskrafter än tabell 4.1. Normalt ska en förenklad metod vara mer konservativ än en mer komplicerad och frivillig metod men så är alltså inte fallet här. Det förhållandet är en brist i standarden men det är ändå tillåtet att välja mellan tabell 4.1 och bilaga C. 
Publicerad 2017-05-30

SS-EN 1991-1-7 Olyckslast och horisontella förbindare

Fråga:  Jag har lite funderingar kring sammankopplingslasterna i ett olyckslastfall. Jag ska dimensionera några skarvar på bjälklagsbalkar. Min fråga är om skarven bara måste motstå en dimensionerande dragkraft och inte kombineras med något moment eller tvärkraft samtidigt? Vad jag kan utläsa i SS-EN 1991-1-7:2006 sidan 31–33 så står det inget om att man måste ta hänsyn till något moment eller tvärkraft. Hur bör man tolka det?

Svar: Avsikten med horisontella förbindare dimensionerade enligt EN 1991-1-7 är att hålla ihop väggar och pelare med resten av rambärverket (A.5.1(1) i ett olyckslastfall så att byggnaden inte rasar samman. Vid denna dimensionering behöver bara hänsyn tas till de i EN 1991-1-7 angivna dragkrafterna.

Om skarven även har en funktion vid dimensionering i bruksgräns- eller brottgränstillståndet så ska de naturligtvis även kontrolleras för de laster som uppstår i sådana fall; moment, dragkrafter och tvärkrafter.
Publicerad 2017-05-30

SS-EN 1991-1-7 Påkörningslast

Fråga: Jag skall dimensionera en byggnad som ligger nära en väg för påkörningslast. I EKS 10 skrivs som ett allmänt råd till Stycke 4.3.1 att värden enligt Tabell 4.1 kan tillämpas, men även att som alternativ kan laster beräknas enligt bilaga C.

Fråga 1. I vilka fall vill man använda den ena eller andra metoden generellt?

I bilaga C kan kraften räknas ut antingen med (C.1), (C.6) och Tabell C.1, eller med (C.7) och Tabell C.2.

Fråga 2. När skall man välja den ena eller den andra metoden här?

Svar: Svar på fråga 1: Det finns ingen information om det i standarden. Man kan prova sig fram.

Svar på fråga 2: Avsnitt C.2.1 där (C.1) står handlar om ett allmänt fall och är kanske inte så lätt att tillämpa med ett fordon som kolliderande objekt. I avsnitt C.3 är skillnaden mellan de två modellerna att den första modellen förutsätter att användaren gör en probabilistisk analys och den andra modellen är baserad på en sådan analys gjord enligt den första modellen. Det finns ingen information om när det ena eller det andra är lämpligt.

Ivar Björnssons doktorsavhandling vid LTH kan kanske ge mer ledning eftersom den till stor del är en tillämpning av modellerna i C.3.

Publicerad 2017-05-30

SS-EN 1991-1-7 Horisontella dragband och kantupplag

Fråga: En diskussion har uppkommit angående horisontella dragband och kantupplag. Bör det horisontella dragbandet förankras till vertikal bärverksdel (t.ex. vägg) och påverka denna bärverksdel med en last motsvarande det horisontella dragbandet? Eller räcker det att det horisontella dragbandet förankras inom bjälklagsskivan (mot det horisontella dragbandet vinkelrät i samma plan)?

Om en lång HD/f som vilar på en vägg och varje HD/f-platta kräver ca 120 kN i förbandskapacitet, ska denna förankras mot dragbandet längs väggen eller ska den förankras till en dubb ner i väggen som klarar 120 kN i drag? Ska denna dubb i sin tur förankras ned i vägg som även den ska tåla en 120 kN stor draglast i överkant vägg? 

Svar: I SS-EN 1992-1-2, 9.10 finns ett avsnitt om sammanhållningsarmering som gäller generellt då man inte dimensionerar byggnaden speciellt för olyckslast. I SS-EN 1991-1-7 bilaga A talas om horisontella och  vertikala förband vid dimensionering för olyckslast. Det finns även en indelning i konsekvensklasser (Tabell A.1) som bestämmer om man bör dimensionera för olyckslast eller inte och i så fall på vilket sätt. Tyvärr är reglerna i SS-EN 1991-17 om förband något kryptiska och inte alls lika detaljerade som de i SS-EN 1992-1-1. I SS-EN 1991-1-7 görs också skillnad på om det är fråga om en ramstruktur eller bärande väggar.  Är det en ramstruktur så ska bjälklagsplattor förankras i dragbanden (balkarna) i väggen som i sin tur är sammanbundna (A.5.1) och sammanbundna med pelarna. Är det fråga om plattor på bärande väggar så räcker det för Konsekvensklass 2a, lågriskgrupp, att man får en  sammanhållen nätverksstruktur, vilket i princip innebär att man kan följa reglerna i SS-EN 1991-1-2, 9.10. Där ingår bl.a. regler om förbindning mellan platta och bärande vägg.  Är det däremot konsekvensklass 2b, högriskgrupp, så ska krafterna på de horisontella förbanden längs ytterkanterna och i båda riktningarna i plattan vara enligt A.5.2 i stället för enligt EN 1992-1-1. Det är alltså i samtliga fall fråga om att få bjälklaget till att fungera som en sammanhållen enhet, inte individuella plattor. Det är alltså främst fråga om en förbindning och förankring av dessa i horisontalplanet. Enligt A.4 (1) b förutsätts att det i övrigt finns sammanhållande armering enligt EN 1992-1-1, där då bl.a. regler om sammanbindning av väggar/pelare med bjälklaget ingår. För konsekvensklass 2b, högriskgrupp, ska det dessutom finnas vertikala förband enligt A.6.

Både den sammanhållande armeringen i SS-EN 1992-1-1 och förbanden i SS-EN 1991-1-7 är till för att ge konstruktionen robusthet och seghet, och det är i första hand fråga om en dimensionering och utformning av själva förbanden, inte fråga om en en kraft som stommen som helhet ska klara. I det givna exemplet innebär det att kraften ska förankras mot dragbandet i väggen. Och man behöver inte dimensionera väggen för denna last. 

Dragband i bjälklag bör i princip förankras till väggen eller pelaren med samma kraft som den som dragbandet i bjälklaget ska kunna ta. Enligt A.5.1 (1) bör således ”horisontala förband anordnas runt byggnadens omkrets i varje våningsplan och inom planet i två vinkelräta riktningar för att förbinda pelare och väggar med resten av bärverket…”.

Förband mellan bjälklag och vägg kan utformas på olika sätt. Ett är att dragband i bjälklaget kopplas till det dragband som ligger längs väggen, som i sin tur då bör ligga utanför dubbarna i väggen. Om dubbarna kan ta en kraft som motsvarar dragbandskraften i bjälklaget så erhålls motsvarande förband mellan bjälklag och vägg. Alternativt kan dragband i bjälklaget kopplas direkt till dubbar.

En vägg (eller pelare) behöver däremot inte dimensioneras för att kunna uppta motsvarande krafter. Syftet med dragband är att ge byggnaden en ökad (och förhoppningsvis tillräcklig) robusthet, inte att byggnaden ska kunna motstå specificerade krafter.

Terminologin kring ”rambärverk” och ”byggnad med bärande väggar” är förvirrande. I 1.5.11 definieras ”byggnad med bärande väggar” som ”byggnad där vertikallasten bärs av murade väggar i minst två riktningar. Avser också lätta väggar med tätt placerade reglar av trä eller stål med skivbeklädnad”. Denna beskrivning passar ju inte alls in på en byggnad med bärande betongstomme. Sådana bör därför betraktas som ”rambärverk”, även om de skulle ha bärande väggar av betong. (Någon motsvarande definition av ”rambärverk finns inte.)

Ovan sägs att ”enligt A.4 (1)b förutsätts att det i övrigt finns sammanhållande armering enligt SS-EN 1992-1-1…”. Detta gäller dock endast för konsekvensklass 1, där EKS 10 kräver sammanhållning enligt SS-EN 1992-1-1. För konsekvensklass 2a gäller horisontella dragband enligt bilaga A i EN 1991-1-7, vilket vanligen ger betydligt större krafter än EN 1992-1-1.

 Publicerad 2017-10-19

SS-EN 1991-2 

SS-EN 1991-2 - Statisk last

Fråga: I standarden för trafiklaster på broar, SS-EN 1991-2, anges att angivna lastmodeller innehåller dynamiskt tillskott, bl.a. kapitel 5.1 (4). Om en byggherre vill skylta sin bro med tillåtna laster vilken statisk laststorlek skall då anges på skylten, dvs hur stort är dynamiska tillskottet i redovisade laster i SS-EN 1991-2?

Svar: För att bestämma ett dynamisk tillskott till en statisk last (t.ex. vägfordon som passerar over en bro) behöver man normalt känna brons dynamiska egenskaper, fordonets hastighet, vägytans jämnhet och fordonets karaktäristik. I förarbetet till SS-EN1991-2 gjordes studier för att skapa sig en bild av det dynamiska tillskottets storlek så att detta kunde inkluderas i de aktuella lastmodellerna. TRVFS 2011:12, kap 6, tillämpning av SS-EN 1991-2 ger i 3§ råd om ytterligare trafiklaster som bör beaktas vid dimensionering och hur dynamisk tillskott då bör väljas. I den mån man är intresserad av en brons bärighet kan en bärighetsutredning för klassning genomföras.

Se TRVK Bro (B.2.4 och B.2.5) för de metoder Trafikverket använder sig av för bärighetsberäkningar av väg-  och gång och cykelbroar (GC).

SS-EN 1991-2 Varaktighet dynamiska laster

Fråga: I SS-EN 1991-2 5.1(4) står följande mening; "För alla andra beräkningar av lasteffekter, oavsett brotyp, inkluderar lastmodeller och värden i detta kapitel dynamiska tillskott, varför de variabla lasterna bör behandlas som statiska".

Om man ansätter en statisk last på en konstruktion och den ska anses innehålla de dynamiska effekter den kan ge upphov till, kan man anse att lastvaraktigheten då är momentan? De dynamiska maxvärden som en statisk last representerar uppstår ju trots allt bara under en väldigt kort tidpunkt.

Svar: Ingenting i SS-EN 1991-2, 5.1(4) säger något om varaktigheten för trafiklasterna.

SS-EN 1991-2 Plattrambro

Fråga: I en diskussion angående figur 6.9 i EN 1991-2 hävdas att en plattrambro inte ska betraktas som en kontinuerlig bro såsom den gör i övrigt i SS-EN 1991-2 t.ex. vid beräkning av dynamikkoefficient. Eftersom ramen bara har ett fack så menas att den att likställa med en fritt upplagd bro. Vi menar att det är ett statiskt och dynamiskt beteende som åsyftas och inte hur många fack bron har. Vad är det som gäller? (bifogar förtydligande figur) Flödesschema PDF

Svar: SAMMANFATTNING

SS-EN 1991-2, figur 6.9, ger en möjlighet att uppskatta om dynamisk belastning från HSLM-tåg kan vara avgörande för dimensionering. För en konstruktion med vissa randvillkor och vissa proportioner kan detta vara ett praktiskt verktyg för att undvika onödiga analyser. I första hand gäller figur 6.9 för fritt upplagda balkar i ett spann, men kan även användas för andra konstruktioner såsom kontinuerliga broar. För alla fall gäller att brons moder är väl separerade och att moderna uppskattas för konstruktionen belastad med permanenta laster. Figur 6.9 ska tillämpas på ett sådant sätt att andra villkor som t.ex. SS-EN 1990, 5.1.3(1)P och 5.1.3(2)P är uppfyllda. För en plattrambro innebär det att markens dynamiska egenskaper beaktas. För kontinuerliga konstruktioner gäller även att deformationsgränser enligt SS-EN 1990, kapitel A2.4.4 inte överskrids och att kravet för vagnsacceleration motsvarande hög passagerarkomfort i enlighet med SS-EN 1990, A2 uppfylls.

ALLMÄNT

Grunderna för hur en konstruktion skall betraktas enligt Eurokoderna beskrivs i SS-EN 1990. Lastförutsättningar för broar ges i SS-EN 1991-2. Allmänt gäller att Eurokoderna i sin sammansättning är en blandning mellan regelverk och handbok, och figur 6.9 i SS-EN 1991-2 kan betraktas ha handbokskaraktär.

FÖRENKLAT SYNSÄTT

Ett av syftena med Eurokoderna är att förenkla analys och konstruktionsarbete. För fallet dynamisk respons av järnvägsbroar finns möjlighet att använda figur 6.9 i SS-EN 1991-2. Förutsättningarna är entydiga. Allmänt gäller att konstruktionens moder skall vara väl separerade. En av grundparametrarna är konstruktionens första böjmod.

Det som avses är första böjmoden för konstruktionen med permanenta laster. För en konstruktion med enkla upplagsvillkor såsom en fritt upplagd bro med ett spann eller en kontinuerlig konstruktion på lager blir de permanenta lasterna lika med gravitationslasten och i det flesta fall har gravitationslasten liten påverkan på konstruktionens modala parametrar.

I fallet fritt upplagd balk med ett spann finns en klar väg genom flödesschemat i SS-EN 1991-2, figur 6.9. Notera här att det gäller för en rak konstruktion där ev. effekter av snedvinklighet är försumbara.

Om den aktuella konstruktionen är en kontinuerlig bro måste man beakta not 5 till figur 6.9, dvs. deformationsgränser enligt SS-EN 1990, kap A2.4.4 och vagnsacceleration motsvarande väldigt hög passagerarkomfort i enlighet med SS-EN 1990, A2. Det räcker alltså inte att bara kontrollera att första resonansfrekvensen hamnar inom det tillåtna området i figur 6.10 i SS-EN 1991-2. Ytterligare analyser och betänkanden behövs sannolikt.

PLATTRAMBRO

En vanlig brokonstruktion i Sverige är plattrambron. Det är en ramkonstruktion med motfyllnad mot rambenen. Ibland hörs argument att en plattrambro kan jämställas med en kontinuerlig bro, och i det sammanhanget jämför man första resonansfrekvensen för en ekvivalent trespanns kontinuerlig balk med resultatet från en analys av en plan ram. Hänvisning görs då också till SS-EN 1991-2, tab. 6.2. där en plattrambro i ett spann, fall 5.3, betraktas som en trespanns kontinuerlig bro vid bestämmande av ekvivalent spännvidd, L. För att en analys av en plattrambro i syfte att bestämma dess modala parametrar skall bli relevant måste modellens randvillkor vara rimliga. Detta är också en grundpelare i SS-EN 1990, där man i kap 5.1.3(2)P trycker på att randvillkoren som används skall vara representativa för bärverket. I de fall då diskreta lager används kan man med relativt bra noggrannhet idealisera dessa. Men i fallet plattram måste man beakta rambenens samverkan med omgivande mark. Att bortse från permanenta laster, dvs. vilojordtryck och omgivande marks egenskaper och betrakta plattramen som en plan ram uppfyller inte SS-EN 1990, kap 5.1.3. Det uppfyller heller inte villkoren för att få använda SS-EN 1991-2, figur 6.9.

EXEMPEL

För att exemplifiera har en plan ram med rambenslängd och spännvidd 6 m använts. Tvärsnittstjocklek har satts till 0.5 m. Materialet är betong med  = 2500 kg/m3, E = 30 GPa,  = 0.2 och Rayleigh-dämpning med parametrarna α = 1.154 och β = 0.001. Konstruktionen antas fungera som en plan ram med momentfri uppläggning. Marken har antagits som tredimensionell och modellerats som en s.k. "base-mat", d.v.s. med enkla fjädrar och dämpare med= 38×106 N/m och = 116.6×103 Ns/m. Elementstorleken längs rambenet har anpassats till den ekvivalenta arean 0.375 m2. Markens egenskaper har satts till  = 1935 kg/m3, E = 50 MPa och  = 0.3 vilket gör att ingen medsvängande massa behöver beaktas i anslutning till rambenet. Vilojordtryck från omgivande mark har beräknats med K0 = 0.4. Gravitationslast är beaktad med ag = 9.82 m/s2. Materialdämpning för markmaterialet är försummad.

För beräkning av strukturrespons har en dynamisk jämnt utbredd last på 1 kN/m antagits. För fallet samverkan mellan mark och struktur har en överlast på 0.4 kN/m, jämnt utbredd längs med rambenet använts.

Fyra olika fall har studerats, en fritt upplagd balk i ett spann (L = 6 m), en trespanns kontinuerlig balk med en spannlängd på 6 m och total brolängd på 18 m, en plan ram med rambenslängd på 6 m och brospann på 6 m, och en plan ram i kontakt med mark, med samma mått som fallet utan kontakt med mark. Odämpad och dämpad resonansfrekvens och ekvivalent spännvidd enligt SS-EN 1991-2, tab. 6.2 redovisas i tabell 1.

Tabell 1. Beräknade resonansfrekvensen för första böjmoden och ekvivalent längd enligt SS-EN 1991-2

Brotyp

Odämpad resonansfrekvens (Hz)

Dämpad resonansfrekvens (Hz)

Ekvivalent spannlängd (m)

Fritt upplagd, 1 spann

21.58

21.53

6

Trespanns kontinuerlig bro

21.58

21.53

= 1.3×1/3× (6+6+6) = 7.8

Plan ram

21.46

21.44

7.8

Plan ram med markkontakt

32.20

31.91

7.8


Som väntat kan man se liten skillnad på den odämpade och dämpade resonansfrekvensen. Resonansfrekvenserna för de tre första brotyperna, fritt upplagd i ett spann, trespanns kontinuerlig bro och plan ram, är ju lika. Frekvensen för första böjmoden i det fall marken beaktas är betydligt högre än för de tidigare fallen. Skillnaderna i resonansfrekvens visar att randvillkorens betydelse för resultatet. Modform för första böjmoden redovisas i figur 1. Accelerans i ¼-punkten (1:a spannet för den kontinuerliga bron) till följd av dynamisk belastning beskriven ovan redovisas i figur 2.

Acceleransen visar att varken den fritt upplagda enspannsbron, den trespanns kontinuerliga bron eller den plana ramen utan samverkan med marken representerar den aktuella plattrambron på ett bra sätt. Resonanstopparna hamnar långt ifrån fallet då samverkan mellan mark och struktur beaktas. Detta visar att man om man inte beaktar den omgivande markens egenskaper förenklar randvillkoren så mycket att strukturmodellens respons hamnar för långt från verkligheten. Förenklingen är därmed för stor.

(Figur 1 och 2 är borttagna i denna fråga)

Figur 1. Modform för första böjmoden. Modellen längst ner till höger är för fallet plan ram och samverkan med mark.

Figur 2. Vertikal accelerans i ¼-punkten för 1 kN/m jämnt utbredd last. För fallet trespanns kontinuerlig bro gäller första spannet. För fallet plan ram med markkontakt har även dynamisk överlast på 0.4 kN/m mot rambenen beaktats.

Observera att stycken med ett (P) i beteckningsnumret har status av föresskrift, övriga stycken har karaktären allmänt råd. Informativa bilagor har samma status som vilken handbok som helst.

SS-EN 1991-2 Kantbalk

Frågor:

  • Vid dimensionering av en kantbalk till en överbyggnad hur beaktas då kapitel 4.7.3.3(1) och 4.7.3.3(2)?
  • Avser kapitel 4.7.3.3(1) en global effekt (global effekt = överbyggnaden) och kapitel 4.7.3.3(2) en lokal effekt (lokal effekt = kantbalken)?
  • Enligt kapitel 4.7.3.3(1) är lastens utbredning 0,5 m i längdled. Innebär det att man sprider den därefter 1:1 ned till kantbalken om den nu beaktas för kantbalken?
  • Vad är det som avser skyddsanordningen? Är det navföljaren eller är det räckets totala höjd med avseende på valet av angripande höjd?
  • I kapitel 4.7.3.3(1) ANM.3 är det rekommenderade värdet 0,75∙Ql·Qlk. Är det bromsen som avses i detta fall enligt teckenförklaring kapitel 1.5.2?

Svar:

  • Svar på de två första frågorna finns hos Trafikverket och i TRVR Bro 11, B.5.2.5.
  • Svar på den tredje frågan är att detta är systemanalys vilket alltså blir en fråga för konstruktören. Standarden ger last, angreppspunkt och utbredning. Konstruktörens ansvarar därefter för hur fördelningen av krafter i konstruktionen analyseras.
  • "Skyddsanordningen" är hela räcket och därmed är "skyddsanordningens höjd" hela räckets höjd. Jämför med begrepp i SS-EN 1317 där den mer precisa termen för ett broräcke på en vägbro är "fordonsåterhållande skyddsanordning".
  • Svaret på den femte frågan blir en tolkning. Det ska enligt första raden vara en vertikalkraft och därför avses troligen punktlasterna i LM1 i första körfältet som ju betecknas Qlk, se tabell 4.2 i standarden. Det är olyckligt att Qlk i uttryck 4.6, där l är en bokstav som står för longitudinal, och Qik enligt tabell 4.2, där i är ett av heltalen 1, 2 eller 3, ser lika ut när i = 1.

SS-EN 1991-2 Körfält på bro

Fråga: I SS-EN 1991-2 Tabell 4.5(n) anges att N obs avser antal fordon per år och långsamt körfält (slow lane).

1) Hur definieras antalet långsamma körfält på en bro?

2) När det anges "per långsamt körfält" och innebär det att det är underförstått att det i princip alltid är två körfält på en bro alltså ett i vardera riktningen?

D.v.s. gäller Nobs enligt tabell 4.5 och inte 2 ∙ Nobs för en bro med två körfält, ett i vardera riktningen?

Svar: Definitionen av långsamt körfält finns i SS-EN 1991-2, 4.6.1(3).

För en bro med dubbelriktad trafik blir det ett långsamt körfält per trafikriktning. Det innebär att den totala mängden lastbilar över tio ton totalvikt är summan av Nobs i ena riktningen och Nobs i andra riktningen.

SS.EN 1991-2 Avsnitt 5.1(4)

Fråga: I SS-EN 1991-2, avsnitt 5.1(4), står följande mening ”För alla andra beräkningar av lasteffekter, oavsett brotyp, inkluderar lastmodeller och värden i detta kapitel dynamiska tillskott, varför de variabla lasterna bör behandlas som statiska”.

Om man ansätter en statisk last på en konstruktion och den ska anses innehålla de dynamiska effekter den kan ge upphov till, kan man anse att lastvaraktigheten då är momentan? De dynamiska maxvärden som en statisk last representerar uppstår ju trots allt bara under en väldigt kort tidpunkt.

Svar: Ingenting i SS-EN 1991-2, avsnitt 5.1(4), säger något om varaktigheten för trafiklasterna.

SS-EN 1991-2 Linkspan

Fråga: Jag har en fråga om SS-EN 1991-2 har något passande avsnitt för Linkspan? Jag har kollat mycket i broavsnittet men detta är väldigt konservativa laster för ett Linkspan. T.ex. så är det betydligt lägre hastigheter på fordonen och man kan lätt specificera vilka fordon som får köra på.

Svar: I SS-EN 1991-2 anges trafik som är tillämplig på vägbroar utsatta för normal oreglerad vägtrafik. I bl.a. avsnitt 4.1(2) sägs dock att om man har begränsningar av trafiken, av administrativ eller fysisk karaktär, kan man ange specifika modeller för dessa trafiksituationer i den nationella bilagan. I den svenska tillämpningsföreskriften överlämnas detta på byggherren. Observera att byggherren Trafikverket i TRVK Bro skrivit bort denna möjlighet för sina egna broar, men för andra byggherrar kvarstår denna möjlighet. Lämpligtvis görs detta genom att använda samma lastmodellsystem som för vägbroar i vanlig trafik men med andra lastfaktorer α och β. (Se SS-EN 1991-2, avsnitt 4.2.2 (2)).

SS-EN 1991-2 Trafiklast för tåg

Fråga: Om jag har trafiklast som ska betraktas som "verkliga tåg", innebär det att tågen ändå ska kombineras till trafiklastgrupper enligt SS-EN 1991-2, tabell 6.11? Det enda som står i den tabellen angående verkliga tåg handlar om dynamisk analys (fotnot 6, 7).

Svar: Vid val av y–faktorer ska du betrakta trafiklasten av "verkliga tåg", se SS-EN 1990, tabell A2.3. När det gäller laster från vanlig tågtrafik kan man välja att antingen använda trafiklastgrupper enligt SS-EN 1991-2, tabell 6.11, eller att göra en analys i bruks- och brottgränstillståndet baserad på dimensionerande lastfall på grundval av de olika lasterna på konventionellt sätt.

Begreppet "verkliga tåg" används i Eurokoden främst som ett alternativ för den dynamiska analysen eller en utmattningsberäkning. Vilka laster som ska användas för dessa analyser bör framgå av handlingar.

SS-EN 1991-2 - Stålkonstruktion, fackverk i tak och väggar

Fråga: Jag håller på med att se på en stålkonstruktion, fackverk i tak och väggar, som ska fungera som en gångväg mellan plattformen och bron (i betong). Konstruktionen visas i bilderna nedan. Man kan gå från ena plattformen och upp på bron och sen ner på andra plattformen. Fyra järnvägsspår är tänkta att gå under bron. Bron trafikeras av vägtrafik, gångare och cyklister. Hastigheten på bron är tänkt till 40 km/h. Ett broräcke är tänkt att placeras i den högra kanten av bron, se bilden nedan. Räcket ska ha klassningen H2 (bil 9 ton och buss 13 ton). Stålkonstruktionen uppe på bron är som ett väderskydd med tak och väggar. Man kan gå där under.

(Bild 1 och 2 är borttagna i denna fråga)

Frågor:

  1. Hur klassas stålkonstruktionen, som byggnadsverk, bron etc., då man ska ta fram vilken påkörningslast den kan utsättas för? Ska man ta fram påkörningslasten enligt SS-EN 1991-2 kapitel   4.7.3.3 tabell 4.9 ? Hur tar man fram vilken rekommenderad klass som gäller? Man bör väl på något sätt visa att stålkonstruktionen inte ramlar ner på spåret som ett fortskridande ras? Broräcket sitter inne under taket så det tar bara hand om att fordonet inte kör ner på spåret.
  2. Ska jag ta fram påkörningslasten för påkörning på en överbyggnad enligt SS-EN 1991-2 kapitel 4.7.2.2 ? Det är ca 2,5 m från överkant bro till underkant konstruktion. Läser jag vidare i normerna så gäller ju påkörning på överbyggnader när man har större avstånd mellan bron och underkant överbyggnad. En buss är högre än 2,5 m och i SS-EN 1991-1-7 kapitel 4.1 ANM 1 nämns att någonstans kan man se vilka lätta konstruktioner som undantas, men var hittar man denna information?
  3. Står det någonstans vilken bromssträcka fordonen har och att det därmed kan visas att fordonet inte träffar stålkonstruktionen? Vad händer vid en olyckslast?

Svar:

  1. SS-EN 1991-2, 4.7.3.3 avser krafter från vägskyddsanordningar. Det kan inte tillämpas på detta byggnadsverk. För risken för fortskridande ras finns regler i SS-EN 1990, 2.1 och för strategier för att säkerställa bärverkets robusthet i SS-EN 1991-1-7, 3. 
  2. Reglerna för påkörningslast mot kontruktioner ovanför en vägbana i SS-EN 1991-1-7 avser t.ex. fellastade grävmaskiner, glömda tippflak och glömda kranarmar. Alltså fordon som genom ett mänskligt misstag har en för stor höjd i kombination med ganska stor tyngd och styvhet. Det aktuella byggnadsverket befinner sig inte över utan vid sidan av trafikutrymmet. Det motsvarar det som i SS-EN 1991-1-7, 4.3.1 kallas ”underbyggnader”. Texterna i det avsnittet behandlar inte bara brostöd utan också pelare och väggar i byggnader. De föreslagna angreppshöjderna kan dock inte användas i det här fallet eftersom geometrin är speciell. De efterfrågade informationen om byggnadsverk som är undantagna från dimensionering för påkörning av överbyggnaden finns i SS-EN 1991-1-7 kapitel 4.1 ANM
  3. Bilagorna B och C i SS-EN 1991-1-7 ger information om hur mer förfinade metoder kan användas för bestämning av påkörningslaster. Generellt gäller att reglerna i eurokod beaktar olyckor men inte krigs- och sabotagehandlingar. Till olyckor räknas t.ex. fordonsfel och hastigt insjuknad förare. Att en förare medvetet kör in i ett byggnadsverk är en krigs- och sabotagehandling.

SS-EN 1991-2 – Last på gång- och cykelbana

Fråga: Jag har några frågor ang. värdet på last på gång- och cykelbana. I SS-EN 1991-2 Tabell 4.4a står det att värdet ska vara ett kombinationsvärde för gr1a och för gr4 ska värdet vara ett karakteristiskt värde. Båda värdena är hänvisade till en fotnot "b" som säger att rekommenderat värde är 3 kN/m2.

– Innebär detta att för gr1a ska värdet på last på gång- och cykelbana vara 3 kN/m2?

– När sedan kombinationsvärdet av gr1a ska användas i ekvation 6.10a och 6.10b (SS-EN 1990, 6.4.3.2) blir värdet 3kN/m2?

– Är detta rätt tolkat eller ska det eventuellt egentligen stå fotnot c för gr4?

Svar: Oftast anges en lasts kombinationsvärde som karakteristiskt värde multiplicerat med kombinationsfaktorn 0. I detta fall anges kombinationsvärdet direkt som 3 kN/m2. Karakteristiskt värde och 0 behöver då inte användas.

Lastnedräkning och reduktionsfaktorer

Fråga: När man ska göra en lastnedräkning enligt Eurokoderna så ska man ju använda sig av EKV 6.10a och 6.10b från Eurokod SS-EN 1990. 

Det som har tillkommit är lastreduktionsfaktorn som beror av antalet våningar man bygger. Där säger Eurokoderna att αn endast får användas i EKV 6.10b.

Min fråga till er är om αn ersätter (faktorn som multipliceras med den nyttiga lasten) i EKV 6.10b eller om αn multipliceras med ψ0 i EKV 6.10b? Jag har fått lite olika svar från olika konstruktörer, och ingen är hundra på det svaret. Men är det så att α ersätter  ψ0 rakt av, så kan man ju inte säga att det här är en reduktion med hänsyn till antalet våningar, för αn kan aldrig bli mindre är ψ0. Det blir ju en reduktion med hänsyn till antalet våningar om αn multipliceras med .

Svar: Faktorn ψ0 avser reduktion för samverkande variabel last (annan last än huvudlasten i en lastkombination). Reduktionsfaktorn αn avser reduktion för nyttig last i flera våningsplan. De båda faktorerna avser alltså olika typer av reduktioner av variabla laster. Så det går inte att säga att den ena faktorn ersätter den andra. Det handlar i stället om olika fenomen (reduktion med hänsyn till samverkande laster, ψ0, respektive reduktion för last i flera våningsplan, αn).

Fråga: Nyttig last kan reduceras pga. area och våningsplan. När har man rätt att reducera pga. area? Har hört flera olika tolkningar av detta. Den senaste jag hörde gjorde skillnad på om lasten togs ner på ett horisontellt eller vertikalt bärverk. Att om ett bjälklag ligger upp på en balk så får jag reducera, men inte om det ligger upp på en vägg/pelare som då ses som vertikalt bärverk.

Om detta är fallet. Hur blir det då med en balk som ligger upp på pelare? Får jag reducera lasten för att dimensionera balken, men när jag räknar ut upplagsreaktionerna till pelarna måste jag använda last utan att reducera?

Svar: Enligt SS EN 1991-1-1, Kap. 6.3.1.2(10) kan man utnyttja reduktionsfaktorn αa för bjälklag. Det gäller oavsett om dessa bärs av balkar, pelare, väggar eller kombinationer av dessa. Enligt Kap. 6.3.1.2(11) kan den totala nyttiga lasten från flera våningsplan reduceras med αn vid lastnedräkning. Dessa båda faktorer kan kombineras enligt nya regler i EKS 9 (BFS 2011:10 med ändringar t.o.m. BFS 2013:10). Där anges i ett allmänt råd i avdelning C, kap. 1.1.1 följande:

6.3.1.2 (10)

Allmänt råd

9a § Reduktionsfaktorer för nyttig last, αA och αn, kan kombineras i lastuppsättning B för kategorier A och B när lasteffekten bedöms enligt EKV. 6.10b, tabell B-3. Faktorerna kan även kombineras i lastuppsättning C för kategorier A och B när lasteffekten bedöms enligt EKV. 6.10 tabell B-4. (BFS 2013:10). 

Fråga: Reduktionsfaktorn  och  SS-EN 1991 1-1 Kap 6.3.1.2

Jag undrar hur eurokoden ska tolkas när det gäller lastnedräkning för en pelare i en byggnad med t.ex. 10 våningar. Får man reducera nyttig last med  i kombination 6.10a och 6.10b vid en lastnedräkning? Man kan tolka SS-EN 1991-1-1 Kap 6.2.1 och 6.2.2 att  inte gäller för pelare? Om  får användas kan den kombineras med , men med begränsning enl. 3.3.2 (2) ?

Det vore bra med ett exempel från SIS och Boverket som belyser hur eurokoden ska tolkas för lastnedräkningar eftersom det nu finns många olika tolkningar bland användarna.

Logiskt borde den reducerade nyttiga lasten på ett plan enl. Kap 6.2.1 även vara den last som påverkar pelaren och om det är många våningar med samma kategori reduceras totala nyttiga lasten med αn enl. Kap. 6.2.2.

Svar: Enligt SS-EN 1991-1-1, Kap 6.3.1.2(10) kan man utnyttja reduktionsfaktorn för bjälklag. Det gäller oavsett om dessa bärs av balkar, pelare, väggar eller kombinationer av dessa.

Enligt Kap 6.3.1.2(11) kan den totala nyttiga lasten från flera våningsplan reduceras med αn vid lastnedräkning.

Dessa båda faktorer kan kombineras enligt nya regler i EKS 9 (BFS 2011:10 med ändringar t.o.m. BFS 2013:10). Där anges i ett allmänt råd i avdelning C, kap. 1.1.1 följande:

6.3.1.2 (10)

Allmänt råd

9a § Reduktionsfaktorer för nyttig last,  och , kan kombineras i lastuppsättning B för kategorier A och B när lasteffekten bedöms enligt EKV. 6.10b, tabell B-3. Faktorerna kan även kombineras i lastuppsättning C för kategorier A och B när lasteffekten bedöms enligt EKV. 6.10 tabell B-4. (BFS 2013:10).

SS-EN 1991-1-4 Formfaktor för nettovindlast

Fråga:
I Tabell 7.9 (fristående väggar och bröstningar) i SS-EN 1991-1-4 finns alternativa formfaktorer för nettovindlast beroende på om väggen är tät eller inte (beroende på fyllnadsgrad). Ett exempel är ett balkongräcke på en öppen balkong, där beklädnaden är tät, men det finns en öppen area mellan beklädnad och handledare. Får man beräkna fyllnadsgrad om den öppna arean är sammanhängande som i exemplet eller måste öppningarna vara jämnt fördelade över ytan för att få använda den lägre formfaktorn 1,2?

Svar:
Aeodynamic net pressure coefficients cp,net are governed by the solidity of the walls. Table 7.9 is relevant for solid walls and walls with openings as given in section 7.4 of SS-EN 1991-1-4. Appendix A gives background information about the net pressure distribution for solid and walls with openings.   

SS-EN 1991-1-4 Terrängtyp 0

Fråga:
Ska byggnader i kuststäder som Malmö dimensioneras för terrängtyp 0, även om de ligger i stadsmiljö men närmare havet än 2 km?

Svar:
Annex A (A.1, A.2 and A3) in the Eurocode gives detailed information abut the transition between different roughness categories. Mean velocity profiles for homogeneous terrain are derived by assuming that the chosen surface roughness prevails for considerable distance in all directions.  However, in real situations, it is not uncommon to encounter non-homogeneous terrain and the velocity profiles needs to be modified to account for changes in the surface roughness around and near the site. Model for studying  changes in the surface roughness surrounding the building can be developed  on based on  internal boundary layer (IBL) downstream from a change in the terrain roughness. 

Example

Flow is divided into two layers corresponding to the original surface roughness z0,0 = 0.003 and the new surface roughness denoted by z0,III = 0.3. The height of boundary layer h1 increases with downstream distance L.  The new surface roughness introduces an internal boundary layer and the velocity profile in this region is based on z0,III while the old velocity profile follows the external boundary layer. Details of the  method are not included here.

SS-EN 1991-1-4 Släpvind

Fråga:
I kap 7.5 sid 60 och angående släpvind så står det i (3) att referensarean bör antas angripa ytor som är belägna på ett avstånd med det minsta av 2b och 4h från LOVARTsidan. Ska det inte var från LÄsidan?

Svar:
Appendix A gives background information about the friction loads on the structures.

SS-EN 1991-1-7 Bilaga A-3 och konsekvensklasser (EN 1990)

Fråga:
Vilken konsekvensklass gäller för samhällsviktiga byggnader så som vattenförsörjning, elförsörjning mm?

Om man har en vattenverk i 3 våningar och om en viss del rasar så försvinner vattenförsörjningen för 10 000 -15 000 människor i flera veckor. Enligt SS-EN 1991-1-7:2006 Olyckslast bilaga A tabell A.1 (Nationell tolkning) klassas en industribyggnad i konsekvensklass 2a. Men enligt Tabell B.1 i SS-EN 1990 så klassas den en industribyggnad som CC3 om det blir mycket stora ekonomisk eller samhälleliga konsekvenser. Vilken ska man gå efter? Finns det exempel på samhällsviktiga byggnader som har mycket stora ekonomiska, samhälleliga konsekvenser (CC3) respektive betydande ekonomiska, samhälleliga konsekvenser (CC2)?

 Svar från Boverket:
Det är upp till byggherren att bedöma vilken konsekvensklass en byggnad för samhällsviktiga funktioner skulle hamna i. För ett vattenverks funktion är förmodligen inte den största risken att byggnaden kollapsar. Det är nog i stället i själva vattenreningsprocessen som störst risk för störningar eller avbrott i vattenförsörjningen ligger.

Så när det gäller robusthet hos den bärande konstruktionen för ett vattenreningsverk handlar det mer om vilken byggteknik och vilka byggnadsmaterial som används. En platsgjuten betongkonstruktion är oftast mer robust än en elementbyggd konstruktion. Fritt upplagda balkar och pendelpelare är mer känsliga än statiskt obestämda konstruktioner, etc. Så om byggherren vill ha en mer robust konstruktion handlar valen snarare om byggteknik och byggnadsstatik än om dragband och förankring av bjälklag enligt SS-EN 1991-1-7.

Det är viktigt att konstruktören förmedlar detta till byggherrens så att denne själv kan ta ställning i frågan. Samhällets krav i EKS är minimikrav. Det kan, exempelvis, för en samhällsviktig byggnad, finnas skäl att ställa högre krav i vissa avseenden.

Boverket har fått uppgifter om att exempelvis betongen i reningsbassängerna är i mycket dåligt skick. Så att välja en lämplig betong är säkert viktigare i detta sammanhang än att hänföra en viss byggnad till en viss konsekvensklass.

Kommentar: Eurokodhandbokens författare fick tyvärr felaktig förhandsinformation  om frågan.

SS-EN 1991-4 Laster avsnitt 2.4

Fråga: I avsnitt 2.4 anges "Loads on tanks shall be classified as variable fixed actions, ..". Detta gäller uppenbarligen alla laster. Det innebär följaktligen att egenvikt av en cistern inte klassa som permanent utan som variabel last och får partialfaktor 1.5. Har jag uppfattat rätt?

Svar: Jag tror att "laster" i avsnitt 2.4 bör tolkas som laster från vätskor enbart. De övriga lasterna som verkar på cisterner (egentyngd, vind, snö,...) behandlas i andra delar av Eurokoden. När det gäller lastkombinationer finns mycket information i Bilaga B, bland annat rekommenderade värde på partialkoefficienter för olika laster.